• Trilocale
  • 115 mq
  • 2 bagni

Appartamento in Vendita a Lazzate

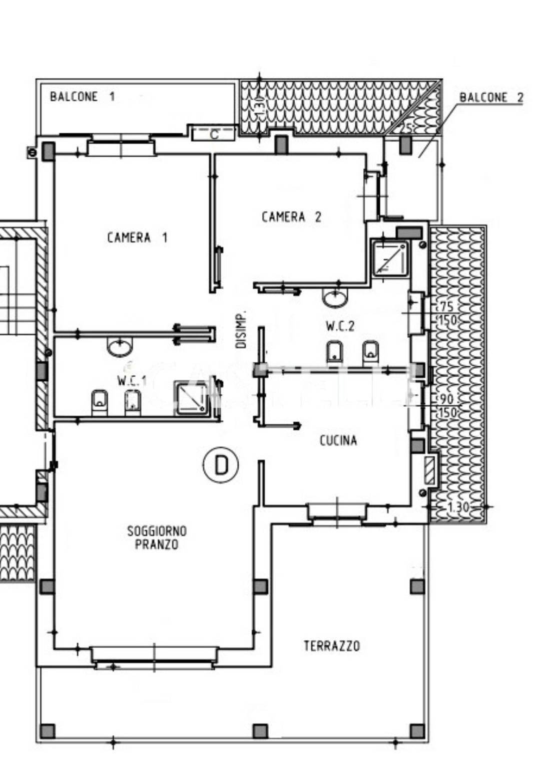
Prossima realizzazione a pochi passi dal centro di Lazzate, moderna palazzina di sole 6 unità abitative, proponiamo 3 locali al primo piano composto da soggiorno con cucina abitabile, 2 camere e doppi servizi. Ampio terrazzo e cantina.
Box doppio a parte €30.000

Tutti gli appartamenti godranno di tripla esposizione e saranno divisi tra loro solo dal vano scala comune.

Costruzione e impiantistica di ultima generazione consentiranno agli appartamenti di godere di una elevata efficienza energetica, nel rispetto dell’ambiente, raggiungendo così i più alti standard di classificazione.

LEGGI TUTTO

CONDIVIDI SUI SOCIAL

DATI PRINCIPALI

Riferimento
121819
Contratto
Vendita
Tipologia
Appartamento
Superficie
115 mq
Locali
3
Camere da letto
2
Cucina
Abitabile
Bagni
2
Piano
1 °
Totale piani
2

CARATTERISTICHE

Ascensore

COSTI

Prezzo
€ 269.000,00

EFFICIENZA ENERGETICA

Stato
Nuovo/In costruzione
Anno costruzione
2025
Riscaldamento
Autonomo
Climatizzazione
Si
Classe energetica
A3
IPE
351,00 kWh/m²a

A4

351,00 kWh/m²a | Classe energetica A3

A3

A2

A1

B

C

D

E

F

G

MAPPA

Lazzate comune della Bassa Brianza Occidentale

ANNUNCI SIMILI

VENDITA 20
€ 120.000
Appartamento in Vendita a Lazzate (Monza e Brianza)
  • Trilocale
  • 101 mq
  • 1 bagno