• Trilocale
  • 90 mq
  • 2 bagni

Appartamento in Vendita a Biassono

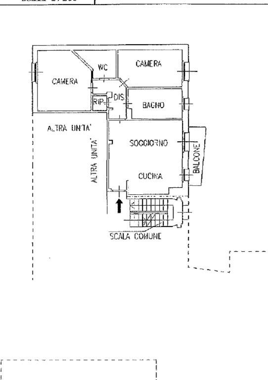
piccolo condominio ubicato in zona comoda con i servizi di prima necessità, scuole e mezzi pubblici, trilocale posto al piano primo su un unico livello abitativo di circa 90 mq composto da ingresso soggiorno con cucina a vista con uscita su balcone, ripostiglio, disimpegno notte, camera matrimoniale, cameretta e doppi servizi.
L'appartamento è ben tenuto e completamente ristrutturato, pavimentazione in ceramica uniforme in tutta la casa, impianto di condizionamento, serramenti in alluminio e tapparelle coibentate. Completa la proprietà una cantina in piano interrato e posto auto interno in uso. € 163.000, 00
Inviaci un messaggio per richiedere maggiori informazioni o contattaci al n.
Mediando Immobiliare associata F. I. M. A. A. (Federazione Italiana Mediatori Agenti d’Affari) è uno studio di intermediazione immobiliare che, grazie a figure professionali qualificate, offre una vasta gamma di servizi e consulenze tecniche.
Rivolgendosi alla nostra agenzia immobiliare il cliente può contare su tutta l'attenzione e la professionalità maturate negli anni. Seguiamo infatti ogni fase riguardante la compravendita e la locazione immobiliare, nonché quella commerciale, mettendo a disposizione tutta la nostra assistenza.
Il nostro impegno, la professionalità e la consapevolezza di avere come oggetto del nostro lavoro uno dei beni più importanti per la vita, ci ha imposto un rigoroso metodo di operare basato su regole e principi ferrei.
Alcuni dei nostri servizi:
Valutazione immobili residenziali e commerciali.
Compravendite.
Stesura contratti di locazione.
Locazioni.
Compilazione modelli F24 elide per registrazione contratti locazione.
Registrazione telematica dei contratti di locazione, proroghe, cessioni e risoluzioni.
Assistenza del cliente fino al rogito notarile.
Consulenze.
Certificati energetici.

LEGGI TUTTO

CONDIVIDI SUI SOCIAL

DATI PRINCIPALI

Riferimento
120279
Contratto
Vendita
Tipologia
Appartamento
Superficie
90 mq
Locali
3
Camere da letto
2
Cucina
A vista
Bagni
2
Piano
1 °
Totale piani
2
Box/Posto auto
Singolo

CARATTERISTICHE

Ascensore

COSTI

Prezzo
€ 163.000,00
Spese condominiali
€ 167,00 / mese

EFFICIENZA ENERGETICA

Stato
Ristrutturato
Anno costruzione
2003
Riscaldamento
Centralizzato
Climatizzazione
Si
Classe energetica
G
IPE
234,57 kWh/m²a

A+

A

B

C

D

E

F

234,57 kWh/m²a | Classe energetica G

G

MAPPA

Biassono comune della Bassa Brianza Centrale Sud

ANNUNCI SIMILI