€ 257.000
  • Trilocale
  • 119 mq
  • 1 bagno

Appartamento in Vendita a Calco

ACQUISTANDO QUESTO IMMOBILE AVRAI LA DETRAZIONE FISCALE DI ca € 20.000,00 !

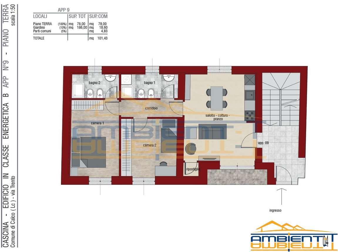
ZONA: Calco - Via Trento - Centro paese con l'immediata comodità dei servizi cittadini.

CONTESTO: Le soluzioni saranno poste all'interno di un complesso residenziale composto da tre mini-palazzine.

FINITURE - CARATTERISTICHE: Gli appartamenti vanteranno un'ottima luminosità, sfoghi esterni, ottime finiture interne scelte da capitolato e completamente personalizzabili, classe energetica A, serramenti in pvc, impianto di riscaldamento e raffrescamento autonomo con pompa di calore e pannelli fotovoltaici che garantiranno un risparmio economico ai condomini. Inoltre sarà possibile modificare in base alle proprie necessità anche gli spazi interni ed avere il recupero fiscale per l'acquisto di ogni autorimessa.

COMPOSIZIONE: Nella zona living vi saranno soggiorno con balcone, cucina a vista e ripostiglio. Dal disimpegno si accederà alla zona notte dove sarà presente il disimpegno, una camere da letto con cabina armadio ed un bagno. Al piano sottotetto superiore, vi sarà un locale di oltre 90 mq.
Possibilità di acquistare autorimessa e cantina a partire da € 15.000,00.

Per ulteriori informazioni è possibile fissare un appuntamento in ufficio.

Il presente annuncio ha valore indicativo e non costituisce elemento contrattuale.

LEGGI TUTTO

CONDIVIDI SUI SOCIAL

DATI PRINCIPALI

Riferimento
131672
Contratto
Vendita
Tipologia
Appartamento
Superficie
119 mq
Locali
3
Bagni
1
Piano
Piano terra
Totale piani
1

CARATTERISTICHE

Ascensore

COSTI

Prezzo
€ 257.000,00

EFFICIENZA ENERGETICA

Stato
Nuovo/In costruzione
Anno costruzione
2021
Riscaldamento
Autonomo
Classe energetica
A1
IPE
3,00 kWh/m²a

A4

A3

A2

3,00 kWh/m²a | Classe energetica A1

A1

B

C

D

E

F

G

MAPPA

Calco comune della Brianza Meratese

ANNUNCI SIMILI

VENDITA 8
€ 213.000
Appartamento in Vendita a Calco (Lecco)
  • Trilocale
  • 101 mq
  • 2 bagni
VENDITA 20
€ 95.000
Appartamento in Vendita a Olgiate Molgora (Lecco)
  • Trilocale
  • 113 mq
  • 1 bagno