TRILOCALE IN VENDITA A BARLASSINA VENDITA

Corso Milano 132 - Barlassina (Monza e Brianza)
€ 255.000
  • Trilocale
  • 60 mq
  • 2 bagni

Appartamento in Vendita a Barlassina

NUOVO, AREA ESTERNA, DOPPI SERVIZI

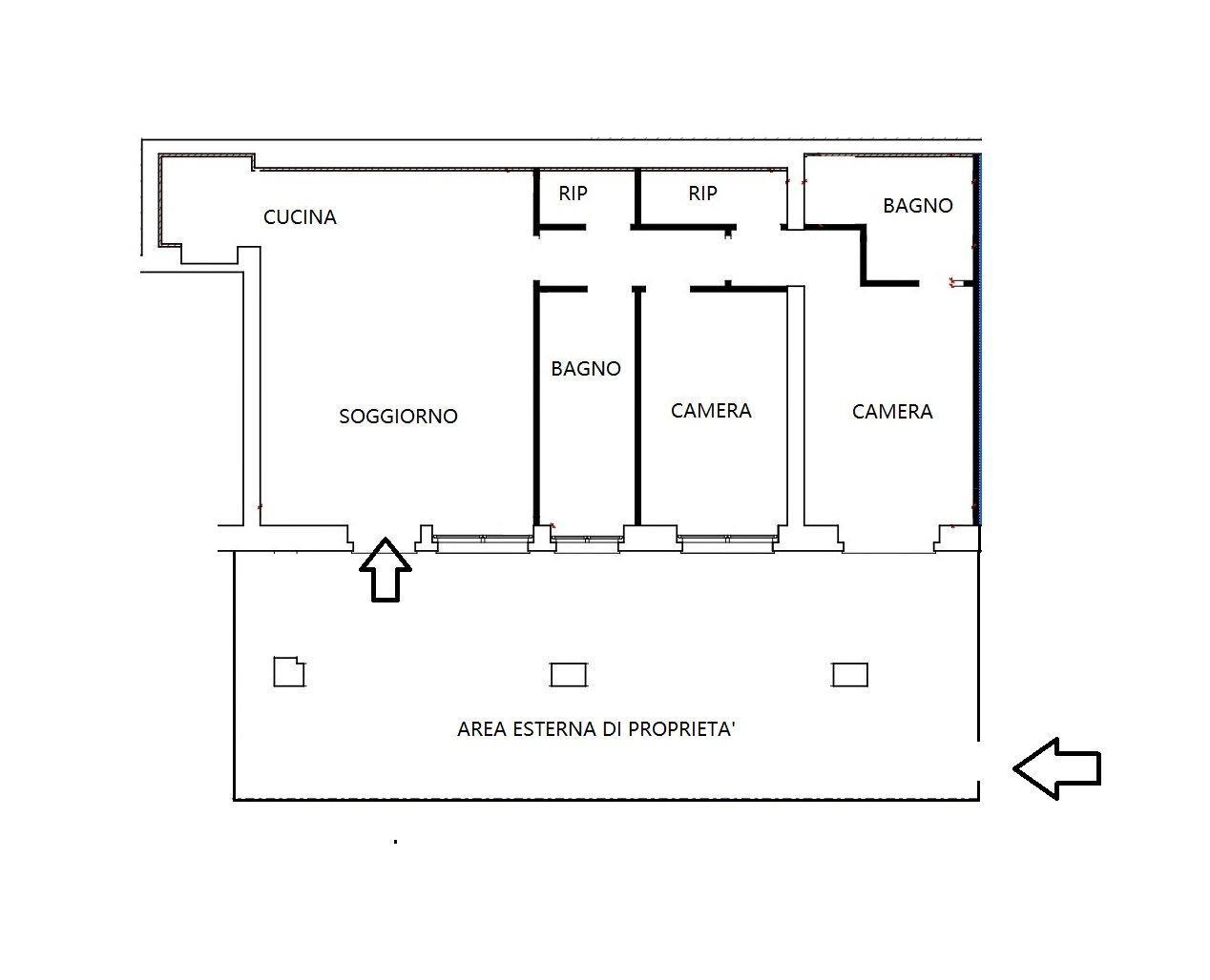
Appartamento completamente ristrutturato a Barlassina al piano terra, realizzato con tecnologie di ultima generazione per il massimo benessere e risparmio energetico: cappotto termico, ventilazione meccanica controllata, serramenti in triplo vetro con tapparelle elettriche, pompa di calore, fotovoltaico e riscaldamento a pavimento.
L’ingresso indipendente dal vialetto privato conduce a una deliziosa area esterne di proprietà con portico, perfetto per colazioni all’aperto e momenti di relax.
All’interno, ambienti moderni e funzionali: luminoso soggiorno con cucina a vista, disimpegno, due bagni con doccia e due camere di cui la matrimoniale con cabina armadio e la cameretta.
Completa la soluzione un posto auto interno assegnato.

LEGGI TUTTO

CONDIVIDI SUI SOCIAL

DATI PRINCIPALI

Riferimento
132900
Contratto
Vendita
Tipologia
Appartamento
Superficie
60 mq
Locali
3
Camere da letto
2
Cucina
Angolo cottura
Bagni
2
Piano
Piano terra
Totale piani
1
Box/Posto auto
Singolo

CARATTERISTICHE

Ascensore

COSTI

Prezzo
€ 255.000,00

EFFICIENZA ENERGETICA

Stato
Ristrutturato
Riscaldamento
Autonomo
Climatizzazione
Si
Classe energetica
A1
IPE
351,00 kWh/m²a

A4

A3

A2

351,00 kWh/m²a | Classe energetica A1

A1

B

C

D

E

F

G

MAPPA

Barlassina comune della Bassa Brianza Occidentale

ANNUNCI SIMILI

VENDITA 11
€ 235.000
Appartamento in Vendita a Barlassina (Monza e Brianza)
  • Trilocale
  • 95 mq
  • 2 bagni