Trilocale di nuova realizzazione con giardino privato VENDITA

Via Andrea Solari - Varedo (Monza e Brianza)
€ 370.000
  • Trilocale
  • 137 mq
  • 2 bagni

Appartamento in Vendita a Varedo

Esclusiva opportunità di acquisto in una moderna residenza di ultima generazione, classe energetica A4, nel centro di Varedo, a breve distanza dal centro storico, a soli 400 metri dalla stazione Trenord e a due passi dalla prestigiosa Villa Bagatti Valsecchi.
Questa nuova residenza, ancora in fase di completamento, con consegna prevista per la primavera del 2026, comprende 13 appartamenti distribuiti su 5 piani fuori terra, tutti dotati di spazi esterni privati: giardini al piano terra e ampi terrazzi ai piani superiori.
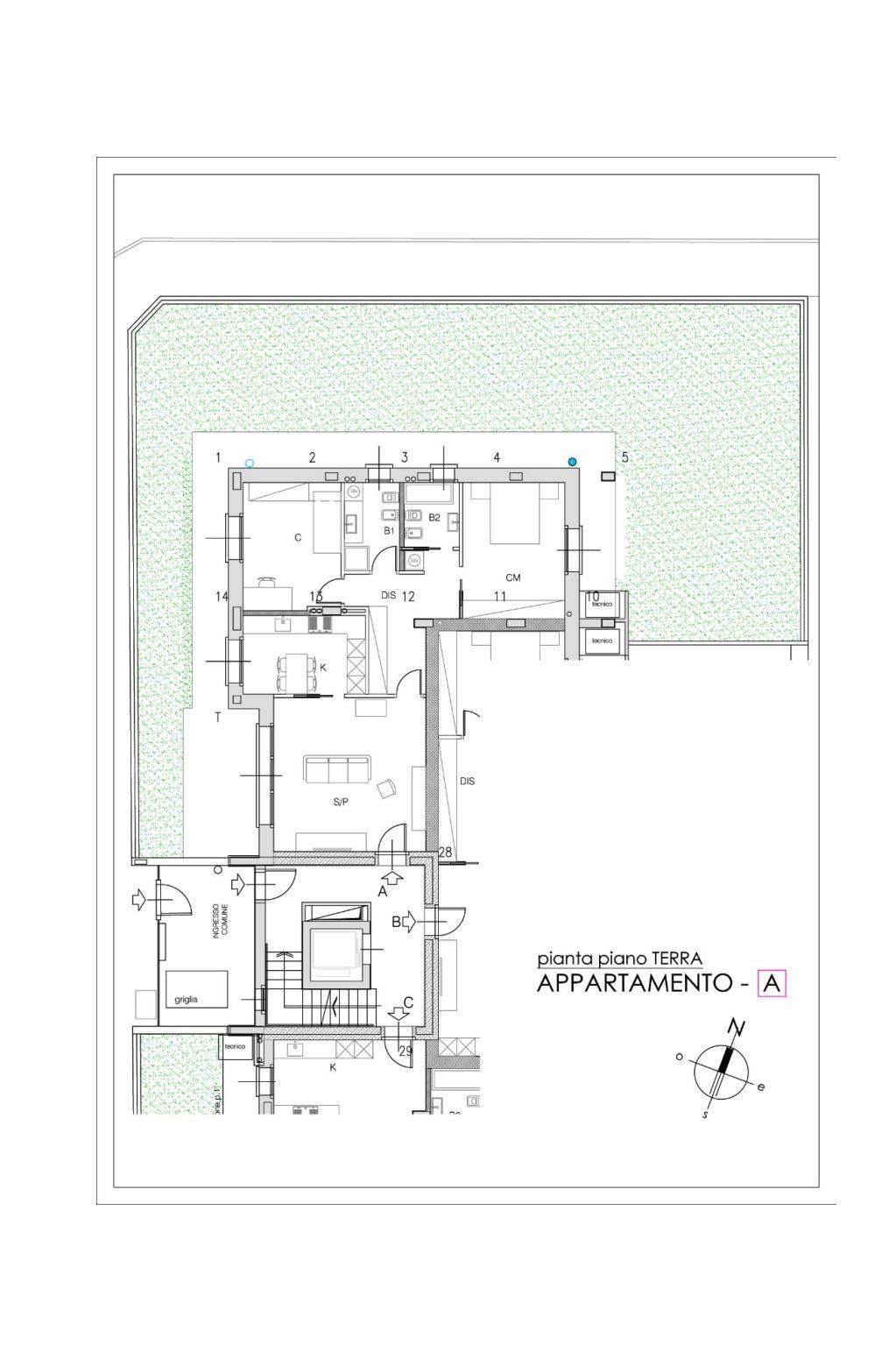
Tra le soluzioni disponibili, proponiamo un trilocale al piano terra di 104mq, con un ampio giardino di proprietà di 123 mq. che si estende su circa tre lati. L’appartamento si compone di un ingresso che si apre sul soggiorno, cucina abitabile, due camere da letto e doppi servizi.
Cantina inclusa. È possibile scegliere tra box auto singolo o doppio (€ 24.000 o € 35.000).
L’immobile sarà dotato di impianto di riscaldamento a pavimento alimentato da pompa di calore, garantendo il massimo risparmio energetico.
Tra le dotazioni di ultima generazione figurano tapparelle elettriche, sistema di rinnovo meccanizzato dell’aria (VMC), impianto elettrico domotico controllabile tramite smartphone e predisposizione per aria condizionata.
Questa nuova residenza rappresenta un’opportunità unica per chi cerca un’abitazione moderna, confortevole, personalizzabile e in una posizione strategica.
La consegna degli appartamenti è prevista per la primavera 2026. Contattaci per ulteriori informazioni e per prenotare una visita.

LEGGI TUTTO

CONDIVIDI SUI SOCIAL

DATI PRINCIPALI

Riferimento
130113
Contratto
Vendita
Tipologia
Appartamento
Superficie
137 mq
Locali
3
Camere da letto
2
Cucina
Abitabile
Bagni
2
Piano
Piano terra
Totale piani
4
Box/Posto auto
Singolo

CARATTERISTICHE

Ascensore

COSTI

Prezzo
€ 370.000,00

EFFICIENZA ENERGETICA

Stato
Nuovo/In costruzione
Anno costruzione
2026
Riscaldamento
Autonomo
Climatizzazione
Predisposizione
Classe energetica
A4
IPE
351,00 kWh/m²a
351,00 kWh/m²a | Classe energetica A4

A4

A3

A2

A1

B

C

D

E

F

G

MAPPA

Varedo comune della Bassa Brianza Occidentale

ANNUNCI SIMILI

VENDITA 20
€ 198.000
Appartamento in Vendita a Varedo (Monza e Brianza)
  • Trilocale
  • 100 mq
  • 1 bagno
VENDITA 20
€ 750.000
Appartamento in Vendita a Varedo (Monza e Brianza)
  • Più di 5 locali
  • 450 mq
  • 4 bagni