Trilocale con portico, giardino e box doppio in larghezza VENDITA

Via Bernardino Luini 51 - Meda (Monza e Brianza)
€ 299.000
  • Trilocale
  • 105 mq
  • 2 bagni

Appartamento in Vendita a Meda

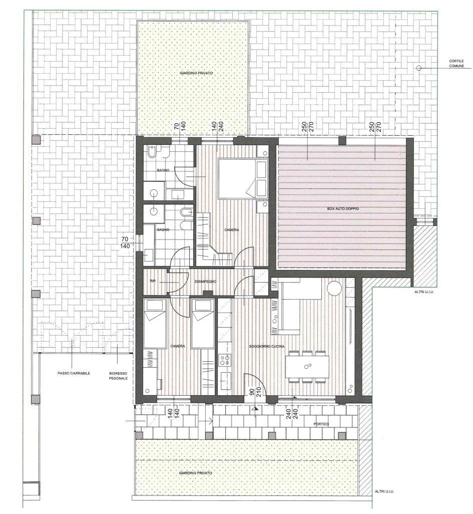
Meda: Trilocale con portico, giardino e box doppio in larghezza. “Residenza Radice 51” All'interno della riqualificazione di un ex mobilificio, che prevede 5 appartamenti ed una villetta proponiamo un appartamento di circa 80 mq composto da soggiorno/living, angolo cottura, porta finestra su portico e giardino privato, disimpegno, bagno, camera doppia, camera matrimoniale con bagno privato e porta finestra su giardino. Intervento con bonus ristrutturazione e detrazioni in 10 anni. Quartiere comodo con tutti i servizi di prima necessità e vicino alle principali vie di comunicazione. L'Impresa Edile che opera sul territorio garantirà la qualità e la cura nella fornitura di tutti i materiali con possibilità di personalizzare gli interni attraverso la scelta delle finiture dal capitolato messo a disposizione. Le tecnologie usate permetteranno di vivere con consumi ridotti e senza sprechi: la classe energetica minima prevista da valore di progetto è “ A4” 3,51 kWh/m2a. Sistema di riscaldamento autonomo a basso consumo, predisposizione impianto di allarme, serramenti ad alta efficienza ed isolamento termico/acustico. Ogni fase dell'acquisto sarà tutelata grazie a preliminari notarili trascritti, rilascio di fideiussione a tutela di tutti gli acconti versati. Inizio lavori previsto Febbraio 2026. € 299.000,00 rif. 1979 Tel. 031/746550

LEGGI TUTTO

CONDIVIDI SUI SOCIAL

DATI PRINCIPALI

Riferimento
131981
Contratto
Vendita
Tipologia
Appartamento
Superficie
105 mq
Locali
3
Camere da letto
2
Cucina
A vista
Bagni
2
Piano
Piano terra
Totale piani
1
Box/Posto auto
Doppio

CARATTERISTICHE

Ascensore

COSTI

Prezzo
€ 299.000,00

EFFICIENZA ENERGETICA

Stato
Nuovo/In costruzione
Anno costruzione
2026
Riscaldamento
Autonomo
Climatizzazione
Predisposizione
Classe energetica
A3
IPE
3,51 kWh/m²a

A4

3,51 kWh/m²a | Classe energetica A3

A3

A2

A1

B

C

D

E

F

G

MAPPA

Meda comune della Bassa Brianza Occidentale

ANNUNCI SIMILI

VENDITA 20
€ 148.000
Appartamento in Vendita a Meda (Monza e Brianza)
  • Trilocale
  • 90 mq
  • 1 bagno
VENDITA 20
€ 158.000
Appartamento in Vendita a Meda (Monza e Brianza)
  • Trilocale
  • 80 mq
VENDITA 14
€ 99.000
Appartamento in Vendita a Meda (Monza e Brianza)
  • Quadrilocale
  • 110 mq
VENDITA 19
€ 99.000
Appartamento in Vendita a Meda (Monza e Brianza)
  • Trilocale
  • 90 mq
  • 1 bagno
VENDITA 17
€ 168.000
Appartamento in Vendita a Meda (Monza e Brianza)
  • Trilocale
  • 130 mq
  • 1 bagno