Trilocale con patio e giardino VENDITA

Via Amedeo Modigliani 13 - Monza (Monza e Brianza)
€ 425.000
  • Trilocale
  • 126 mq
  • 3 bagni

Appartamento in Vendita a Monza

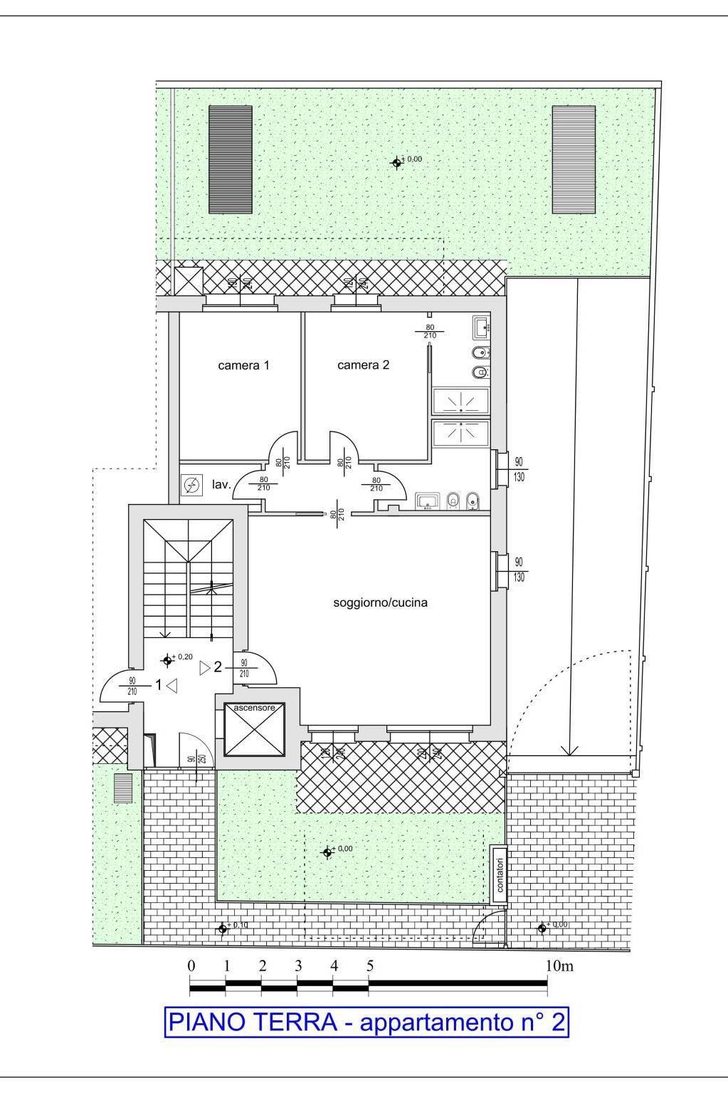
VENDITA DIRETTA DAL COSTRUTTORE la tua nuova casa in CLASSE A4 in uno dei quartieri più ambiti di Monza: una zona tranquilla, servita da asili scuole elementari e medie, supermercati e negozi di prima necessità, ben collegata ai mezzi di trasporto. Proponiamo in palazzina di prestigio 6 unità abitative che offrono spazi luminosi e ben distribuiti ideali per soddisfare le esigenze di ogni famiglia. Sono dotati di ogni comfort moderno (riscaldamento a pavimento,ventilazione meccanica controllata, raffrescamento con split samsung, pannelli fotovoltaici, gestione domotica avanzata, predisposizione alla fibra ottica FTTH per una connessione ultra-veloce ,car charger nei box per la mobilità elettrica) rricchiti da generosi terrazzi o giardini, funzionali e ideali per pranzi o momenti di convivialità all'aperto. VIENI A SCOPRIRE questo splendido trilocale con giardino. L'unità abitativa presenta ampia zona living : soggiorno e cucina di 40 mq, due camere da letto entrambe matrimoniali, due bagni e una lavanderia. Possibilità di box singolo o doppio a partire da 20.000 euro. PRENOTA un appuntamento in sede, ti aspettiamo. . Grazie al BONUS SISMICO l'acquirente può detrarre fino a un massimo di 96.000 euro in sede di dichiarazione irpef. Le immagini sono fornite al solo scopo illustrativo e non costituiscono elemento contrattuale. "VENDITA DIRETTA DAL COSTRUTTORE NO PROVVIGIONI" NO COLLABORAZIONI CON AGENZIE Per ulteriori informazioni tecniche indirizzo email imperiumcostruzioni@pec.it

LEGGI TUTTO

CONDIVIDI SUI SOCIAL

DATI PRINCIPALI

Riferimento
130385
Contratto
Vendita
Tipologia
Appartamento
Superficie
126 mq
Locali
3
Camere da letto
2
Cucina
Abitabile
Bagni
3
Piano
Piano terra
Totale piani
3
Box/Posto auto
Singolo

CARATTERISTICHE

Ascensore

COSTI

Prezzo
€ 425.000,00

EFFICIENZA ENERGETICA

Stato
Nuovo/In costruzione
Anno costruzione
2025
Riscaldamento
Autonomo
Climatizzazione
Si
Classe energetica
A4
IPE
351,00 kWh/m²a
351,00 kWh/m²a | Classe energetica A4

A4

A3

A2

A1

B

C

D

E

F

G

MAPPA

Monza comune della Bassa Brianza Centrale Sud

ANNUNCI SIMILI

VENDITA 20
€ 310.000
Appartamento in Vendita a Monza (Monza e Brianza)
  • Trilocale
  • 97 mq
  • 2 bagni
VENDITA 20
€ 430.000
Appartamento in Vendita a Monza (Monza e Brianza)
  • Più di 5 locali
  • 195 mq
  • 3 bagni
VENDITA 20
€ 240.000
Appartamento in Vendita a Monza, Zona Cederna
  • Quadrilocale
  • 156 mq
  • 2 bagni
VENDITA 20
€ 215.000
Appartamento in Vendita a Monza, Zona Cederna
  • Quadrilocale
  • 108 mq
  • 1 bagno
VENDITA 20
€ 225.000
Appartamento in Vendita a Monza, Zona Cederna
  • Quadrilocale
  • 75 mq
  • 2 bagni