TRILOCALE CON GIARDINO PRIVATO IN CLASSE A2 VENDITA

Via Bertacciola 60 - Bovisio Masciago (Monza e Brianza)
€ 220.000
  • Trilocale
  • 105 mq
  • 2 bagni

Appartamento in Vendita a Bovisio Masciago

Situato in una zona residenziale in prossimità delle scuole e dei supermercati, in contesto riqualificato completamente e caratterizzato dalla classe energetica A2.
La soluzione offre comfort abitativo, garantito dall'isolamento termico, costi ridotti di riscaldamento e raffrescamento, privacy e tranquillità.
L'immobile, moderno e luminoso, dispone di caldaia a condensazione, infissi a taglio termico con doppio vetro, tapparelle in alluminio elettriche, aria condizionata, tenda da sole elettrica, predisposizione allarme.
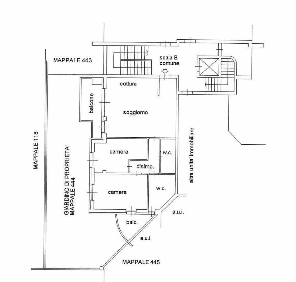
La soluzione si compone di: ingresso, un ampio soggiorno con cucina a vista, camera padronale, seconda camera, doppi servizi, ampio giardino privato vivibile.
Completano la proprietà la cantina e il box auto. SOLUZIONE READY TO LIVE!!!

LEGGI TUTTO

CONDIVIDI SUI SOCIAL

DATI PRINCIPALI

Riferimento
130068
Contratto
Vendita
Tipologia
Appartamento
Superficie
105 mq
Locali
3
Camere da letto
2
Cucina
A vista
Bagni
2
Piano
Piano terra
Totale piani
4
Box/Posto auto
Singolo

CARATTERISTICHE

Ascensore

COSTI

Prezzo
€ 220.000,00
Spese condominiali
€ 135,00 / mese

EFFICIENZA ENERGETICA

Stato
Ristrutturato
Anno costruzione
2005
Riscaldamento
Autonomo
Climatizzazione
Si
Classe energetica
A2
IPE
51,32 kWh/m²a

A4

A3

51,32 kWh/m²a | Classe energetica A2

A2

A1

B

C

D

E

F

G

MAPPA

Bovisio Masciago comune della Bassa Brianza Occidentale

ANNUNCI SIMILI

VENDITA 18
€ 143.000
Appartamento in Vendita a Bovisio Masciago (Monza e Brianza)
  • Quadrilocale
  • 101 mq
  • 1 bagno