€ 238.000
  • Trilocale
  • 110 mq
  • 2 bagni

Appartamento in Vendita a Arosio

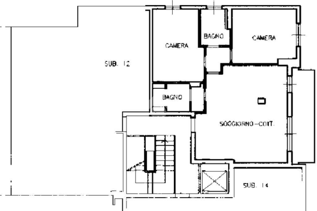
In zona residenziale di Arosio, proponiamo in vendita uno splendido trilocale completamente ristrutturato con finiture moderne e soluzioni impiantistiche di livello.
Situato al secondo piano con ascensore, l’immobile si apre su un’ampia e luminosa zona living con cucina a vista e accesso diretto al terrazzino.
La zona notte è composta da due camere da letto e doppi servizi, di cui uno versatile e perfetto anche come lavanderia.
Plus esclusivi:

* Ristrutturazione completa con impianti nuovi
* Riscaldamento a pavimento
* Impianto di climatizzazione canalizzato
* Terrazzino vivibile
* Box doppio in larghezza incluso nel prezzo
* CantinaValore aggiunto unico: incluso nel prezzo l'arredo di qualità, quali cucina e soggiorno firmati Poliform, per un ambiente elegante e pronto da vivere.
Vi invitiamo a cliccare mi piace sulla nostra fanpage @tecnocasa_veranobrianza per essere aggiornati su tutte le nostre proposte immobiliari.
Ogni agenzia ha un proprio titolare ed e' autonoma - Le presenti informazioni non costituiscono elemento contrattuale.

LEGGI TUTTO

CONDIVIDI SUI SOCIAL

DATI PRINCIPALI

Riferimento
133095
Contratto
Vendita
Tipologia
Appartamento
Superficie
110 mq
Locali
3
Camere da letto
2
Cucina
Abitabile
Bagni
2
Piano
2 °
Totale piani
3
Box/Posto auto
Doppio

CARATTERISTICHE

Ascensore

COSTI

Prezzo
€ 238.000,00
Spese condominiali
€ 117,00 / mese

EFFICIENZA ENERGETICA

Stato
Ristrutturato
Anno costruzione
2000
Riscaldamento
Autonomo
Climatizzazione
Si
Classe energetica
C
IPE
168,96 kWh/m²a

A+

A

B

168,96 kWh/m²a | Classe energetica C

C

D

E

F

G

MAPPA

Arosio comune della Bassa Brianza Comasca

ANNUNCI SIMILI

VENDITA 20
€ 178.000
Appartamento in Vendita a Arosio (Como)
  • Trilocale
  • 100 mq
  • 1 bagno
VENDITA 20
€ 193.000
Appartamento in Vendita a Arosio (Como)
  • Quadrilocale
  • 130 mq
  • 2 bagni
VENDITA 5
€ 275.000
Appartamento in Vendita a Arosio (Como)
  • Trilocale
  • 107 mq
  • 2 bagni
VENDITA 5
€ 250.000
Appartamento in Vendita a Arosio (Como)
  • Trilocale
  • 95 mq
  • 2 bagni
VENDITA
€ 384.000
Appartamento in Vendita a Arosio (Como)
  • Quadrilocale
  • 130 mq
  • 2 bagni
VENDITA 16
€ 195.000
Appartamento in Vendita a Arosio (Como)
  • Quadrilocale
  • 125 mq
  • 2 bagni