TRE LOCALI CON TERRAZZO VIA MACHIAVELLI 20, P. DUGNANO (A05) VENDITA

Via Niccolò Machiavelli 18 - Paderno Dugnano (Milano)
€ 520.000
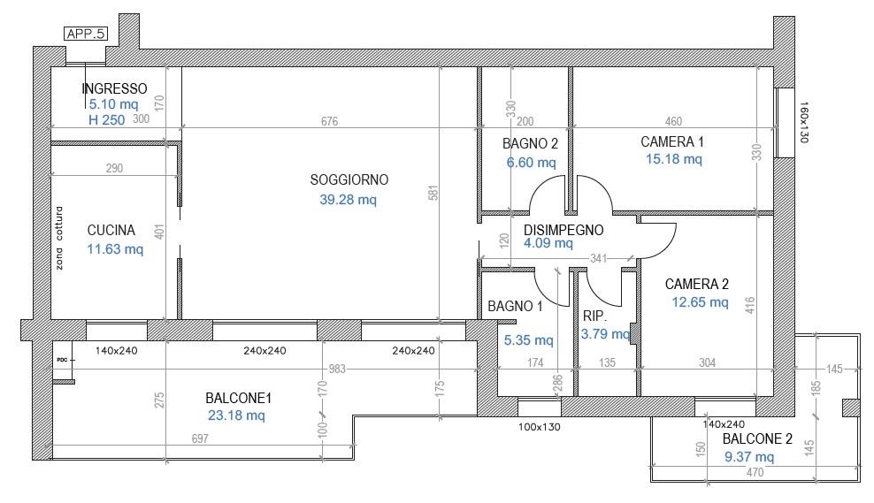
  • Trilocale
  • 149 mq
  • 2 bagni

Appartamento in Vendita a Paderno Dugnano

Nel cuore di Paderno Dugnano, in via Machiavelli 20, nasce una nuova palazzina residenziale che coniuga architettura contemporanea, sostenibilità avanzata e comfort abitativo di alto livello.
Un progetto pensato per chi desidera vivere in un contesto riservato e signorile, senza rinunciare alla comodità dei servizi e ai collegamenti con Milano.
La zona si distingue per la sua posizione strategica e tranquilla, immersa in un tessuto residenziale curato, a pochi minuti da: scuole e servizi di prima necessità, aree verdi e parchi, stazione ferroviaria e principali arterie stradali, collegamenti rapidi con Milano e l’hinterland. Un equilibrio ideale tra qualità della vita e mobilità urbana.
Completano le soluzioni cantine e box auto di ampie metrature.
Questo nuovo complesso verrà edificato dalla rinomata Impresa di costruzioni Bruedil S.r.l. che, grazie alla sua esperienza di oltre 30 anni nella realizzazione di edifici residenziali di alta qualità, sarà in grado di soddisfare ogni esigenza del cliente.
Il design moderno è supportato da materiali di altissima qualità, che potrete visionare in anteprima nell’accogliente e ospitale Showroom dedicato esclusivamente ai nostri cantieri della Bruedil Home, dove sarà possibile personalizzare le future dotazioni in fase di esecuzione, ottenendo la classificazione energetica “N-ZEB”.
Un’abitazione pensata per offrire benessere, risparmio energetico e valore nel tempo.
Questa residenza rappresenta una scelta consapevole, dove estetica, innovazione e sostenibilità si incontrano per dare forma a un’abitazione moderna, efficiente e raffinata.
Principali caratteristiche capitolato
Il complesso Residenziale Machiavelli offre le seguenti dotazioni:
- Impianto ventilazione meccanica controllata e recupero del calore
- Impianto fotovoltaico condominiale
- Impianto di riscaldamento a pavimento e produzione ACS con pompa di calore autonoma
- Impianto di Condizionamento canalizzato
- Serramenti con vetrocamera a triplo vetro in PVC
- Impianto di Video sorveglianza per le parti comuni
L’impianto elettrico prevede la gestione domotica integrata delle seguenti funzioni:
- Automazione tapparelle
- Scenari
- Termoregolazione
- Controllo carichi
- Visualizzazione consumi
- Videocitofonia

Completa l’offerta relativa alla parte elettrica:
- Impianto fibra ottica per tecnologia FTTH nelle parti comuni

Sono inoltre integrabili all’interno della Domotica:
- Automazione luci
- Antifurto

PACCHETTI AGGIUNTIVI AD INTEGRAZIONE DEL CAPITOLATO

Richiesta: € 520.000,00 Box da € 32.0000,00

Per ulteriori informazioni o per fissare una visita, non esitate a contattarci. Si precisa che la presente scheda non costituisce un contratto né un impegno vincolante, e le informazioni riportate sono da considerarsi indicative; non potranno essere utilizzate come parte integrante di eventuali contratti di compravendita o locazione, né vincolano
in alcun modo la società.

LEGGI TUTTO

CONDIVIDI SUI SOCIAL

DATI PRINCIPALI

Riferimento
131205
Contratto
Vendita
Tipologia
Appartamento
Superficie
149 mq
Locali
3
Camere da letto
2
Cucina
Abitabile
Bagni
2
Piano
1 °
Totale piani
3
Box/Posto auto
Singolo

CARATTERISTICHE

Ascensore

COSTI

Prezzo
€ 520.000,00

EFFICIENZA ENERGETICA

Stato
Nuovo/In costruzione
Anno costruzione
2028
Riscaldamento
Autonomo
Climatizzazione
Si
Classe energetica
A4
IPE
351,00 kWh/m²a
351,00 kWh/m²a | Classe energetica A4

A4

A3

A2

A1

B

C

D

E

F

G

MAPPA

Paderno Dugnano comune della Brianza Milanese

ANNUNCI SIMILI

VENDITA 20
€ 220.000
Appartamento in Vendita a Paderno Dugnano (Milano)
  • Trilocale
  • 90 mq
  • 2 bagni
VENDITA 20
€ 215.000
Appartamento in Vendita a Paderno Dugnano (Milano)
  • Trilocale
  • 90 mq
  • 1 bagno
VENDITA 20
€ 145.000
Appartamento in Vendita a Paderno Dugnano (Milano)
  • Trilocale
  • 55 mq
  • 2 bagni
VENDITA 13
€ 320.000
Appartamento in Vendita a Paderno Dugnano (Milano)
  • Quadrilocale
  • 133 mq
  • 2 bagni