TRE LOCALI CON GIARDINO E DEPOSITO VENDITA

Via Vittorio Veneto 9 - Concorezzo (Monza e Brianza)
€ 260.000
  • Trilocale
  • 123 mq
  • 1 bagno

Appartamento in Vendita a Concorezzo

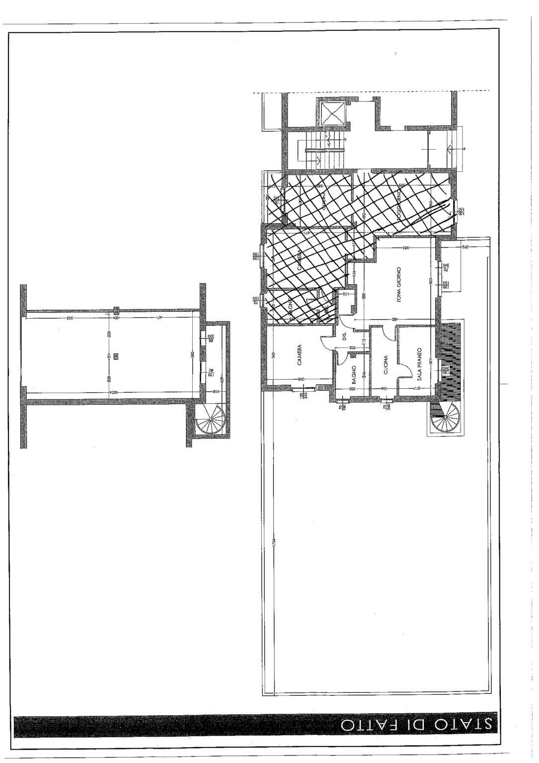
A due passi dal centro proponiamo appartamento di tre locali con giardino privato di 200 mq.
In palazzina ben tenuta degli anni ’90, proponiamo luminoso trilocale con ingresso indipendente — una caratteristica rara per un contesto condominiale — e collegamento diretto all’autorimessa.
L’immobile, allo stato originale, si compone di soggiorno, cucina semi abitabile, camere, studio e bagno.
Gli infissi sono in legno con doppi vetri e dotati di sbarre di sicurezza su tutte le finestre. Pavimentazione in ceramica in tutti gli ambienti, ad eccezione della camera matrimoniale rifinita in parquet.
Completano la proprietà un ampio giardino privato di 200 mq e un'autorimessa di 25 mq collegato internamente al giardino tramite scala a chiocciola, ideale per realizzare una spaziosa cantina e area hobby o posti auto.
Soluzione interessante per chi cerca comfort, indipendenza e spazi esterni a pochi minuti dal centro.

LEGGI TUTTO

CONDIVIDI SUI SOCIAL

DATI PRINCIPALI

Riferimento
128154
Contratto
Vendita
Tipologia
Appartamento
Superficie
123 mq
Locali
3
Camere da letto
2
Cucina
Cucinotto
Bagni
1
Piano
Piano terra
Totale piani
3
Box/Posto auto
Doppio

CARATTERISTICHE

Ascensore

COSTI

Prezzo
€ 260.000,00
Spese condominiali
€ 130,00 / mese

EFFICIENZA ENERGETICA

Stato
Da ristrutturare
Anno costruzione
1990
Riscaldamento
Centralizzato
Climatizzazione
Si
Classe energetica
E
IPE
120,00 kWh/m²a

A+

A

B

C

D

120,00 kWh/m²a | Classe energetica E

E

F

G

MAPPA

Concorezzo comune della Bassa Brianza Orientale o Vimercatese

ANNUNCI SIMILI

VENDITA 20
€ 332.000
Appartamento in Vendita a Concorezzo (Monza e Brianza)
  • Trilocale
  • 120 mq
  • 2 bagni
VENDITA 20
€ 280.000
Appartamento in Vendita a Concorezzo (Monza e Brianza)
  • Quadrilocale
  • 158 mq
  • 2 bagni