€ 880.000
  • Più di 5 locali
  • 176 mq
  • 3 bagni

Appartamento in Vendita a Monza

Inserito in contesto signorile, con servizio portineria, circondato da verde condominiale finemente piantumato a due pass dal centro storico. A soli 200 m di distanza dai Parchetti Reali e quindi nelle immediate vicinanze della VILLA REALE.
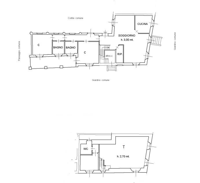
La soluzione posta al piano terra si compone di ingresso su zona pranzo e zona giorno, cucina separata ed abitabile che affaccia sul giardino ad uso esclusivo dell'appartamento, camera matrimoniale, seconda camera spaziosa e due servizi. Collegato da scala interna raggiungiamo il piano taverna, luminoso grazie alle finestre e caratterizzato dalla presenza di un camino tradizionale, un locale ed il bagno lavanderia completano il livello.
L'appartamento è dotato di aria condizionata e di una cantina di 5 mq. Possibilità ampio box singolo di mq.20.

La Mia Casa nasce con la precisa volontà di distinguersi dalle classiche Agenzie Immobiliari, col preciso intento di fornire la più completa assistenza ai propri clienti, siano essi acquirenti o venditori, società o privati. Il nostro impegno e le nostre competenze ci permettono di fornire un pacchetto di servizi completo, 'senza pensieri', che consente al nostro cliente di avere un unico interlocutore per tutti gli aspetti della trattativa, sostenendolo fino alla sua conclusione.
I nostri professionisti qualificati e laureati forniscono servizi per immobili residenziali e commerciali,,terreni e cantieri, appartamenti nuovi, usati e affitti, oltre a supporto legale.

LEGGI TUTTO

CONDIVIDI SUI SOCIAL

DATI PRINCIPALI

Riferimento
132192
Contratto
Vendita
Tipologia
Appartamento
Superficie
176 mq
Locali
5
Camere da letto
2
Cucina
Abitabile
Bagni
3
Piano
Piano terra
Totale piani
3

CARATTERISTICHE

Ascensore

COSTI

Prezzo
€ 880.000,00
Spese condominiali
€ 700,00 / mese

EFFICIENZA ENERGETICA

Stato
Ristrutturato
Riscaldamento
Centralizzato
Climatizzazione
Si
Classe energetica
E
IPE
210,32 kWh/m²a

A+

A

B

C

D

210,32 kWh/m²a | Classe energetica E

E

F

G

MAPPA

Monza comune della Bassa Brianza Centrale Sud

ANNUNCI SIMILI

VENDITA 20
€ 750.000
Appartamento in Vendita a Monza, Zona San Biagio
  • Più di 5 locali
  • 305 mq
  • 3 bagni
VENDITA 20
€ 480.000
Appartamento in Vendita a Monza, Zona Centro Storico
  • Più di 5 locali
  • 172 mq
  • 2 bagni
VENDITA 20
€ 515.000
Appartamento in Vendita a Monza, Zona San Biagio
  • Più di 5 locali
  • 160 mq
  • 2 bagni
VENDITA 20
€ 585.000
Appartamento in Vendita a Monza, Zona San Biagio
  • Più di 5 locali
  • 170 mq
  • 2 bagni