Splendido e luminoso 2 Locali con terrazzino vivibile VENDITA

Sandro Pertini, 12 - Cesano Maderno (Monza e Brianza)
€ 155.000
  • Bilocale
  • 55 mq
  • 1 bagno

Appartamento in Vendita a Cesano Maderno

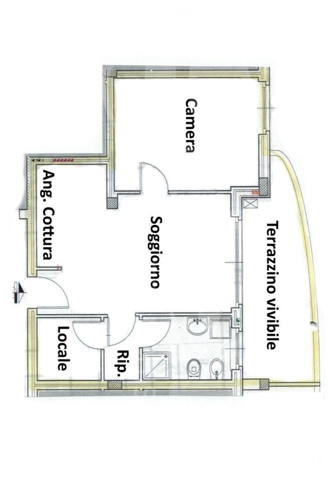
CESANO MADERNO Zona Cassina Savina - Propone Antonio Orsini questo affascinante appartamento di 2 locali sito al secondo piano servito dall'ascensore, composto da: Ingresso, soggiorno con angolo cottura, terrazzino vivibile ideale per momenti di relax e convivialità all'aperto, una camera, disimpegno con armadio a muro, ripostiglio vero ampio utilizzabile anche come angolo studio o come cabina armadio, bagno. Lo spazio è stato sapientemente progettato per offrire un'esperienza di vita moderna e funzionale. La posizione privilegiata esposta a Sud rende questa soluzione luminosa e confortevole, la stessa garantisce comodità e accessibilità a tutti i servizi essenziali, come negozi, scuole e mezzi di trasporto pubblici. Inoltre, la vicinanza a parchi e aree verdi offre la possibilità di godere di momenti di relax all'aria aperta. Termoautonomo con caldaia esterna e predisposizione per l'aria condizionata. Completa l'offerta la cantina e il box ad uso autorimessa ideale per parcheggiare sia l'auto che la moto. Libero subito e senza barriere architettoniche. Classe energetica C. 70,56 €. 155.000,00

LEGGI TUTTO

CONDIVIDI SUI SOCIAL

DATI PRINCIPALI

Riferimento
129966
Contratto
Vendita
Tipologia
Appartamento
Superficie
55 mq
Locali
2
Camere da letto
1
Cucina
Angolo cottura
Bagni
1
Piano
2 °
Totale piani
1
Box/Posto auto
Singolo

CARATTERISTICHE

Ascensore

COSTI

Prezzo
€ 155.000,00
Spese condominiali
€ 80,00 / mese

EFFICIENZA ENERGETICA

Stato
Abitabile
Anno costruzione
2009
Riscaldamento
Autonomo
Climatizzazione
Predisposizione
Classe energetica
C
IPE
70,56 kWh/m²a

A+

A

B

70,56 kWh/m²a | Classe energetica C

C

D

E

F

G

MAPPA

Cesano Maderno comune della Bassa Brianza Occidentale

ANNUNCI SIMILI

VENDITA 20
€ 255.000
Appartamento in Vendita a Cesano Maderno (Monza e Brianza)
  • Trilocale
  • 84 mq
  • 1 bagno
VENDITA 20
€ 270.000
Appartamento in Vendita a Cesano Maderno (Monza e Brianza)
  • Quadrilocale
  • 150 mq
  • 2 bagni
VENDITA 20
€ 370.000
Appartamento in Vendita a Cesano Maderno (Monza e Brianza)
  • Più di 5 locali
  • 240 mq
  • 3 bagni