Sovico – Monolocale con box, ottimo investimento VENDITA

Via Giovanni da Sovico - Sovico (Monza e Brianza)
€ 83.000
  • Monolocale
  • 44 mq
  • 1 bagno

Appartamento in Vendita a Sovico

Monolocale di recente costruzione con box in corte a Sovico – Ottimo investimento o prima casa

Cerchi un appartamento recente, ben collegato e in una zona tranquilla ma servita? Questo monolocale è la soluzione ideale sia come prima casa sia come investimento ad alta resa.
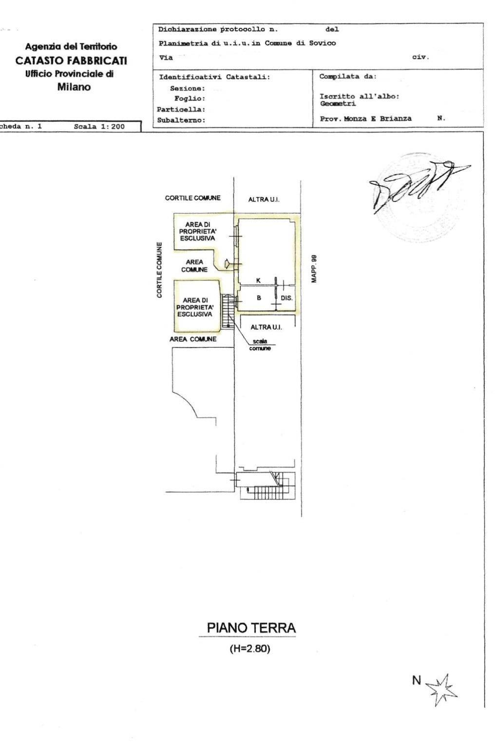
All'interno di una corte riservata e curata, costruita nel 2011, proponiamo un accogliente monolocale al piano terra di 44 mq commerciali con spazi ben organizzati. Incluso nel prezzo un comodo box singolo di 14 mq.
L'immobile è composto da zona giorno openspace, disimpegno e ampio bagno finestrato. È dotato di porta blindata, infissi in legno con doppi vetri e predisposizione per l’aria condizionata. Pronto per essere abitato o messo subito a reddito.

La posizione è un altro punto di forza: situato a pochi minuti a piedi dal centro di Sovico, con tutti i principali servizi a portata di mano (supermercati, farmacia, scuole, asilo, bar, ristoranti, ambulatori).
Ottimi i collegamenti con Monza, Milano, Carate Brianza e Mariano Comense grazie alla stazione ferroviaria di Macherio e alla vicina fermata del pullman.

Inoltre, a pochi minuti di auto dall'Università di Medicina Bicocca – Ospedale San Gerardo di Monza, rendendolo ideale anche per studenti, specializzandi o personale ospedaliero in cerca di una soluzione comoda, tranquilla e ben collegata.

Un’opportunità reale, perfetta per chi cerca comfort, funzionalità e una posizione strategica.

Contattaci ora per maggiori informazioni o per fissare una visita.

LEGGI TUTTO

CONDIVIDI SUI SOCIAL

DATI PRINCIPALI

Riferimento
130315
Contratto
Vendita
Tipologia
Appartamento
Superficie
44 mq
Locali
1
Cucina
A vista
Bagni
1
Piano
Piano terra
Totale piani
1
Box/Posto auto
Singolo

CARATTERISTICHE

Ascensore

COSTI

Prezzo
€ 83.000,00
Spese condominiali
€ 50,00 / mese

EFFICIENZA ENERGETICA

Stato
Abitabile
Anno costruzione
2010
Riscaldamento
Autonomo
Climatizzazione
Si
Classe energetica
E
IPE
175,00 kWh/m²a

A+

A

B

C

D

175,00 kWh/m²a | Classe energetica E

E

F

G

MAPPA

Sovico comune della Bassa Brianza Centrale Sud

ANNUNCI SIMILI

VENDITA 20
€ 195.000
Appartamento in Vendita a Sovico (Monza e Brianza)
  • Trilocale
  • 100 mq
  • 2 bagni
VENDITA 20
€ 179.000
Appartamento in Vendita a Sovico (Monza e Brianza)
  • Trilocale
  • 119 mq
  • 1 bagno
VENDITA 20
€ 516.000
Appartamento in Vendita a Sovico (Monza e Brianza)
  • Trilocale
  • 161 mq
  • 2 bagni
VENDITA 20
€ 488.000
Appartamento in Vendita a Sovico (Monza e Brianza)
  • Trilocale
  • 152 mq
  • 2 bagni