RISTRUTTURATO CON DOPPI SERVIZI VENDITA

Via Monti 22 - Seregno (Monza e Brianza)
€ 239.000
  • Trilocale
  • 100 mq
  • 2 bagni

Appartamento in Vendita a Seregno

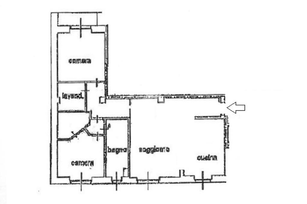
In palazzina servita da ascensore, proponiamo in vendita un raffinato appartamento sito al piano primo, recentemente e completamente ristrutturato con finiture moderne e di alta qualità.
L’ingresso si apre su un ampio e luminoso soggiorno con cucina a vista, progettato per offrire uno spazio accogliente e funzionale, ideale sia per la vita quotidiana che per momenti di convivialità. Un comodo disimpegno conduce alla zona notte, ben separata, dove troviamo due spaziose camere da letto, di cui una impreziosita da una pratica cabina armadio e da un elegante servizio padronale finestrato, completo di doccia.
L’immobile dispone inoltre di un secondo bagno, organizzato anche come lavanderia, perfetto per garantire praticità e comfort nella gestione degli spazi domestici.
La recente ristrutturazione ha valorizzato ogni ambiente, con particolare attenzione ai dettagli, agli impianti e alla distribuzione degli spazi, rendendo l’appartamento pronto per essere abitato senza necessità di ulteriori interventi.
Soluzione ideale per chi è alla ricerca di un’abitazione moderna, funzionale e inserita in un contesto ben curato.

LEGGI TUTTO

CONDIVIDI SUI SOCIAL

DATI PRINCIPALI

Riferimento
132876
Contratto
Vendita
Tipologia
Appartamento
Superficie
100 mq
Locali
3
Camere da letto
2
Cucina
Abitabile
Bagni
2
Piano
1 °
Totale piani
5

CARATTERISTICHE

Ascensore

COSTI

Prezzo
€ 239.000,00
Spese condominiali
€ 1,00 / mese

EFFICIENZA ENERGETICA

Stato
Ristrutturato
Anno costruzione
1970
Riscaldamento
Centralizzato
Climatizzazione
Si
Classe energetica
F
IPE
160,00 kWh/m²a

A+

A

B

C

D

E

160,00 kWh/m²a | Classe energetica F

F

G

MAPPA

Seregno comune della Bassa Brianza Centrale Sud

ANNUNCI SIMILI

VENDITA 20
€ 79.000
Appartamento in Vendita a Seregno (Monza e Brianza)
  • Trilocale
  • 84 mq
  • 1 bagno
VENDITA 20
€ 259.000
Appartamento in Vendita a Seregno (Monza e Brianza)
  • Quadrilocale
  • 142 mq
  • 2 bagni
VENDITA 20
€ 390.000
Appartamento in Vendita a Seregno (Monza e Brianza)
  • Trilocale
  • 130 mq
  • 2 bagni