RESIDENZA AMBROSIANA VENDITA

Via Giacomo Matteotti - Cabiate (Como)
€ 275.000
  • Trilocale
  • 85 mq
  • 2 bagni

Appartamento in Vendita a Cabiate

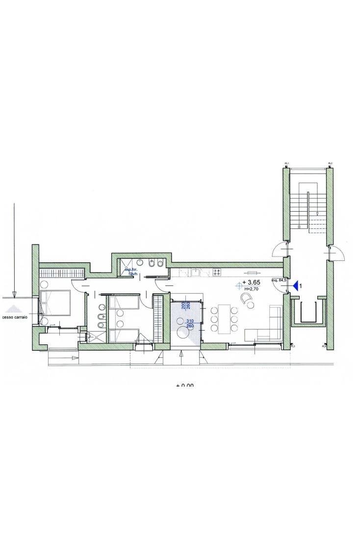
"Residenza Ambrosiana", appartamento mq. 85 ca. ingresso, soggiorno con cucina a vista, 2 camere, 2 bagni, balcone mq. 10 ca. cantina. Possibilità box doppio da € 28.000, 00. Finiture signorili. Facciata ad intonaco con isolamento termico a cappotto. Davanzali in alluminio. Serramenti in alluminio con doppi vetri e oscuramento garantito da veneziane in alluminio con motorizzazione elettrica. Porta primo ingresso blindata. Porte interne in legno a battente. Pavimentazione in gres porcellanato nella zona giorno e parquet essenza Rovere a listoni nella zona notte. Sanitari sospesi Duravit con miscelatori Hansgrohe modello Focus. Impianto centralizzato bivalente con caldaia ecologica a condensazione e pompa di calore aria/acqua per la produzione di acqua calda e riscaldamento. Impianto di riscaldamento con pannelli a pavimento. Contabilizzazione consumi (riscaldamento, acqua calda e fredda). Impianto elettrico Vimar serie Idea. Predisposizione aria condizionata. Predisposizione impianto allarme volumetrico e perimetrale. Impianto fotovoltaico. Videocitofono. Ascensore.

La presente scheda non costituisce forma di contratto, le informazioni qui contenute (comprese alcune immagini) sono da ritenersi del tutto indicative e non potranno essere utilizzate come parte integrante in un eventuale contratto di vendita o locazione della proprietà. La presente non vincola in alcun modo le parti.

LEGGI TUTTO

CONDIVIDI SUI SOCIAL

DATI PRINCIPALI

Riferimento
126710
Contratto
Vendita
Tipologia
Appartamento
Superficie
85 mq
Locali
3
Camere da letto
2
Cucina
A vista
Bagni
2
Piano
1 °
Totale piani
3
Box/Posto auto
Doppio

CARATTERISTICHE

Ascensore

COSTI

Prezzo
€ 275.000,00
Spese condominiali
€ 50,00 / mese

EFFICIENZA ENERGETICA

Stato
Nuovo/In costruzione
Anno costruzione
2024
Riscaldamento
Autonomo
Climatizzazione
Predisposizione
Classe energetica
A1
IPE
351,00 kWh/m²a

A4

A3

A2

351,00 kWh/m²a | Classe energetica A1

A1

B

C

D

E

F

G

MAPPA

Cabiate comune della Bassa Brianza Comasca

ANNUNCI SIMILI

VENDITA 20
€ 410.000
Appartamento in Vendita a Cabiate (Como)
  • Trilocale
  • 130 mq
  • 2 bagni
VENDITA 20
€ 430.000
Appartamento in Vendita a Cabiate (Como)
  • Quadrilocale
  • 140 mq
  • 2 bagni
VENDITA 20
€ 315.000
Appartamento in Vendita a Cabiate (Como)
  • Trilocale
  • 99 mq
  • 2 bagni
VENDITA 20
€ 309.000
Appartamento in Vendita a Cabiate (Como)
  • Trilocale
  • 103 mq
  • 2 bagni
VENDITA 20
€ 314.000
Appartamento in Vendita a Cabiate (Como)
  • Trilocale
  • 103 mq
  • 2 bagni
VENDITA 20
€ 289.000
Appartamento in Vendita a Cabiate (Como)
  • Trilocale
  • 102 mq
  • 2 bagni
VENDITA 20
€ 250.600
Appartamento in Vendita a Cabiate (Como)
  • Trilocale
  • 90 mq
  • 2 bagni
VENDITA 20
€ 385.450
Appartamento in Vendita a Cabiate (Como)
  • Trilocale
  • 135 mq
  • 2 bagni
VENDITA 20
€ 404.600
Appartamento in Vendita a Cabiate (Como)
  • Quadrilocale
  • 145 mq
  • 2 bagni
VENDITA 5
€ 260.000
Appartamento in Vendita a Cabiate (Como)
  • Quadrilocale
  • 125 mq
  • 2 bagni