Residence Vismara 4.4. La tua nuova casa ad Agrate Brianza. VENDITA

Via Padre Clemente Vismara - Agrate Brianza (Monza e Brianza)
€ 389.000
  • Quadrilocale
  • 138 mq
  • 2 bagni

Appartamento in Vendita a Agrate Brianza

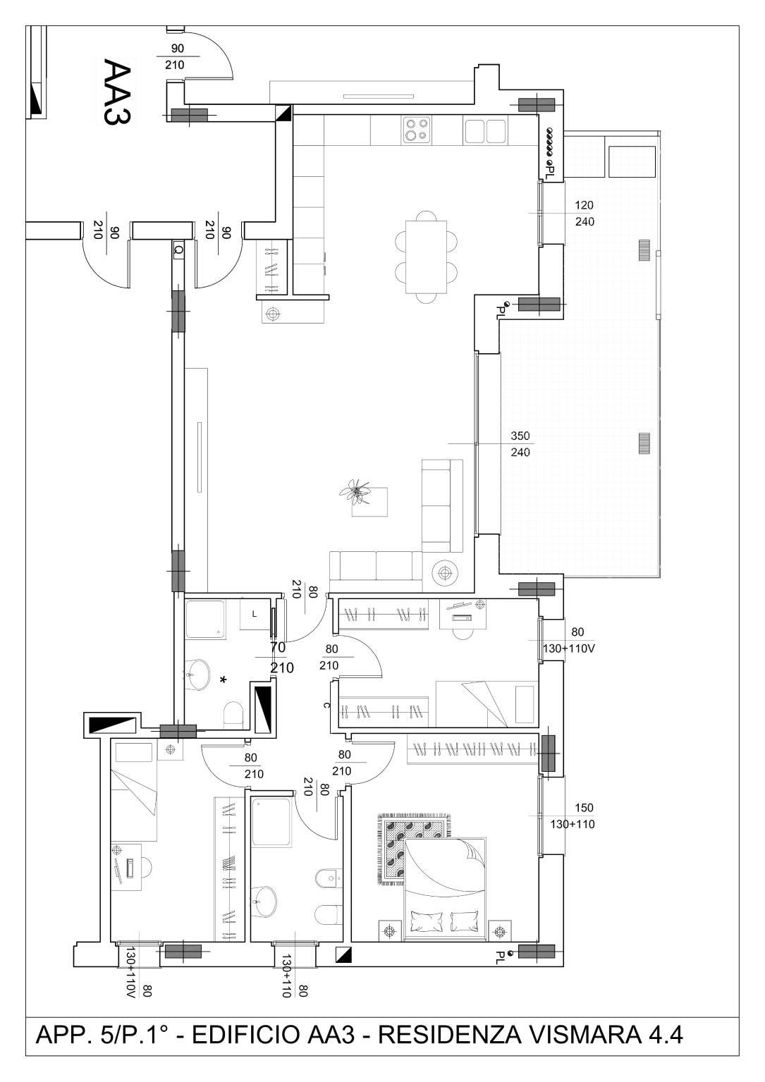
In costruzione, Palazzina AA3. Appartamento 5. Appartamento a piano primo di quattro locali con terrazzo. L'appartamento si compone di ingresso, soggiorno affacciato su uno splendido terrazzo esposto a ovest, cucina abitabile, disimpegno, ampia camera matrimoniale, ulteriori due camere , disimpegno e due bagni. La metratura permette la possibilità di personalizzare gli spazi a seconda delle esigenze dell'acquirente. Annessa cantina al piano interrato e possibilità scelta box singoli o doppi. Il contesto si trova a ridosso del centro di Agrate, in una zona tranquilla e servita, caratterizzata dalla presenza di piccole palazzine, del supermercato che si trova a pochi passi, così come la fermata del pullman. Facilmente raggiungibili a piedi asilo (sotto casa) e scuole elementari e medie, il centro sportivo con tutte le attività ricreative per i ragazzi, l'ufficio postale, la banca e i negozi di paese. Agrate è un comune italiano di circa 16000 abitanti, si trova nella provincia di Monza e della Brianza in Lombardia. Si trova nella a nord est di Milano. Dista da Monza, capoluogo di provincia, circa 5 km. Da Milano, capoluogo di regione circa 25 km. Da Bergamo, circa 30 km. Da Lecco, circa 34 km. Le suddette località sono facilmente raggiungibili in auto grazie all'autostrada A4 MILANO - VENEZIA e alla tangenziale est MILANO LECCO. A pochi minuti di auto il centro commerciale e cinema "TORRI BIANCHE" di Vimercate, il centro commerciale "GLOBO" di Busnago, il centro commerciale "CAROSELLO" di Carugate, il parco divertimenti "LEOLANDIA" . L'ospedale di Vimercate dista 7 km e si raggiunge in 9 minuti d'auto. L'architettura presenta elementi di design, ampi spazi interni ed esterni vivibili, dove poter leggere, pranzare e rilassarsi con i propri famigliari. Una location ideale per raggiungere le vicine Milano, Monza e Bergamo utilizzando le autostrade e le tangenziali raggiungibili in un minuto di auto. Supermercati e centri commerciali, cinema, plessi scolastici a disposizione degli abitanti del nuovo residence Vismara 4.4. Un capitolato di alto livello negli alloggi privati e nelle parti comuni, con appartamenti dotati di impiantistica autonoma, gas free, e con consumi personalizzati sulla singola unità abitativa. IMPIANTO DI RISCALDAMENTO AUTONOMO: L’impianto sarà di tipo autonomo indipendente a pompa di calore aria-acqua con produzione combinata di acqua calda sanitaria, riscaldamento e raffrescamento. Modulo in unità esterna sul balcone di proprietà completo di vaso espansione, serbatoio “puffer” di accumulo dell’acqua calda per ottimizzare il funzionamento estivo, bollitore sanitario di accumulo da 150 lt con isolamento grafitico per acqua calda sanitaria. Sistema di caricamento automatico dell’impianto e pompa di circolazione maggiorata. L’energia necessaria sarà prodotta da una Pompa di calore aria-acqua splittata inverter in unità esterna, con controllo inverter per adattare in ogni istante la potenza erogata a quella richiesta dall’impianto. A completamento verrà installata apparecchiatura per il “controllo da remoto” delle temperature con monitoraggio costante dei consumi energetici L’impianto di ogni unità abitativa sarà con sistema di riscaldamento del tipo a pavimento con tubazioni radianti in polietilene reticolato posate sul pannello bugnato di supporto.

LEGGI TUTTO

CONDIVIDI SUI SOCIAL

DATI PRINCIPALI

Riferimento
128699
Contratto
Vendita
Tipologia
Appartamento
Superficie
138 mq
Locali
4
Camere da letto
3
Cucina
Abitabile
Bagni
2
Piano
1 °
Totale piani
5

CARATTERISTICHE

Ascensore

COSTI

Prezzo
€ 389.000,00

EFFICIENZA ENERGETICA

Stato
Nuovo/In costruzione
Anno costruzione
2025
Riscaldamento
Autonomo
Climatizzazione
Si
Classe energetica
A+
IPE
175,00 kWh/m²a
175,00 kWh/m²a | Classe energetica A+

A+

A

B

C

D

E

F

G

MAPPA

Agrate Brianza comune della Bassa Brianza Orientale o Vimercatese

ANNUNCI SIMILI