QUADRILOCALE OTTIMO STATO CON BOX DOPPIO IN ZONA CENTRALE VENDITA

Cantù (Como)
€ 210.000
  • Quadrilocale
  • 140 mq
  • 2 bagni

Appartamento in Vendita a Cantù

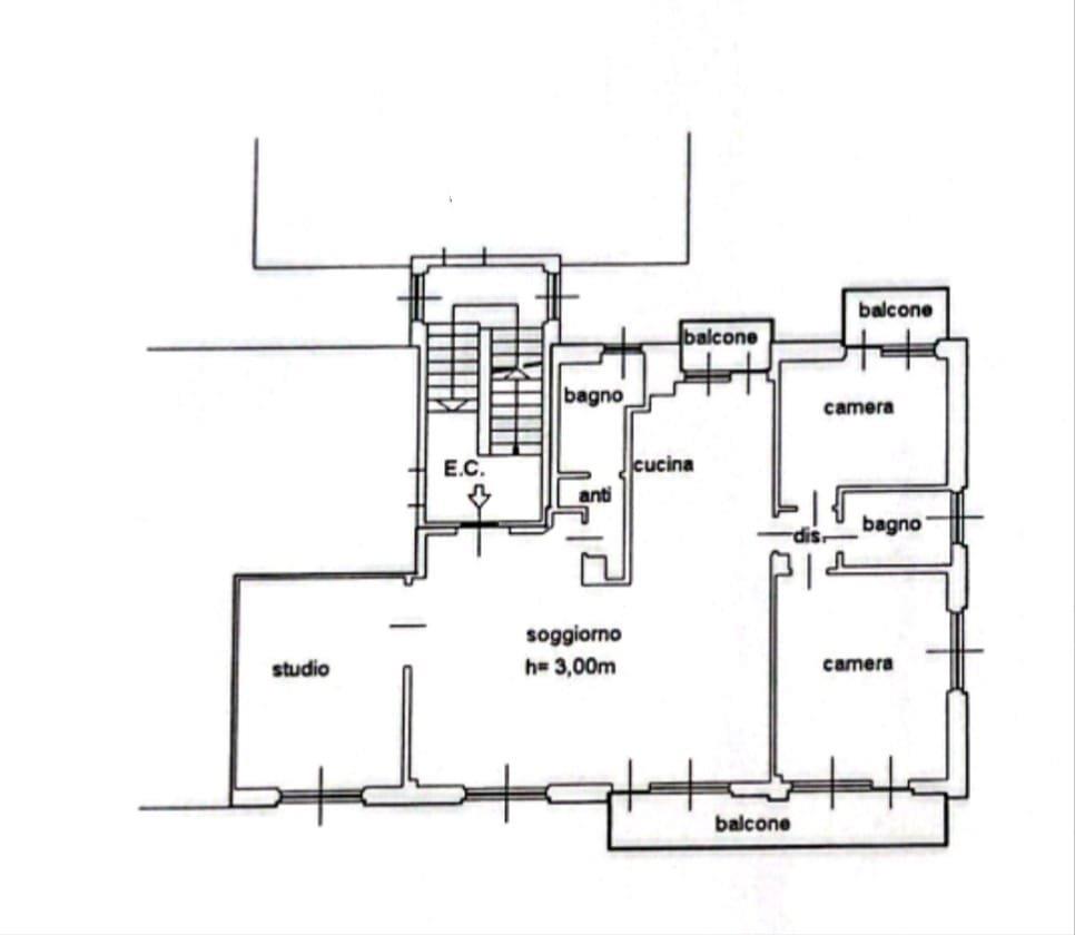
Proponiamo in vendita a Cantù, in zona centralissima, contesto condominiale, ampio appartamento di quattro locali posto al piano primo, composto da un ingresso sull'ampio e luminoso soggiorno con cucina a vista, 2 confortevoli camerette e una spaziosa camera matrimoniale, un primo servizio con box doccia oltre al servizio padronale con vasca da bagno. Tutti gli ambienti hanno delle pratiche porte finestre con affaccio sui pratici balconi. Impianto elettrico a norma con domotica, serramenti in doppiovetro, monoblocco, tapparelle esterne elettriche a taglio termico, videocitofono, impianto di riscaldamento centralizzato con termovalvole e contabilizzatori. Immobile completamente ristrutturato nel 2019.
Completa la proprietà un box doppio di 40mq circa ad euro 25.000
Si ricorda che la via citata è puramente indicativa.
Non esitare a contattarci per prenotare la tua visita.

LEGGI TUTTO

CONDIVIDI SUI SOCIAL

DATI PRINCIPALI

Riferimento
127640
Contratto
Vendita
Tipologia
Appartamento
Superficie
140 mq
Locali
4
Camere da letto
3
Cucina
Abitabile
Bagni
2
Piano
1 °
Totale piani
3
Box/Posto auto
Doppio

CARATTERISTICHE

Ascensore

COSTI

Prezzo
€ 210.000,00
Spese condominiali
€ 140,00 / mese

EFFICIENZA ENERGETICA

Stato
Ristrutturato
Anno costruzione
1975
Riscaldamento
Centralizzato
Climatizzazione
Si
Classe energetica
D
IPE
146,34 kWh/m²a

A+

A

B

C

146,34 kWh/m²a | Classe energetica D

D

E

F

G

MAPPA

Cantù comune della Bassa Brianza Comasca

ANNUNCI SIMILI

VENDITA 17
€ 170.000
Appartamento in Vendita a Cantù (Como)
  • Quadrilocale
  • 140 mq
  • 2 bagni
VENDITA 20
€ 229.000
Appartamento in Vendita a Cantù (Como)
  • Quadrilocale
  • 127 mq
  • 2 bagni
VENDITA 20
€ 159.000
Appartamento in Vendita a Cantù (Como)
  • Quadrilocale
  • 145 mq
  • 2 bagni
VENDITA 18
€ 321.000
Appartamento in Vendita a Cantù (Como)
  • Quadrilocale
  • 121 mq
  • 2 bagni
VENDITA 20
€ 130.000
Appartamento in Vendita a Cantù (Como)
  • Più di 5 locali
  • 116 mq
  • 1 bagno
VENDITA 5
€ 198.000
Appartamento in Vendita a Cantù (Como)
  • Più di 5 locali
  • 205 mq
  • 3 bagni