QUADRILOCALE CON TERRAZZO CLASSE B IN VENDITA A LISSONE VENDITA

Via Statuto - Lissone (Monza e Brianza)
€ 259.000
  • Quadrilocale
  • 106 mq
  • 1 bagno

Appartamento in Vendita a Lissone

Codice di riferimento: Q0147

In vendita a Lissone: Quadrilocale in una posizione strategica!

A soli tre minuti dall'imbocco della SS 36 Valassina e a 750 metri dalla stazione Lissone - Muggiò, Gas Immobiliare propone un'ottima opportunità immobiliare in una zona ben servita e vicina a tutti i principali servizi, tra cui l'Iperal, situato a soli 200 metri.

L'immobile si trova al primo piano di un elegante contesto residenziale, attualmente oggetto di riqualificazione, e offre la possibilità di personalizzare una delle sei soluzioni abitative disponibili, tutte in classe energetica B.

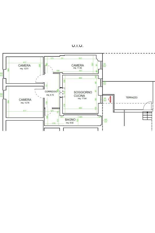
Questo luminoso quadrilocale è composto da un ingresso che si affaccia su un ampio terrazzo, collegato alla zona giorno con cucina a vista. Attraverso un pratico disimpegno, si accede alla zona notte, dove troviamo due

spaziose camere matrimoniali, una cameretta e un ampio bagno finestrato dotato di doccia.

Inoltre, è possibile trasformare la cameretta, adiacente al soggiorno, in una cucina abitabile, creando così un funzionale trilocale con un secondo bagno di servizio.

Non perdere l'occasione di vivere in un ambiente moderno e personalizzabile, perfetto per famiglie e professionisti! Contattaci per ulteriori informazioni e per organizzare una visita.

LEGGI TUTTO

CONDIVIDI SUI SOCIAL

DATI PRINCIPALI

Riferimento
130984
Contratto
Vendita
Tipologia
Appartamento
Superficie
106 mq
Locali
4
Camere da letto
3
Cucina
A vista
Bagni
1
Piano
1 °
Totale piani
2

CARATTERISTICHE

Ascensore

COSTI

Prezzo
€ 259.000,00

EFFICIENZA ENERGETICA

Stato
Ristrutturato
Anno costruzione
2025
Riscaldamento
Autonomo
Climatizzazione
Predisposizione
Classe energetica
B
IPE
351,00 kWh/m²a

A+

A

351,00 kWh/m²a | Classe energetica B

B

C

D

E

F

G

MAPPA

Lissone comune della Bassa Brianza Centrale Sud

ANNUNCI SIMILI

VENDITA 20
€ 299.000
Appartamento in Vendita a Lissone (Monza e Brianza)
  • Quadrilocale
  • 121 mq
  • 2 bagni
VENDITA 17
€ 340.000
Appartamento in Vendita a Lissone (Monza e Brianza)
  • Quadrilocale
  • 115 mq
  • 2 bagni