PROSSIMA REALIZZAZIONE A CESANO MADERNO, CLASSE A4 VENDITA

Via Amatore Sciesa - Cesano Maderno (Monza e Brianza)
€ 562.000
  • Quadrilocale
  • 152 mq
  • 2 bagni

Appartamento in Vendita a Cesano Maderno

CIVICO 4 si distingue per la sua architettura moderna e tecnologicamente all'avanguardia, perfettamente integrata nell'ambiente circostante.
La palazzina di sole sei unità abitative sorge in posizione privilegiata e dispone di appartamenti dotati di giardini privati e ampi terrazzi.
La pecurialità di questa soluzione è la progettazione degli spazi interni ampi e ben definiti fra loro, illuminati dalla luce naturale che filtra attraverso ampie finestre.
L’edificio viene progettato per essere altamente efficiente energeticamente, utilizzando fonti rinnovabili per alimentare le diverse funzioni abitative.
Le soluzioni abitative sono pensate per soddisfare le esigenze dei residenti in termini di comfort e funzionalità; gli appartamenti sono stati progettati per essere accoglienti e funzionali.
Residenza Civico 4 è composta da sole sei unità abitative differenti tra loro e con caratteristiche uniche.
Classe energetica A4!
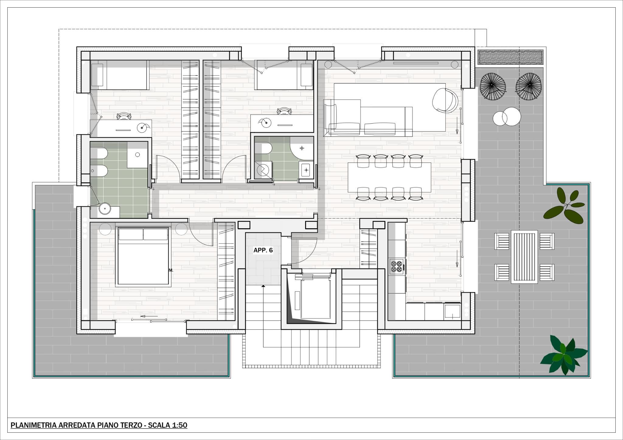
NELLO SPECIFICO APPARTAMENTO N.6:
panoramico attico sito al piano terzo ed ultimo libero su quattro lati composto da ampio soggiorno con cucina semi abitabile, tre camere e due bagni. Dotato di due terrazzi per un totale di mq.60,46 e cantina. L' accesso esclusivo all'attico con l'ascensore privato garantisce il massimo della privacy, del confort e dell' eleganza.
Possibilità box singoli e doppi da € 25.000,00.
Per maggiori informazioni contattaci al 0362509166 oppure vieni a trovarci nel nostro studio in via Milano 45/A, Cesano Maderno (MB) per scoprire tutte le soluzioni.

LEGGI TUTTO

CONDIVIDI SUI SOCIAL

DATI PRINCIPALI

Riferimento
128905
Contratto
Vendita
Tipologia
Appartamento
Superficie
152 mq
Locali
4
Camere da letto
3
Cucina
Abitabile
Bagni
2
Piano
3 °
Totale piani
3

CARATTERISTICHE

Ascensore

COSTI

Prezzo
€ 562.000,00

EFFICIENZA ENERGETICA

Stato
Nuovo/In costruzione
Anno costruzione
2025
Riscaldamento
Autonomo
Climatizzazione
Si
Classe energetica
A4
IPE
351,00 kWh/m²a
351,00 kWh/m²a | Classe energetica A4

A4

A3

A2

A1

B

C

D

E

F

G

MAPPA

Cesano Maderno comune della Bassa Brianza Occidentale

ANNUNCI SIMILI

VENDITA 20
€ 405.000
Appartamento in Vendita a Cesano Maderno (Monza e Brianza)
  • Quadrilocale
  • 121 mq
  • 2 bagni