OTTIMO 3 LOCALI IN CLASSE B VENDITA

Via San Grato 7 - Nova Milanese (Monza e Brianza)
€ 205.000
  • Trilocale
  • 85 mq
  • 1 bagno

Appartamento in Vendita a Nova Milanese

Nova Milanese, in zona semi centrale, comoda con i principali servizi, vicina al parco e comoda con le principali vie di comunicazioni, proponiamo in vendita un ottimo tre locali in palazzina di recente costruzione e in classe energetica B.
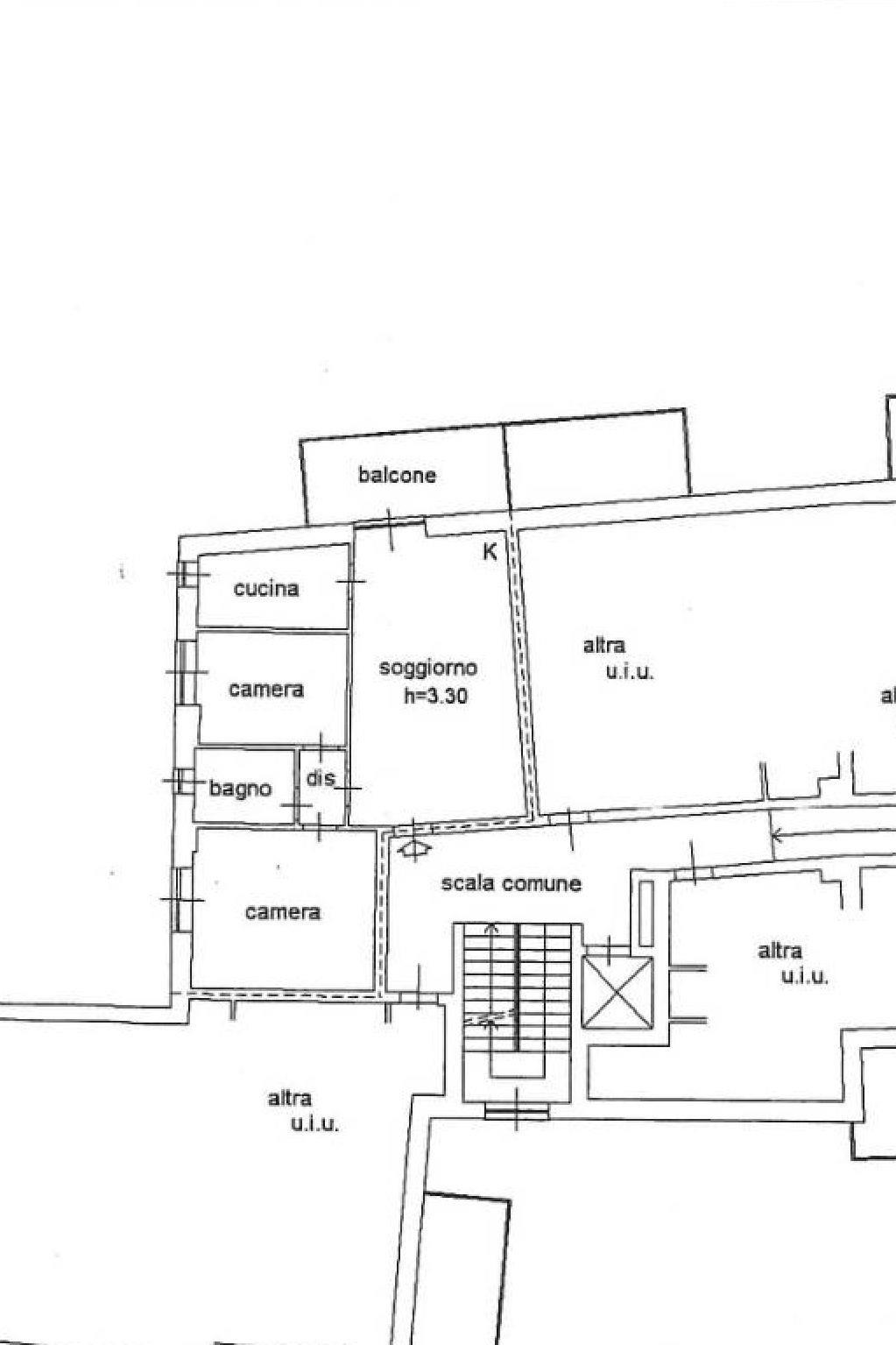
L'immobile, di circa 85 mq, è situato al primo piano con ascensore e risulta così composto: ingresso sul soggiorno che consente l'uscita sul terrazzino, cucina semi-abitabile, disimpegno che conduce alla zona notte dove troviamo il bagno, la camera matrimoniale e la cameretta.
Completano la soluzione il box singolo con annessa cantina a €25.000.
Riscaldamento centralizzato, aria condizionata, doppia esposizione.
Prezzo: €205.000
DA VEDERE!

LEGGI TUTTO

CONDIVIDI SUI SOCIAL

DATI PRINCIPALI

Riferimento
124473
Contratto
Vendita
Tipologia
Appartamento
Superficie
85 mq
Locali
3
Camere da letto
2
Cucina
Abitabile
Bagni
1
Piano
1 °
Totale piani
1
Box/Posto auto
Singolo

CARATTERISTICHE

Ascensore

COSTI

Prezzo
€ 205.000,00
Spese condominiali
€ 85,00 / mese

EFFICIENZA ENERGETICA

Stato
Ristrutturato
Anno costruzione
2012
Riscaldamento
Centralizzato
Climatizzazione
Si
Classe energetica
B
IPE
351,00 kWh/m²a

A+

A

351,00 kWh/m²a | Classe energetica B

B

C

D

E

F

G

MAPPA

Nova Milanese comune della Bassa Brianza Centrale Sud

ANNUNCI SIMILI

VENDITA 14
€ 164.000
Appartamento in Vendita a Nova Milanese (Monza e Brianza)
  • Quadrilocale
  • 110 mq
  • 2 bagni