Oasi di Tranquillità e Luce! ? VENDITA

G.DI VITTORIO 28 - Cassago Brianza (Lecco)
€ 183.000
  • Trilocale
  • 90 mq
  • 1 bagno

Appartamento in Vendita a Cassago Brianza

" VENDUTO IN 10 GIORNI "
Oasi di Tranquillità e Luce! ✨
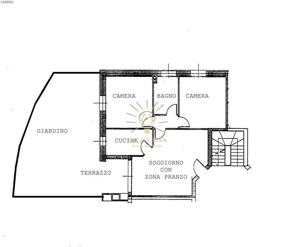
​Scopri il tuo rifugio ideale in una deliziosa palazzina situata in una riservatissima strada privata. Questo splendido trilocale al piano terra ti aspetta con un ampia zona living composta da cucina separata, soggiorno e zona pranzo.
​Immerso nel verde, con vista aperta sui campi, vanta una fantastica esposizione a Sud che inonda di luce ogni ambiente. Goditi momenti di relax sul tuo terrazzo e giardino privati, dalla quale si accede mediante dei grandi finestroni ubicati nella zona giorno. Due accoglienti camere matrimoniali e un ampio bagno con vasca completano la proprietà.
​Una soluzione unica in termini di tranquillità e comfort! e per finire non poteva mancare un box doppio di ampie dimensioni.
​Non perdere l'occasione di vivere in questo angolo di paradiso: prenota subito la tua visita!
Le informazioni e fotografie presenti all'interno di questo annuncio sono meramente indicative e non costituiscono elementi contrattuali.

LEGGI TUTTO

CONDIVIDI SUI SOCIAL

DATI PRINCIPALI

Riferimento
133355
Contratto
Vendita
Tipologia
Appartamento
Superficie
90 mq
Locali
3
Camere da letto
2
Cucina
Abitabile
Bagni
1
Piano
Piano terra
Totale piani
3
Box/Posto auto
Doppio

CARATTERISTICHE

Ascensore

COSTI

Prezzo
€ 183.000,00
Spese condominiali
€ 83,00 / mese

EFFICIENZA ENERGETICA

Stato
Ristrutturato
Anno costruzione
2004
Riscaldamento
Autonomo
Classe energetica
E
IPE
231,33 kWh/m²a

A+

A

B

C

D

231,33 kWh/m²a | Classe energetica E

E

F

G

MAPPA

Cassago Brianza comune della Brianza Casatese