NUOVO TRILOCALE CON BOX E CANTINA VENDITA

Via Don Elia dell'Orto 42 - Mariano Comense (Como)
€ 279.000
  • Trilocale
  • 100 mq
  • 2 bagni

Appartamento in Vendita a Mariano Comense

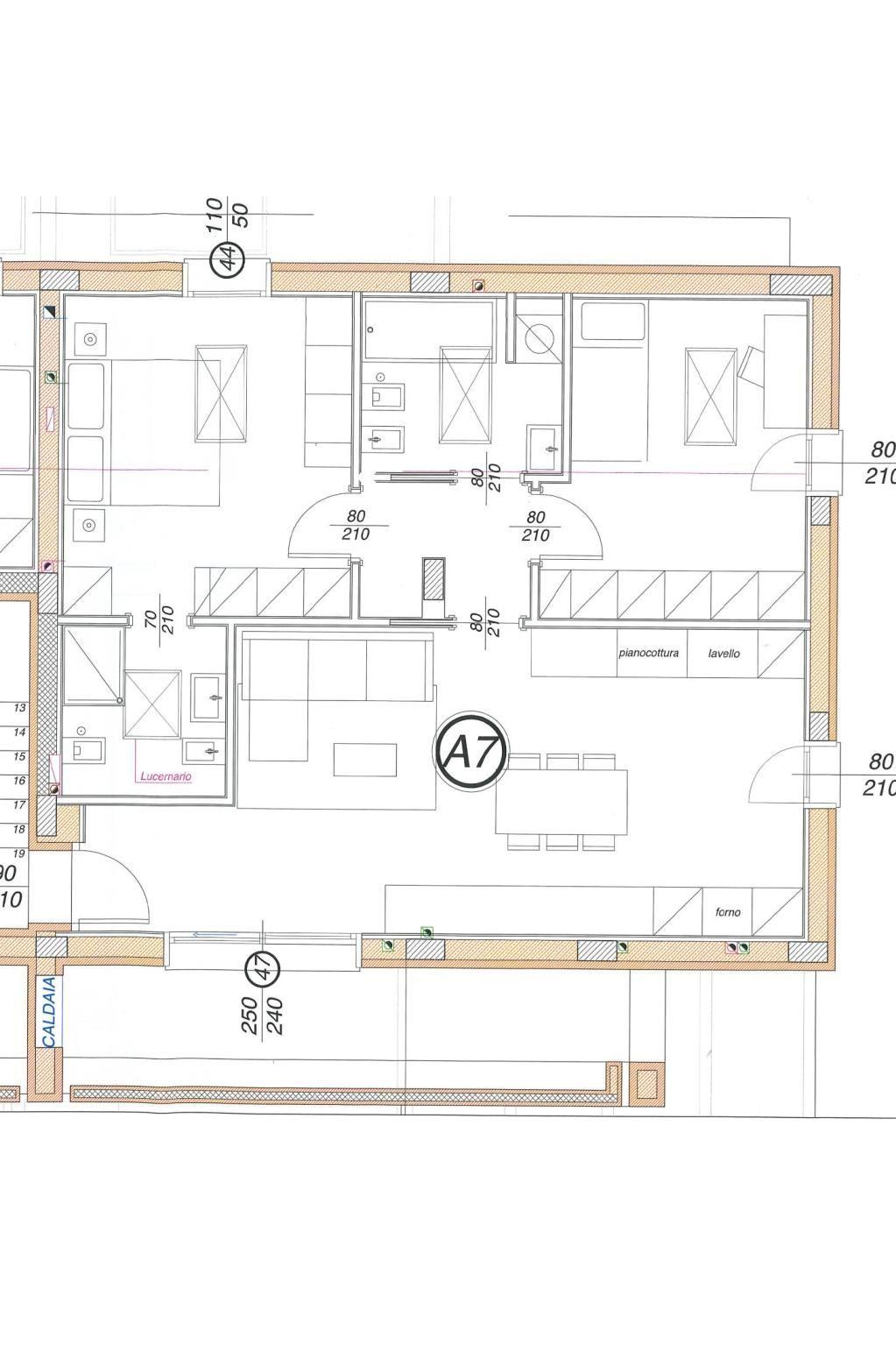
Mariano Comense: frazione Perticato, proponiamo in vendita in una piccola palazzina del 2023 di sole quattro unità abitative un ampio trilocale di 100 mq posto al piano primo ed ultimo il quale offre un'atmosfera accogliente grazie alle travi in legno a vista ed alla tripla esposizione sud-est-ovest.
La soluzione è composta da ingresso, soggiorno ampio con cucina a vista con affaccio su balcone, disimpegno, bagno, due camere da letto matrimoniali di cui una con bagno.
L’appartamento è dotato di predisposizione aria condizionata, antifurto, serramenti in pvc doppio vetro, riscaldamento autonomo A PAVIMENTO.
Possibilità di scegliere le finiture interne secondo il proprio gusto.
A completare la soluzione troviamo un’ampia cantina/taverna piastrellata di 25 mq e ampio box singolo.
BASSE SPESE CONDOMINIALI!
*
*
Stai pensando di vendere o affittare il tuo immobile? Siamo al tuo fianco nel momento più importante: la valutazione…affidati a noi per una stima gratuita e non impegnativa.
Scopri quale mutuo puoi richiedere e con i nostri consulenti del credito Monety, ti accompagniamo in ogni fase della ricerca del finanziamento più idoneo alle tue esigenze: un processo delicato che spesso richiede del tempo, snellito dalla supervisione di un team professionale ed esperto.
Il nostro team di consulenti del credito lavora in collaborazione con diverse banche e istituti finanziari, così da individuare sempre le migliori opzioni di finanziamento disponibili sul mercato.
Gabetti Franchising Agency è un brand capace di rinnovarsi ed emergere per fronteggiare i rapidi cambiamenti del mercato immobiliare, attraverso la riconosciuta professionalità dei suoi imprenditori concretizza e applica i valori della tradizione, della società e dell'affidabilità, coniugandoli con quelli della modernità, dell'innovazione e del dinamismo.

LEGGI TUTTO

CONDIVIDI SUI SOCIAL

DATI PRINCIPALI

Riferimento
121382
Contratto
Vendita
Tipologia
Appartamento
Superficie
100 mq
Locali
3
Camere da letto
2
Cucina
A vista
Bagni
2
Piano
1 °
Totale piani
1
Box/Posto auto
Singolo

CARATTERISTICHE

Ascensore

COSTI

Prezzo
€ 279.000,00

EFFICIENZA ENERGETICA

Stato
Nuovo/In costruzione
Anno costruzione
2023
Riscaldamento
Autonomo
Climatizzazione
Predisposizione
Classe energetica
A
IPE
175,00 kWh/m²a

A+

175,00 kWh/m²a | Classe energetica A

A

B

C

D

E

F

G

MAPPA

Mariano Comense comune della Bassa Brianza Comasca

ANNUNCI SIMILI

VENDITA 20
€ 125.000
Appartamento in Vendita a Mariano Comense (Como)
  • Trilocale
  • 92 mq
  • 1 bagno
VENDITA 20
€ 165.000
Appartamento in Vendita a Mariano Comense (Como)
  • Trilocale
  • 110 mq
  • 1 bagno
VENDITA 12
€ 465.000
Appartamento in Vendita a Mariano Comense (Como)
  • Quadrilocale
  • 135 mq
  • 2 bagni