Monza – Via Bergamo, Centro Storico VENDITA

Via Bergamo 26 - Monza (Monza e Brianza)
€ 215.000
  • Bilocale
  • 75 mq
  • 1 bagno

Appartamento in Vendita a Monza

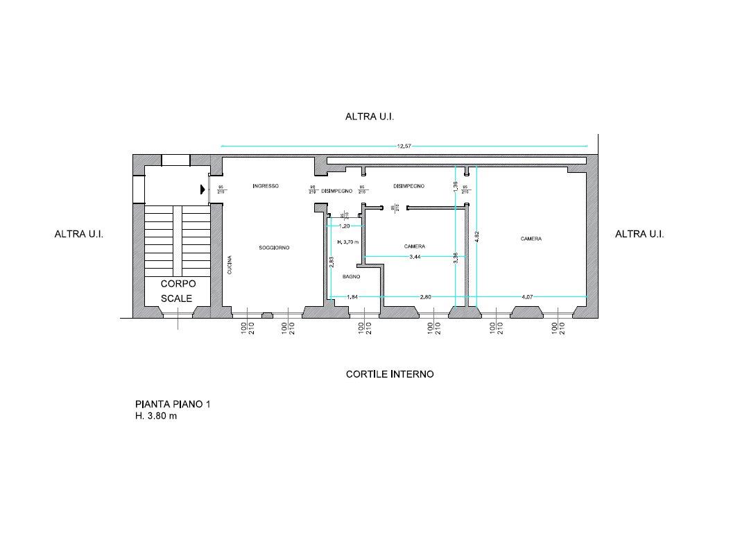
Monza - In casa d’epoca dei primi ‘900, ampio bilocale con possibilità di trasformazione in trilocale. Posto al primo piano, composto da ingresso, soggiorno, cucina abitabile, camera da letto e bagno finestrato. Altezze interne superiori alla media conferiscono grande luminosità e danno la possibilità di creare zone soppalcate valorizzando ulteriormente gli spazi. Riscaldamento autonomo con basse spese condominiali. Disponibile in acquisto a parte un ampio box di 25 mq. nello stesso contesto. Zona servitissima: supermercati, scuole, palestre, aree verdi e fermate autobus a pochi passi. Stazione Sobborghi a 5 minuti a piedi, stazione centrale a 10 minuti e Parco di Monza/Villa Reale raggiungibile in 15 minuti. Ideale per chi cerca il fascino dell’epoca, con spazi personalizzabili, e la comodità del centro storico.

LEGGI TUTTO

CONDIVIDI SUI SOCIAL

DATI PRINCIPALI

Riferimento
126514
Contratto
Vendita
Tipologia
Appartamento
Superficie
75 mq
Locali
2
Camere da letto
1
Cucina
Abitabile
Bagni
1
Piano
1 °
Totale piani
2
Box/Posto auto
Singolo

CARATTERISTICHE

Ascensore

COSTI

Prezzo
€ 215.000,00
Spese condominiali
€ 80,00 / mese

EFFICIENZA ENERGETICA

Stato
Abitabile
Anno costruzione
1930
Riscaldamento
Autonomo
Climatizzazione
Si
Classe energetica
D
IPE
175,00 kWh/m²a

A+

A

B

C

175,00 kWh/m²a | Classe energetica D

D

E

F

G

MAPPA

Monza comune della Bassa Brianza Centrale Sud

ANNUNCI SIMILI

VENDITA 20
€ 360.000
Appartamento in Vendita a Monza (Monza e Brianza)
  • Quadrilocale
  • 127 mq
  • 1 bagno