€ 220.000
  • Monolocale
  • 53 mq
  • 1 bagno

Appartamento in Vendita a Monza

APPARTAMENTO IN VENDITA - MONZA - SAN GIUSEPPE -

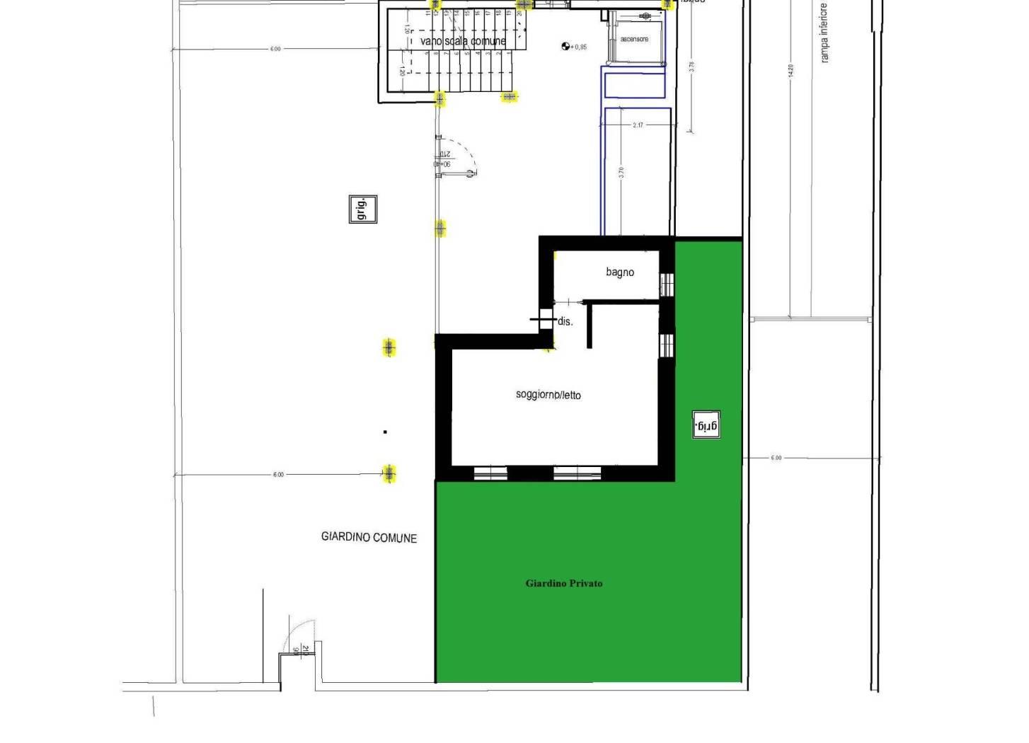
Appartamento in pronta consegna, monolocale di 45 mq con annesso giardino di mq. 75, è progettato per garantire comfort e funzionalità. Gli spazi sono luminosi e ben distribuiti, la possibilità della scelta dei pavimenti, creando un'atmosfera calda e accogliente.
Gli infissi in PVC rivestito in alluminio garantiscono isolamento e sicurezza, mentre la porta blindata e il sistema di predisposizione per l'impianto antintrusione offrono ulteriore tranquillità.
La tranquillità della zona è un valore aggiunto, con aree verdi a pochi passi e la comodità di raggiungere la stazione ferroviaria in pochi minuti. Il centro storico è a soli 750 metri, facilmente raggiungibile a piedi.
Inoltre, le fermate della nuova linea metropolitana M5 (Marsala e Centro FS) sono a breve distanza, rendendo questo appartamento ideale per chi cerca una vita dinamica e connessa.
Ogni unità immobiliare è dotata di cantina e c'è la possibilità di acquistare un box auto.
Non perdere l'occasione di vivere in un appartamento che combina modernità e comfort, con classe energetica A2 e impianto fotovoltaico per un'energia sostenibile. Contattaci per maggiori informazioni sui prezzi e le disponibilità!
Il punto-forza del gruppo Cerchiara è la meta di ogni trattativa: Clienti soddisfatti! Il voler rendere la trattativa unica e dedicata per ogni diverso cliente, fino al buon fine di ogni compravendita. Questo è ciò che i titolari in prima persona applicano e richiedono ai propri consulenti, preparandoli ad essere in grado di far fronte con competenza ad ogni aspetto e fase di ogni singola trattativa. Il presente annuncio non è da ritenersi valido ai fini contrattuali.

LEGGI TUTTO

CONDIVIDI SUI SOCIAL

DATI PRINCIPALI

Riferimento
129294
Contratto
Vendita
Tipologia
Appartamento
Superficie
53 mq
Locali
1
Camere da letto
1
Cucina
Angolo cottura
Bagni
1
Piano
Piano terra
Totale piani
4

CARATTERISTICHE

Ascensore

COSTI

Prezzo
€ 220.000,00
Spese condominiali
€ 100,00 / mese

EFFICIENZA ENERGETICA

Stato
Nuovo/In costruzione
Anno costruzione
2025
Riscaldamento
Autonomo
Climatizzazione
Si
Classe energetica
A2
IPE
10,67 kWh/m²a

A4

A3

10,67 kWh/m²a | Classe energetica A2

A2

A1

B

C

D

E

F

G

MAPPA

Monza comune della Bassa Brianza Centrale Sud

ANNUNCI SIMILI

VENDITA 20
€ 470.000
Appartamento in Vendita a Monza (Monza e Brianza)
  • Trilocale
  • 120 mq
  • 2 bagni
VENDITA 20
€ 480.000
Appartamento in Vendita a Monza (Monza e Brianza)
  • Trilocale
  • 110 mq
  • 2 bagni
VENDITA 16
€ 220.000
Appartamento in Vendita a Monza (Monza e Brianza)
  • Bilocale
  • 48 mq
  • 1 bagno
VENDITA 20
€ 460.000
Appartamento in Vendita a Monza (Monza e Brianza)
  • Quadrilocale
  • 110 mq
  • 2 bagni
VENDITA 20
€ 460.000
Appartamento in Vendita a Monza (Monza e Brianza)
  • Quadrilocale
  • 110 mq
  • 2 bagni
VENDITA 20
€ 470.000
Appartamento in Vendita a Monza (Monza e Brianza)
  • Trilocale
  • 110 mq
  • 2 bagni
VENDITA 20
€ 475.000
Appartamento in Vendita a Monza (Monza e Brianza)
  • Trilocale
  • 110 mq
  • 2 bagni