Monza – Centro Storico- Signorile appartamento di 4 Locali VENDITA

Via Italia 44 - Monza, Zona Centro Storico
€ 480.000
  • Quadrilocale
  • 119 mq
  • 2 bagni

Appartamento in Vendita a Monza

Nel cuore del prestigioso Centro Storico di Monza, all’interno della zona pedonale, proponiamo in vendita un elegante appartamento situato al primo piano alto di un palazzo signorile con servizio di portineria full time. La posizione è davvero invidiabile: tranquilla e riservata, con una tripla esposizione che garantisce luminosità e silenzio, lontano dal fronte strada.
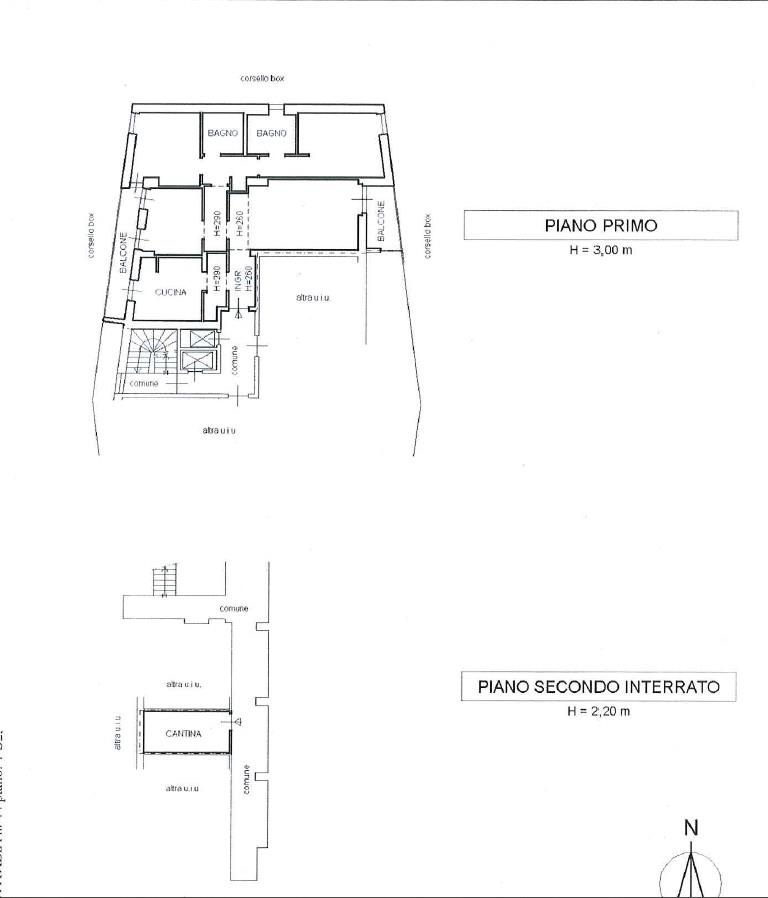
L’abitazione si distingue per la distribuzione armoniosa degli ambienti e per l’atmosfera accogliente che la contraddistingue. Il soggiorno, esposto a sud, si apre su un balcone loggiato abitabile con vista aperta; la cucina semiabitabile, moderna e funzionale, è dotata di isola centrale e di un comodo balcone di servizio. La zona notte comprende due camere da letto, uno studio perfetto anche come stanza ospiti o ambiente di lavoro, due bagni, una zona lavanderia e pratici spazi di servizio e ripostiglio.
L’appartamento si presenta in ottime condizioni generali e offre un eccellente livello di comfort grazie al riscaldamento centralizzato e all’impianto di aria condizionata. Le spese condominiali ammontano a circa 300 euro mensili, comprensive anche dei consumi di riscaldamento, un valore davvero contenuto per un contesto di questo livello. Completa la proprietà una cantina di circa 9 mq al piano interrato, ideale come deposito o locale accessorio. Il condominio è curato nei dettagli, dotato di doppio ascensore e di un ingresso elegante e ben mantenuto.
Questa soluzione rappresenta un’opportunità rara per chi desidera vivere nel cuore pulsante di Monza, circondato dalla bellezza del centro storico e da tutti i servizi, ristoranti e negozi raggiungibili comodamente a piedi. Un equilibrio perfetto tra eleganza, funzionalità e qualità della vita. Classe energetica: E . Per qualsiasi informazione o per organizzare una visita, può contattarci con serenità: siamo sempre disponibili a fornire ogni chiarimento e ad accompagnarla nella scoperta di questa splendida abitazione.
Ci trova in Via Annoni 36 a Monza, oppure può raggiungerci telefonicamente allo 039 2182147 o scriverci a info@specialhouse.it
.Sarà un piacere raccontarle di persona tutti i dettagli di questa proposta e metterci a disposizione con la professionalità che da anni contraddistingue il nostro lavoro.

LEGGI TUTTO

CONDIVIDI SUI SOCIAL

DATI PRINCIPALI

Riferimento
128128
Contratto
Vendita
Tipologia
Appartamento
Superficie
119 mq
Locali
4
Camere da letto
3
Cucina
Abitabile
Bagni
2
Piano
1 °
Totale piani
6

CARATTERISTICHE

Ascensore

COSTI

Prezzo
€ 480.000,00
Spese condominiali
€ 300,00 / mese

EFFICIENZA ENERGETICA

Stato
Ristrutturato
Anno costruzione
1969
Riscaldamento
Centralizzato
Climatizzazione
Si
Classe energetica
E
IPE
202,00 kWh/m²a

A+

A

B

C

D

202,00 kWh/m²a | Classe energetica E

E

F

G

MAPPA

Monza comune della Bassa Brianza Centrale Sud

ANNUNCI SIMILI

VENDITA 20
€ 420.000
Appartamento in Vendita a Monza, Zona Centro Storico
  • Quadrilocale
  • 140 mq
  • 1 bagno
VENDITA 20
€ 515.000
Appartamento in Vendita a Monza, Zona San Biagio
  • Più di 5 locali
  • 160 mq
  • 2 bagni