Monza - Appartamento con taverna e giardino VENDITA

Via Giulio Silva 24 - Monza, Zona San Giuseppe
€ 430.000
  • Trilocale
  • 151 mq
  • 3 bagni

Appartamento in Vendita a Monza

MONZA – Quartiere San Giuseppe - Appartamento con giardino privato taverna e Box doppio in larghezza
In zona ben servita e verde a 500 mt dalla prossima fermata MM, e a pochi minuti dall’ingresso delle tangenziali e dalle principali vie di comunicazioni e mezzi di superficie per il collegamento con Milano e la Brianza.
Per questo immobile non sono richieste provvigioni all'acquirente
Nelle immediate vicinanze supermercati, negozi di prima necessità, scuole (materna, asilo, elementari, medie) e parchi giochi per bambini.
Palazzina di sole 8 unità abitative, edificata nel 1997, contesto tranquillo e riservato. Libero settembre 2026.
Caratteristiche dell’appartamento:
Piano terra con giardino privato di 100 m² su due lati con siepe ombreggiante, e area pavimentata in gres per alloggiare tavolo sedie, lettini prendisole, tenda da sole elettrificata.
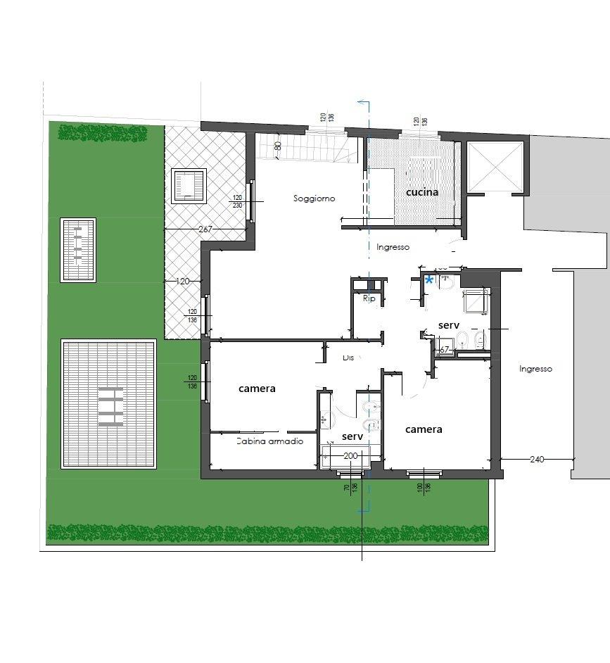
Appartamento libero su tre lati Ampio Ingresso, salotto e zona pranzo, Cucina abitabile a vista predisposta per isola centrale, Disimpegno notte, ripostiglio, Camera ragazzi ampia, bagno con doccia e nicchia per lavatrice e asciugatrice, Camera matrimoniale con ampia cabina armadio con ante scorrevoli di design in vetro satinato, bagno privato con vasca. Parquet ovunque
Scala interna lineare che collega alla taverna ambiente confortevole con lavanderia e accesso diretto al box doppio in larghezza
Inferiate antintrusione, predisposizione antifurto, aria condizionata freddo/caldo. Box doppio in larghezza. Possibilità di un secondo Box singolo

LEGGI TUTTO

CONDIVIDI SUI SOCIAL

DATI PRINCIPALI

Riferimento
127291
Contratto
Vendita
Tipologia
Appartamento
Superficie
151 mq
Locali
3
Camere da letto
2
Cucina
Abitabile
Bagni
3
Piano
Piano terra
Totale piani
2
Box/Posto auto
Doppio

CARATTERISTICHE

Ascensore

COSTI

Prezzo
€ 430.000,00
Spese condominiali
€ 200,00 / mese

EFFICIENZA ENERGETICA

Stato
Ristrutturato
Anno costruzione
1997
Riscaldamento
Autonomo
Climatizzazione
Si
Classe energetica
F
IPE
376,94 kWh/m²a

A+

A

B

C

D

E

376,94 kWh/m²a | Classe energetica F

F

G

MAPPA

Monza comune della Bassa Brianza Centrale Sud

ANNUNCI SIMILI

VENDITA 16
€ 265.000
Appartamento in Vendita a Monza, Zona San Giuseppe
  • Quadrilocale
  • 200 mq
  • 2 bagni
VENDITA 20
€ 337.000
Appartamento in Vendita a Monza, Zona San Giuseppe
  • Trilocale
  • 90 mq
  • 2 bagni
VENDITA 20
€ 398.000
Appartamento in Vendita a Monza, Zona Triante
  • Quadrilocale
  • 135 mq
  • 2 bagni
VENDITA 20
€ 365.000
Appartamento in Vendita a Monza, Zona Triante
  • Quadrilocale
  • 122 mq
  • 2 bagni