Monza, ampio 2 locali in zona centrale VENDITA

Via San Gottardo 66 - Monza, Zona San Biagio
€ 235.000
  • Bilocale
  • 76 mq
  • 1 bagno

Appartamento in Vendita a Monza

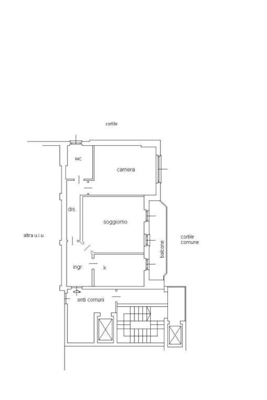
In elegante palazzina con servizio di portineria, proponiamo in vendita un ampio e luminoso bilocale situato al quinto piano, con possibilità di trasformazione in trilocale.
L'appartamento si distingue per la luminosità ed è composto da ingresso, cucina abitabile, ampio soggiorno, ampia camera matrimoniale, bagno, disimpegno e balcone. Completa la soluzione la cantina al piano interrato. Gli infissi in legno con doppi vetri garantiscono un ottimo isolamento termico e acustico. È presente aria condizionata, mentre il riscaldamento è centralizzato con termo valvole, per una gestione efficiente dei consumi.
La posizione è strategica: l’immobile si trova in zona centrale di Monza, con tutti i principali servizi a pochi passi, il centro pedonale raggiungibile in soli 5 minuti a piedi, la stazione è raggiungibile a piedi in circa 7 minuti.

METROSPAZIO è una azienda in forte crescita, è nata da oltre 20 anni per iniziativa di un gruppo di imprenditori che hanno avuto l'intuito di misurarsi con un nuovo concetto dell' abitare. Grazie al suo team di professionisti qualificati ed esperti, METROSPAZIO risponde alle specifiche esigenze del cliente nelle diverse fasi del processo di compravendita. I servizi offerti da METROSPAZIO comprendono sia l'intermediazione immobiliare che i servizi collegati ad essa, in piu' offre una consulenza progettuale per studiare nuove soluzioni abitative e di arredamento. I clienti che si affidano a METROSPAZIO per la vendita del proprio immobile potranno contare sulla promozione della proprietà tramite inserimento nei vari siti internet specializzati, uscite pubblicitarie sulle più prestigiose pubblicazioni locali e azioni di comunicazione varie. " Le informazioni del presente annuncio pubblicitario non costituiscono elemento contrattuale.

LEGGI TUTTO

CONDIVIDI SUI SOCIAL

DATI PRINCIPALI

Riferimento
126498
Contratto
Vendita
Tipologia
Appartamento
Superficie
76 mq
Locali
2
Camere da letto
1
Cucina
Abitabile
Bagni
1
Piano
5 °
Totale piani
9

CARATTERISTICHE

Ascensore

COSTI

Prezzo
€ 235.000,00
Spese condominiali
€ 150,00 / mese

EFFICIENZA ENERGETICA

Stato
Ristrutturato
Anno costruzione
1960
Riscaldamento
Centralizzato
Climatizzazione
Si
Classe energetica
D
IPE
167,02 kWh/m²a

A+

A

B

C

167,02 kWh/m²a | Classe energetica D

D

E

F

G

MAPPA

Monza comune della Bassa Brianza Centrale Sud

ANNUNCI SIMILI

VENDITA 20
€ 560.000
Appartamento in Vendita a Monza, Zona San Biagio
  • Più di 5 locali
  • 198 mq
  • 3 bagni
VENDITA 12
€ 180.000
Appartamento in Vendita a Monza, Zona San Biagio
  • Trilocale
  • 78 mq
  • 1 bagno
VENDITA 10
€ 295.000
Appartamento in Vendita a Monza, Zona San Biagio
  • Trilocale
  • 120 mq
  • 2 bagni
VENDITA 20
€ 515.000
Appartamento in Vendita a Monza, Zona San Biagio
  • Più di 5 locali
  • 160 mq
  • 2 bagni