MONZA - AMATI: ottimo ed ampio trilocale di 128 mq VENDITA

Via Carlo Collodi 8 - Monza (Monza e Brianza)
€ 225.000
  • Trilocale
  • 128 mq
  • 2 bagni

Appartamento in Vendita a Monza

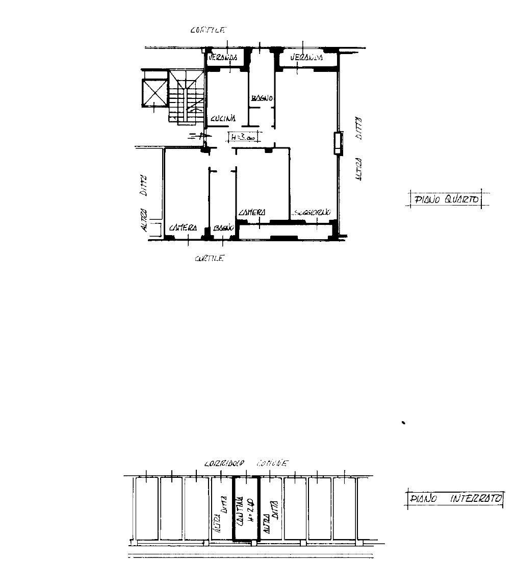
MONZA - AMATI: in contesto residenziale del 1974, ROYAL IMMOBILI & INVESTIMENTI propone in vendita un ampio trilocale di 128 mq.
La soluzione proposta si trova al quarto piano di uno stabile dotato di ascensore, con facciata rifatta nel 2010.
La zona giorno si compone di ingresso, cucina abitabile con veranda, bagno finestrato, salone DOPPIO con balcone e veranda (eventualmente ricavabile una terza camera). La zona notte è composta da disimpegno con due camere da letto matrimoniali e secondo servizio finestrato.
Internamente si tratta di un immobile allo stato originale ma ben tenuto, abitabile con impianto elettrico a norma e certificato ma con alcuni interventi da fare.
L'immobile presenta una doppia esposizione (EST - OVEST) e riscaldamento centralizzato con valvole con caldaia rifatta nel 2015.
Completa la proprietà una cantina di pertinenza ed un box singolo all'interno dello stesso stabile (con cler elettrica) compreso nel prezzo di vendita.
Inserito in una posizione comoda per i principali servizi, rappresenta una soluzione ideale per coloro che cercano una comoda metratura, un'ottima luminosità ed un margine ampio di personalizzazione.
LIBERO SUBITO.

LEGGI TUTTO

CONDIVIDI SUI SOCIAL

DATI PRINCIPALI

Riferimento
133521
Contratto
Vendita
Tipologia
Appartamento
Superficie
128 mq
Locali
3
Camere da letto
2
Cucina
Abitabile
Bagni
2
Piano
4 °
Totale piani
7
Box/Posto auto
Singolo

CARATTERISTICHE

Ascensore

COSTI

Prezzo
€ 225.000,00
Spese condominiali
€ 335,00 / mese

EFFICIENZA ENERGETICA

Stato
Ristrutturato
Anno costruzione
1974
Riscaldamento
Centralizzato
Classe energetica
G
IPE
180,18 kWh/m²a

A+

A

B

C

D

E

F

180,18 kWh/m²a | Classe energetica G

G

MAPPA

Monza comune della Bassa Brianza Centrale Sud

ANNUNCI SIMILI

VENDITA 20
€ 260.000
Appartamento in Vendita a Monza (Monza e Brianza)
  • Trilocale
  • 111 mq
  • 1 bagno
VENDITA 20
€ 259.000
Appartamento in Vendita a Monza (Monza e Brianza)
  • Trilocale
  • 83 mq
  • 3 bagni