LUMINOSO TRILOCALE AL PRIMO PIANO CON TERRAZZO VENDITA

Via Pusiano, 18 - Seregno (Monza e Brianza)
€ 260.000
  • Trilocale
  • 91 mq
  • 2 bagni

Appartamento in Vendita a Seregno

Seregno, nella tranquilla e residenziale via Pusiano, traversa della più conosciuta via Montello, in una posizione invidiabile per la comodità d’accesso a servizi come Esselunga, SS36, che consente di arrivare con comodità sia a Milano che al lago di Como e al contempo a soli 10 minuti a piedi dal centro storico della città e tutti i suoi servizi.
Proponiamo in vendita DUPLEX ARREDATO CON AMPIO TERRAZZO, BOX E CANTINA.

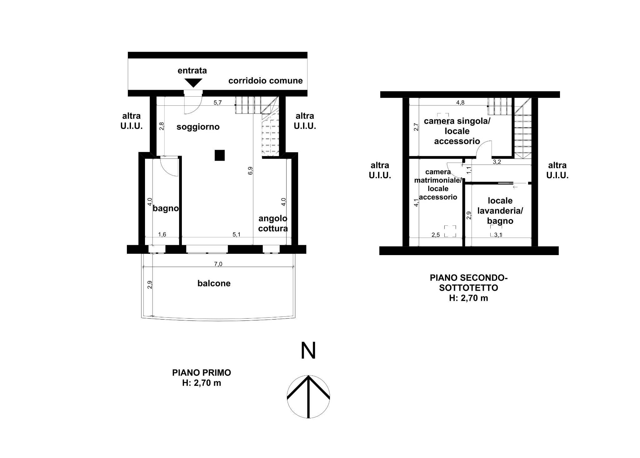
L’appartamento, distribuito su due livelli e collocato al primo piano di una raffinata palazzina del 2010 caratterizzata da facciata mattoni a vista e servita da piu’ ingressi tutti con ascensori, è così strutturato:
Varcata la soglia d’ingresso ci accoglie la luminosa zona living, contenente il soggiorno e la sala da pranzo, con cucina a vista, oltre ad un ampio bagno finestrato.
Da questo piano possiamo accedere alla chicca della casa, ovvero un terrazzo di circa 30 mq, che permette di poter sfruttare l’ambiente esterno nelle maniere più svariate anche grazie all’esposizione Sud pieno che permette di avere luce e calore tutto l’arco della giornata.

Al piano superiore, agibile ma non abitabile, troviamo sia un ampio bagno, dotato di doccia e vasca, che due camere da letto.

Alcuni particolari in più sulla soluzione:

- Porta blindata e impianto videocitofono
- A/C inverter con split nella zona giorno e nelle camere da letto
- Infissi in legno doppio vetro, taglio termico e insonorizzanti
- Soffitti travi a vista in legno lamellare sbiancato
- Riscaldamento AUTONOMO con impianto a pavimento

Completano l’offerta una cantina e un comodo box, compresi nel prezzo

Questa soluzione si mostra perfetta per chi vuole tranquillità negli spostamenti e sfruttare i servizi offerti dal centro città rimanendo comunque in un contesto riservato e signorile, per gli amanti delle mangiate estive all’aperto in compagnia grazie all’ampio terrazzo e per le persone che cercano soluzioni con le metrature di una volta ma in contesti recenti.

NON ESITATE A CONTATTARCI! LE NOSTRE SOLUZIONI SONO TUTTE IN ESCLUSIVA! QUALORA SIATE IMPEGNATI, ECCO IL NOSTRO RECAPITO WHATSAPP: 351-9640610
L'INTERO BOOK FOTOGRAFICO LO TROVATE SUL NOSTRO SITO: www.immobilhub.com

Si precisa che le informazioni inserite all’interno del presente annuncio hanno carattere descrittivo generico e sono limitate dalle opzioni presenti sul portale di riferimento. Esse non costituiscono per tanto un vincolo sotto il profilo contrattuale.

LEGGI TUTTO

CONDIVIDI SUI SOCIAL

DATI PRINCIPALI

Riferimento
128440
Contratto
Vendita
Tipologia
Appartamento
Superficie
91 mq
Locali
3
Camere da letto
2
Cucina
A vista
Bagni
2
Piano
1 °
Totale piani
2
Box/Posto auto
Singolo

CARATTERISTICHE

Ascensore

COSTI

Prezzo
€ 260.000,00
Spese condominiali
€ 70,00 / mese

EFFICIENZA ENERGETICA

Stato
Abitabile
Anno costruzione
2010
Riscaldamento
Autonomo
Climatizzazione
Si
Classe energetica
C
IPE
120,95 kWh/m²a

A+

A

B

120,95 kWh/m²a | Classe energetica C

C

D

E

F

G

MAPPA

Seregno comune della Bassa Brianza Centrale Sud

ANNUNCI SIMILI

VENDITA 20
€ 278.000
Appartamento in Vendita a Seregno (Monza e Brianza)
  • Trilocale
  • 103 mq
  • 2 bagni
VENDITA 20
€ 220.000
Appartamento in Vendita a Seregno (Monza e Brianza)
  • Trilocale
  • 84 mq
  • 1 bagno
VENDITA 20
€ 390.000
Appartamento in Vendita a Seregno (Monza e Brianza)
  • Trilocale
  • 130 mq
  • 2 bagni
VENDITA 20
€ 259.000
Appartamento in Vendita a Seregno (Monza e Brianza)
  • Quadrilocale
  • 142 mq
  • 2 bagni