ELEGANTE RESIDENZA AI CONFINI DEL PARCO DI MONZA VENDITA

Via Francesco Baracca 22 - Monza (Monza e Brianza)
€ 978.000
  • Quadrilocale
  • 209 mq
  • 2 bagni

Appartamento in Vendita a Monza

In una delle aree più esclusive e suggestive di Monza, a diretto contatto con il Parco e a breve distanza dal centro storico, proponiamo questa residenza di assoluto pregio, realizzata a fine 2023 e oggi pari al nuovo.
Un contesto riservato e raffinato, all’interno di una palazzina di alto standing composta da sole 9 unità abitative, pensata per garantire privacy e qualità abitativa superiore.

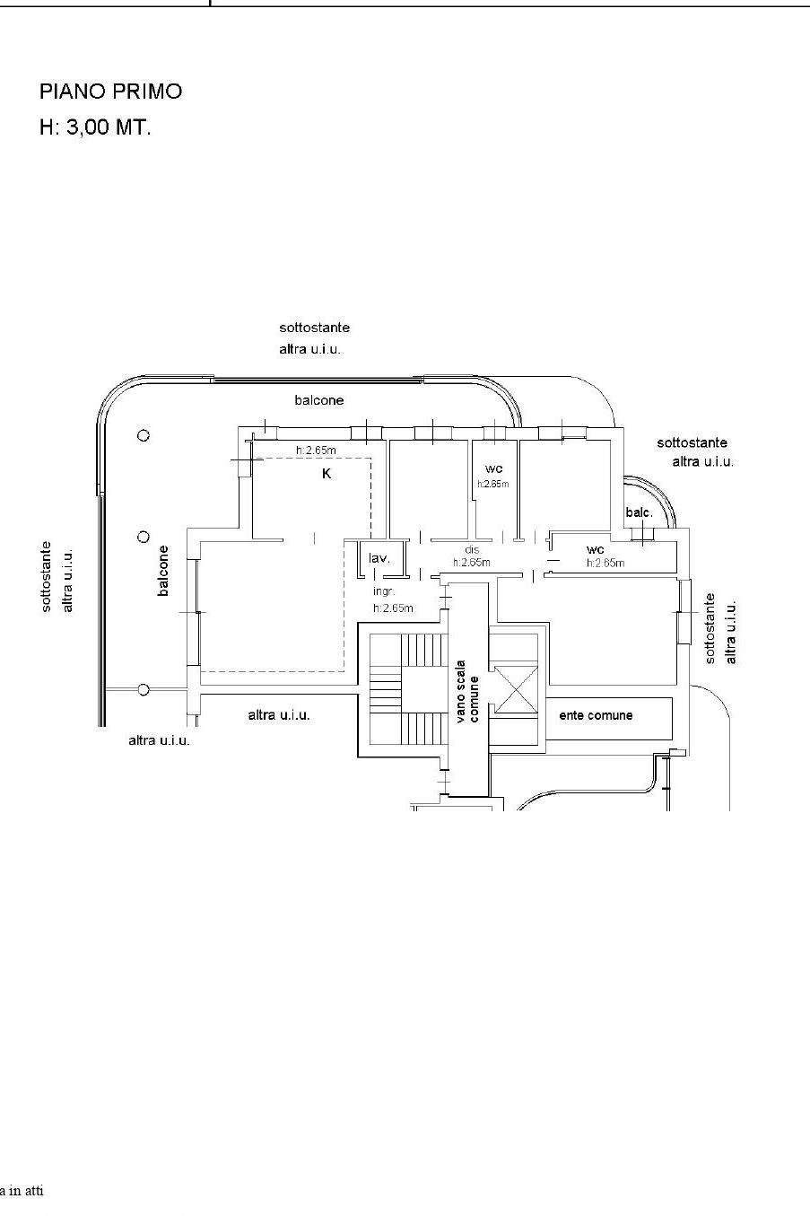
L’appartamento, quadrilocale, posto al primo piano di tre, si sviluppa su 155 mq di spazi interni caratterizzati da ambienti ampi, ben proporzionati e con altezze generose, capaci di offrire luminosità, comfort e una piacevole sensazione di respiro.

La zona giorno è composta da un grande salone di rappresentanza, luminoso e accogliente, affiancato da una cucina abitabile separata, collegata tramite una meravigliosa porta a vetro che consente di mantenere continuità visiva ed eleganza, garantendo al contempo funzionalità e riservatezza.
Gli ambienti della zona giorno dialogano in modo armonioso con un magnifico terrazzo loggiato di 80 mq, autentico elemento distintivo della proprietà, perfettamente integrato e progettato per essere vissuto in ogni stagione.

La zona notte, razionalmente disimpegnata, ospita invece tre camere da letto di generose dimensioni, di cui una padronale, servite da due bagni finestrati finemente rifiniti.

La qualità costruttiva e impiantistica raggiunge standard di eccellenza:

Classe energetica A3

Serramenti con triplo vetro, alluminio esterno e legno interno

Riscaldamento e raffrescamento a pavimento con gestione autonoma della temperatura in ogni ambiente

VMC per ricambio continuo e deumidificazione dell’aria

Sistema domotico integrabile di ultima generazione

Impianto antifurto e videosorveglianza con controllo da remoto

Completano la proprietà un box doppio di 38 mq e una cantina, con possibilità di acquistare un secondo ampio box di 21 entrambi con predisposizione ricarica auto elettrica.

È inoltre possibile l’acquisto completamente arredato, come da fotografie, con arredi su misura di altissimo livello, studiati nel minimo dettaglio e perfettamente coerenti con il carattere elegante e contemporaneo dell’abitazione.

Le dotazioni descritte rappresentano solo una parte delle caratteristiche che rendono questa proprietà una residenza esclusiva, dedicata a chi ricerca eccellenza, riservatezza e una posizione senza eguali.
Un immobile che va vissuto per essere compreso fino in fondo.

LEGGI TUTTO

CONDIVIDI SUI SOCIAL

DATI PRINCIPALI

Riferimento
127023
Contratto
Vendita
Tipologia
Appartamento
Superficie
209 mq
Locali
4
Camere da letto
3
Cucina
Abitabile
Bagni
2
Piano
1 °
Totale piani
2
Box/Posto auto
Doppio

CARATTERISTICHE

Ascensore

COSTI

Prezzo
€ 978.000,00

EFFICIENZA ENERGETICA

Stato
Ristrutturato
Anno costruzione
2023
Riscaldamento
Centralizzato
Climatizzazione
Si
Classe energetica
A3
IPE
53,50 kWh/m²a

A4

53,50 kWh/m²a | Classe energetica A3

A3

A2

A1

B

C

D

E

F

G

MAPPA

Monza comune della Bassa Brianza Centrale Sud

ANNUNCI SIMILI

VENDITA 20
€ 290.000
Appartamento in Vendita a Monza (Monza e Brianza)
  • Quadrilocale
  • 105 mq
  • 1 bagno
VENDITA 20
€ 360.000
Appartamento in Vendita a Monza (Monza e Brianza)
  • Quadrilocale
  • 127 mq
  • 1 bagno
VENDITA 20
€ 880.000
Appartamento in Vendita a Monza (Monza e Brianza)
  • Più di 5 locali
  • 176 mq
  • 3 bagni