Duplex con terrazzo di nuova costruzione VENDITA

Via 24 Maggio - Lentate sul Seveso (Monza e Brianza)
€ 295.000
  • Quadrilocale
  • 120 mq
  • 2 bagni

Appartamento in Vendita a Lentate sul Seveso

In zona verde e residenziale, poco distante dalla stazione di Lentet-Camnago e sul confine con Meda, proponiamo all'interno di una palazzina di sole 12 unità di nuova costruzione in classe energetica A4, splendido duplex posto al secondo piano.
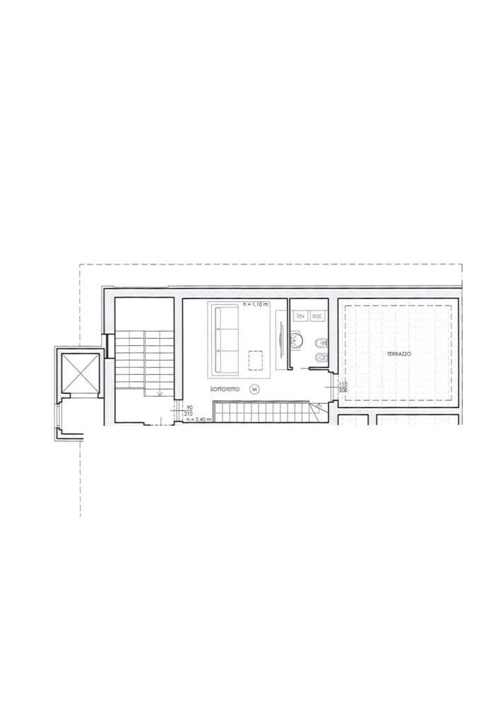
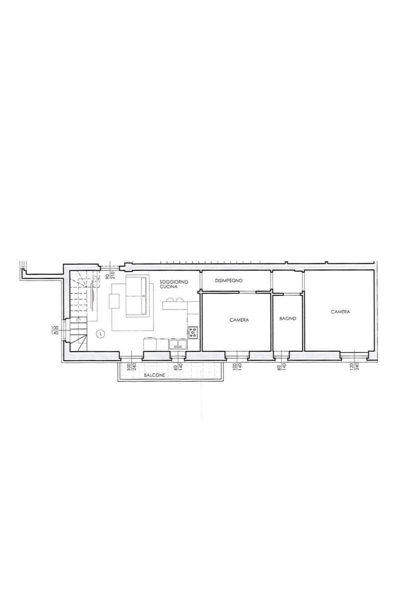
L'immobile è raggiungibile tramite ascensore e al suo interno troviamo una luminosa zona giorno servita da balcone, due camere da letto ed un bagno al piano. Una comoda scala interna conduce al piano superiore mansardato con travi in legno a vista dove troviamo un ambiente spazioso e accessoriato di riservato terrazzo dove è possibile creare o la terza camera da letto o un funzionale locale hobby/salottino ed un bagno-lavanderia.
L'immobile vanta una vista panoramica sul territorio circostante.
La costruzione è realizzata con materiali di alta qualità e secondo tutti i criteri di risparmio energetico, prevede riscaldamento a pavimento con caldaia centralizzata a pompa di calore alimentata da pannelli fotovoltaici per garantire comfort abitativo ed efficienza energetica.
Predisposizione impianto di antifurto e aria condizionata.
Possibilità di personalizzare gli interni.
Box doppio € 30.000,00
Box singolo € 15.000,00
Posto auto € 5.000,00
Cantine € 3.000,00
Consegna prevista maggio 2026

LEGGI TUTTO

CONDIVIDI SUI SOCIAL

DATI PRINCIPALI

Riferimento
132518
Contratto
Vendita
Tipologia
Appartamento
Superficie
120 mq
Locali
4
Camere da letto
3
Cucina
A vista
Bagni
2
Piano
2 °
Totale piani
2

CARATTERISTICHE

Ascensore

COSTI

Prezzo
€ 295.000,00

EFFICIENZA ENERGETICA

Stato
Nuovo/In costruzione
Anno costruzione
2026
Riscaldamento
Centralizzato
Climatizzazione
Predisposizione
Classe energetica
A4
IPE
351,00 kWh/m²a
351,00 kWh/m²a | Classe energetica A4

A4

A3

A2

A1

B

C

D

E

F

G

MAPPA

Lentate sul Seveso comune della Bassa Brianza Occidentale

ANNUNCI SIMILI

VENDITA 20
€ 185.000
Appartamento in Vendita a Lentate sul Seveso (Monza e Brianza)
  • Quadrilocale
  • 110 mq
  • 2 bagni
VENDITA 20
€ 279.000
Appartamento in Vendita a Lentate sul Seveso (Monza e Brianza)
  • Quadrilocale
  • 146 mq
  • 2 bagni
VENDITA 20
€ 139.000
Appartamento in Vendita a Lentate sul Seveso (Monza e Brianza)
  • Quadrilocale
  • 113 mq
  • 1 bagno