€ 89.000
  • Bilocale
  • 95 mq
  • 1 bagno

Appartamento in Vendita a Arcore

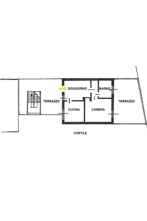
ARCORE/CENTRO: BILOCALE (di circa 95 mq) composto da ingresso living sul soggiorno (con antistante terrazzo coperto di ca 30 mq), cucina abitabile, disimpegno, bagno, camera matrimoniale con terrazzo di ca 30 mq. La soluzione è da ristrutturare.
LA ZONA: La palazzina è ubicata in una delle vie centrali del paese, con agevole accesso ad ogni servizio ed infrastruttura pubblici. Poco distante: supermercati, alimentari, panifici e negozi di vicinato, comodi per la spesa e le esigenze quotidiane; nelle vicinanze farmacie, strutture sanitarie ed un poliambulatorio; scuole, asili e servizi educativi sono facilmente raggiungibili nel raggio breve. Trasporti e collegamenti: la location è vicina alla stazione ferroviaria di Arcore, che offre collegamenti ferroviari regolari verso Milano, Monza e altre destinazioni — un grande vantaggio per pendolari o chi si sposta frequentemente. Sono presenti anche fermate di autobus e trasporti pubblici urbani/extraurbani.
In sintesi, la proposta rappresenta una scelta eccellente per chi cerca casa in un contesto residenziale ben servito, con buoni collegamenti di trasporto, numerosi servizi nelle vicinanze, e una qualità di vita che unisce comodità urbana e tranquillità di paese. Ottima soluzione per investimento per la rivendita o la messa a reddito.

LEGGI TUTTO

CONDIVIDI SUI SOCIAL

DATI PRINCIPALI

Riferimento
132441
Contratto
Vendita
Tipologia
Appartamento
Superficie
95 mq
Locali
2
Camere da letto
1
Cucina
Abitabile
Bagni
1
Piano
1 °
Totale piani
2

CARATTERISTICHE

Ascensore

COSTI

Prezzo
€ 89.000,00

EFFICIENZA ENERGETICA

Stato
Da ristrutturare
Anno costruzione
1940
Riscaldamento
Autonomo
Classe energetica
F
IPE
280,59 kWh/m²a

A+

A

B

C

D

E

280,59 kWh/m²a | Classe energetica F

F

G

MAPPA

Arcore comune della Bassa Brianza Orientale o Vimercatese

ANNUNCI SIMILI

VENDITA 20
€ 145.000
Appartamento in Vendita a Arcore (Monza e Brianza)
  • Trilocale
  • 125 mq
  • 1 bagno