COLOGNO M.SE - TRE LOCALI con GIARDINO - CANTINA - BOX VENDITA

Via Jacopo Tintoretto - Cologno Monzese (Milano)
€ 245.000
  • Trilocale
  • 88 mq
  • 1 bagno

Appartamento in Vendita a Cologno Monzese

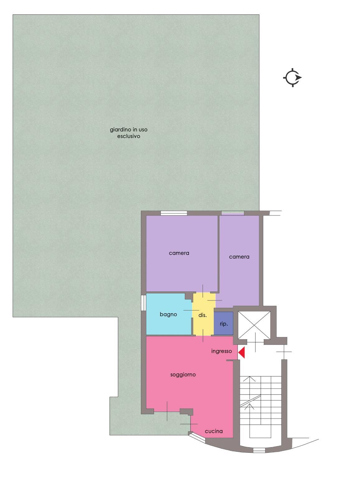
Rif. 2991DZ - IN UN TRANQUILLO E CURATO CONTESTO DI PALAZZINE RESIDENZIALI, accogliente APPARTAMENTO di TRE LOCALI, posto al piano Rialzato, ideale per chi desidera vivere in un ambiente confortevole con il valore aggiunto di uno SPAZIO ESTERNO PRIVATO costituito da AMPIO GIARDINO di mq. 180. L’ingresso si apre su un luminoso soggiorno con cucina a vista, un ambiente pensato per la quotidianità e la convivialità, dal quale si accede direttamente al giardino, ad uso esclusivo, di circa 180 mq, in parte “a verde” e in parte pavimentato e con portico, perfetto per rilassarsi all’aria aperta, organizzare momenti in compagnia o semplicemente godere della tranquillità di casa propria; la “zona notte”, ben separata, ospita due camere da letto, un bagno e un comodo ripostiglio, offrendo spazi ben distribuiti e funzionali. L’abitazione, di 67 mq interni, è arricchita da finiture curate come piastrelle di gres nella zona cottura, di ceramica nel bagno ed il parquet essenza rovere nel soggiorno, nel disimpegno della “zona notte” e nelle camere. Gli infissi esterni sono realizzati con struttura in PVC, con doppi vetri, e tapparelle in p.v.c., con movimentazione elettrica, esternamente vi sono le inferiate “di sicurezza”; le porte interne nuove e la porta d’ingresso blindata garantiscono comfort e sicurezza. Il riscaldamento è di tipo termoautonomo, dotato di caldaia a condensazione e radiatori in ghisa; il videocitofono completa le dotazioni dell’immobile. A rendere la soluzione ancora più completa vi sono una Cantina al piano interrato di pertinenza e un Box singolo, ottima e indispensabile comodità nella vita quotidiana ad euro 20.000 . Il box ha la predisposizione per la wallbox per la ricarica elettrica dell’auto. La zona di Via Tintoretto a Cologno Monzese, caratterizzata da un ambiente tranquillo ma ben collegato ai principali servizi della città metropolitana, è situata nell’hinterland nord-est di Milano. E’ un’area prevalentemente residenziale con anche ampi spazi “a verde” ed “agricoli” OTTIMAMENTE SERVITA data l’adiacenza alla Stazione Metropolitana "Cologno Nord" e immediate fermate di Autobus per un veloce collegamento con Milano e le principali città limitrofe; inoltre siamo nelle immediate vicinanze agli ingressi della tangenziale Est e la Tangenziale Nord e prossimo agli ingressi autostradali MI-VE e MI-TO. permettendo spostamenti rapidi verso Milano, Monza, la Brianza e le principali vie di comunicazione dell’area lombarda. Posizione ottimamente servita da strutture scolastiche di vario ordine e grado oltre che di Asilo Nido; Parco giochi, Centro Sportivo, Chiesa ed Oratorio nelle vicinanze, rendendo la zona ben dotata di servizi di quartiere come supermercati, bar, scuole e servizi locali, che rendono la vita quotidiana comoda a piedi o in pochi minuti di auto. In breve, Via Tintoretto rappresenta una posizione residenziale equilibrata, ideale per chi cerca la tranquillità di una periferia servita ma desidera rimanere ben connesso con Milano e l’intera area metropolitana tramite strade principali e mezzi pubblici efficienti

LEGGI TUTTO

CONDIVIDI SUI SOCIAL

DATI PRINCIPALI

Riferimento
130881
Contratto
Vendita
Tipologia
Appartamento
Superficie
88 mq
Locali
3
Camere da letto
2
Cucina
Angolo cottura
Bagni
1
Piano
Piano rialzato
Totale piani
2
Box/Posto auto
Singolo

CARATTERISTICHE

Ascensore

COSTI

Prezzo
€ 245.000,00
Spese condominiali
€ 133,00 / mese

EFFICIENZA ENERGETICA

Stato
Abitabile
Anno costruzione
1989
Riscaldamento
Autonomo
Classe energetica
G
IPE
372,26 kWh/m²a

A+

A

B

C

D

E

F

372,26 kWh/m²a | Classe energetica G

G

MAPPA

Cologno Monzese comune della Brianza Milanese

ANNUNCI SIMILI

VENDITA 20
€ 250.000
Appartamento in Vendita a Cologno Monzese (Milano)
  • Quadrilocale
  • 120 mq
  • 2 bagni
VENDITA 20
€ 250.000
Appartamento in Vendita a Cologno Monzese (Milano)
  • Trilocale
  • 119 mq
  • 2 bagni
VENDITA 20
€ 250.000
Appartamento in Vendita a Cologno Monzese (Milano)
  • Quadrilocale
  • 120 mq
  • 2 bagni