CASA INDIPENDENTE SU DUE LIVELLI + AUTORIMESSA DOPPIA VENDITA

Via Risorgimento - Trezzo sull'Adda (Milano)
€ 235.000
  • Trilocale
  • 150 mq
  • 2 bagni

Appartamento in Vendita a Trezzo sull'Adda

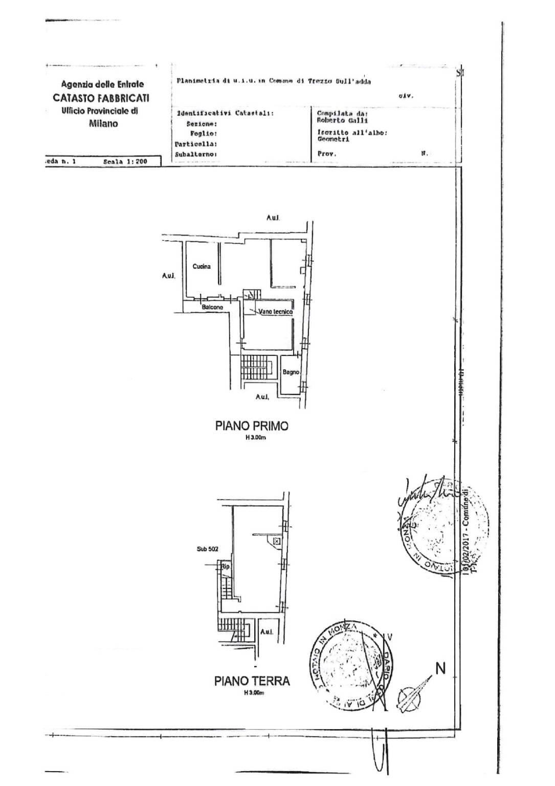
In piccolo contesto residenziale in centro storico: proponiamo casa Indipendente su due livelli con autorimessa doppia.

Ingresso al piano terra con ampia zona open space con vano lavanderia e bagno di servizio.

Scala di accesso al piano primo con soggiorno, cucina abitabile entrambi gli ambienti con affaccio su balcone, camera matrimoniale, bagno e cameretta.

Vista panoramica su storico Castello di Trezzo risalente al 1300.

Box doppio in larghezza di 30 mq.

L' immobile è stato completamente ristrutturato tra il 2017 e 2018.

Riscaldamento autonomo con stufa a pellet e termosifoni in ghisa + camino.

Infissi doppio vetro e PVF effetto legno e zanzariere.

Impianto domotica.

Arredi non inclusi

Poche spese condominiali

PER INFORMAZIONI E VISIONE CONTATTATECI AL NUMERO DIRETTO 02/38236174 - 339/2955559
EMAIL: immobil.go@gmail.com
PER VALUTARE LE NOSTRE OFFERTE CONSULTATE IL SITO INTERNET : www.immobilgo.net
SU APPUNTAMENTO INDIRIZZO : Via Marconi, 1 Trezzo Sull' Adda.

LEGGI TUTTO

CONDIVIDI SUI SOCIAL

DATI PRINCIPALI

Riferimento
131094
Contratto
Vendita
Tipologia
Appartamento
Superficie
150 mq
Locali
3
Camere da letto
2
Cucina
Abitabile
Bagni
2
Piano
Piano terra
Totale piani
2
Box/Posto auto
Doppio

CARATTERISTICHE

Ascensore

COSTI

Prezzo
€ 235.000,00
Spese condominiali
€ 80,00 / mese

EFFICIENZA ENERGETICA

Stato
Ristrutturato
Anno costruzione
2017
Riscaldamento
Autonomo
Classe energetica
F
IPE
351,00 kWh/m²a

A+

A

B

C

D

E

351,00 kWh/m²a | Classe energetica F

F

G

MAPPA

Trezzo sull'Adda comune del Territorio Trezzese

ANNUNCI SIMILI