€ 169.000
  • Bilocale
  • 83 mq
  • 2 bagni

Appartamento in Vendita a Lissone

STAI CERCANDO UNA SOLUZIONE LIBERA SUBITO? ABBIAMO LA SOLUZIONE PER TE!

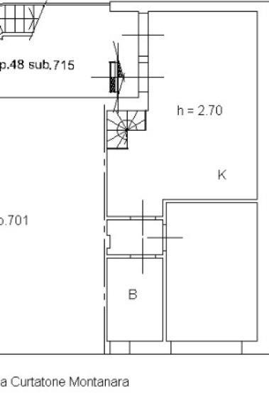
Lissone: 2 locali, zona stazione, a 800 m dal centro di Lissone, comodo con tutti i servizi di prima necessità (scuole, supermercati, farmacie ecc ecc...), a 450 m dalla stazione Lissone-Muggiò, in mini palazzina del 2007, proponiamo al piano terra 2 locali così composto: ingresso su zona giorno con angolo cottura, accesso alla prima ampia camera matrimoniale e primo bagno finestrato con vasca, scendendo la scala, accediamo alla spaziosa taverna con secondo bagno finestrato con doccia e ripostiglio
con locale caldaia. Unico nel suo genere.

LIBERO SUBITO! RIF.374

Contattaci per maggiori informazioni o per prenotare una visita.

PER NON PERDERE NESSUNA NOSTRA NOVITà SEGUICI SU: YOUTUBE, FB, IG E TIK TOK!!!

Se devi vendere casa contattaci per una valutazione gratuita, potrai conoscere il nostro metodo, che ti permetterà di vendere casa in 90 giorni al prezzo più alto realizzabile oggi.
Nonostante la nostra attenzione, il presente annuncio è puramente indicativo, le caratteristiche e informazioni descritte non sono parte contrattuale.

AG Leader Immobiliare
Agenzia Immobiliare a Lissone

LEGGI TUTTO

CONDIVIDI SUI SOCIAL

DATI PRINCIPALI

Riferimento
129899
Contratto
Vendita
Tipologia
Appartamento
Superficie
83 mq
Locali
2
Camere da letto
1
Cucina
A vista
Bagni
2
Piano
Piano terra
Totale piani
2

CARATTERISTICHE

Ascensore

COSTI

Prezzo
€ 169.000,00
Spese condominiali
€ 70,00 / mese

EFFICIENZA ENERGETICA

Stato
Abitabile
Anno costruzione
2007
Riscaldamento
Autonomo
Climatizzazione
Si
Classe energetica
D
IPE
114,92 kWh/m²a

A+

A

B

C

114,92 kWh/m²a | Classe energetica D

D

E

F

G

MAPPA

Lissone comune della Bassa Brianza Centrale Sud

ANNUNCI SIMILI

VENDITA 20
€ 299.000
Appartamento in Vendita a Lissone (Monza e Brianza)
  • Quadrilocale
  • 121 mq
  • 2 bagni
VENDITA 11
€ 118.000
Appartamento in Vendita a Lissone (Monza e Brianza)
  • Bilocale
  • 61 mq
  • 1 bagno
VENDITA 20
€ 260.000
Appartamento in Vendita a Lissone (Monza e Brianza)
  • Bilocale
  • 84 mq
  • 1 bagno
VENDITA 20
€ 200.000
Appartamento in Vendita a Lissone (Monza e Brianza)
  • Bilocale
  • 66 mq
  • 1 bagno
VENDITA 20
€ 340.000
Appartamento in Vendita a Lissone (Monza e Brianza)
  • Trilocale
  • 106 mq
  • 2 bagni