Bilocale primo piano con ingresso indipendente VENDITA

Via Tenaglie - Ornago (Monza e Brianza)
€ 152.000
  • Bilocale
  • 64 mq
  • 1 bagno

Appartamento in Vendita a Ornago

PROSSIMA REALIZZAZIONE
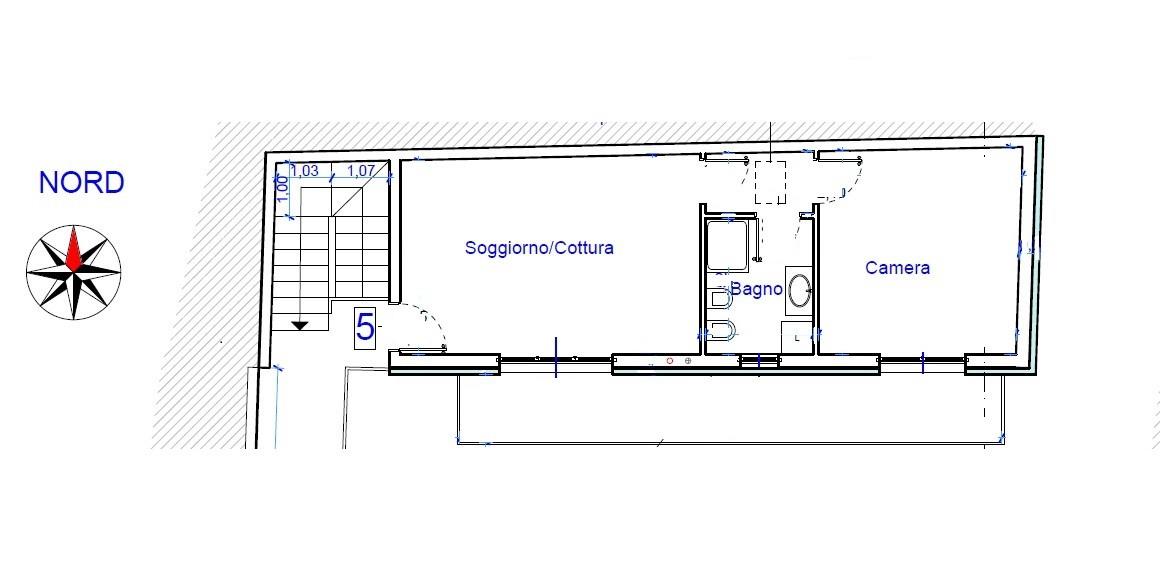
In piccola palazzina di nuova costruzione, nel centro del paese, bilocale indipendente di 58 mq con ingresso indipendente:
Posto al primo piano, come unico appartamento al piano, libero sui 4 lati, soggiorno con cucina a vista di circa, dal quale si può accedere tramite una portafinestra doppia alla balconata di 12.5 mq che percorre tutta la lunghezza dell’appartamento, dal disimpegno si ha accesso al bagno ed alla camera matrimoniale.
Possibilità di scelta del soffitto in travi a vista (h. max 3.45 h min. 2.70) oppure ribassamento in tutto l’appartamento a h. 2.70.
L’appartamento, con fronte espositivo SUD, è predisposto per allarme ed aria condizionata, infissi in PVC triplo vetro con tapparelle di sicurezza in alluminio coibentato motorizzate, riscaldamento a pavimento con pompa di calore alimentata da pannelli fotovoltaici, videocitofono;
Possibilità di scelta delle finiture di pavimenti e porte e personalizzazione della divisione interna.

Possibilità di comodo posto auto ad € 7.000.
FISSA IL TUO APPUNTAMENTO IN AGENZIA PER VISIONARE LE PLANIMETRIE, I RENDER ED IL CAPITOLATO DELLE OPERE!!

LEGGI TUTTO

CONDIVIDI SUI SOCIAL

DATI PRINCIPALI

Riferimento
130782
Contratto
Vendita
Tipologia
Appartamento
Superficie
64 mq
Locali
2
Camere da letto
1
Cucina
Angolo cottura
Bagni
1
Piano
1 °
Totale piani
1
Box/Posto auto
Singolo

CARATTERISTICHE

Ascensore

COSTI

Prezzo
€ 152.000,00

EFFICIENZA ENERGETICA

Stato
Nuovo/In costruzione
Anno costruzione
2025
Riscaldamento
Autonomo
Climatizzazione
Predisposizione
Classe energetica
A2
IPE
351,00 kWh/m²a

A4

A3

351,00 kWh/m²a | Classe energetica A2

A2

A1

B

C

D

E

F

G

MAPPA

Ornago comune della Bassa Brianza Orientale o Vimercatese

ANNUNCI SIMILI

VENDITA 4
€ 158.000
Appartamento in Vendita a Ornago (Monza e Brianza)
  • Bilocale
  • 62 mq
  • 1 bagno
VENDITA 20
€ 150.000
Appartamento in Vendita a Ornago (Monza e Brianza)
  • Trilocale
  • 104 mq
  • 1 bagno
VENDITA 17
€ 125.000
Appartamento in Vendita a Ornago (Monza e Brianza)
  • Bilocale
  • 55 mq
  • 1 bagno