Bilocale ottimo stato, secondo piano, Rondò - Torretta, Sest VENDITA

Sesto San Giovanni (Milano)
€ 290.000
  • Bilocale
  • 77 mq
  • 1 bagno

Appartamento in Vendita a Sesto San Giovanni

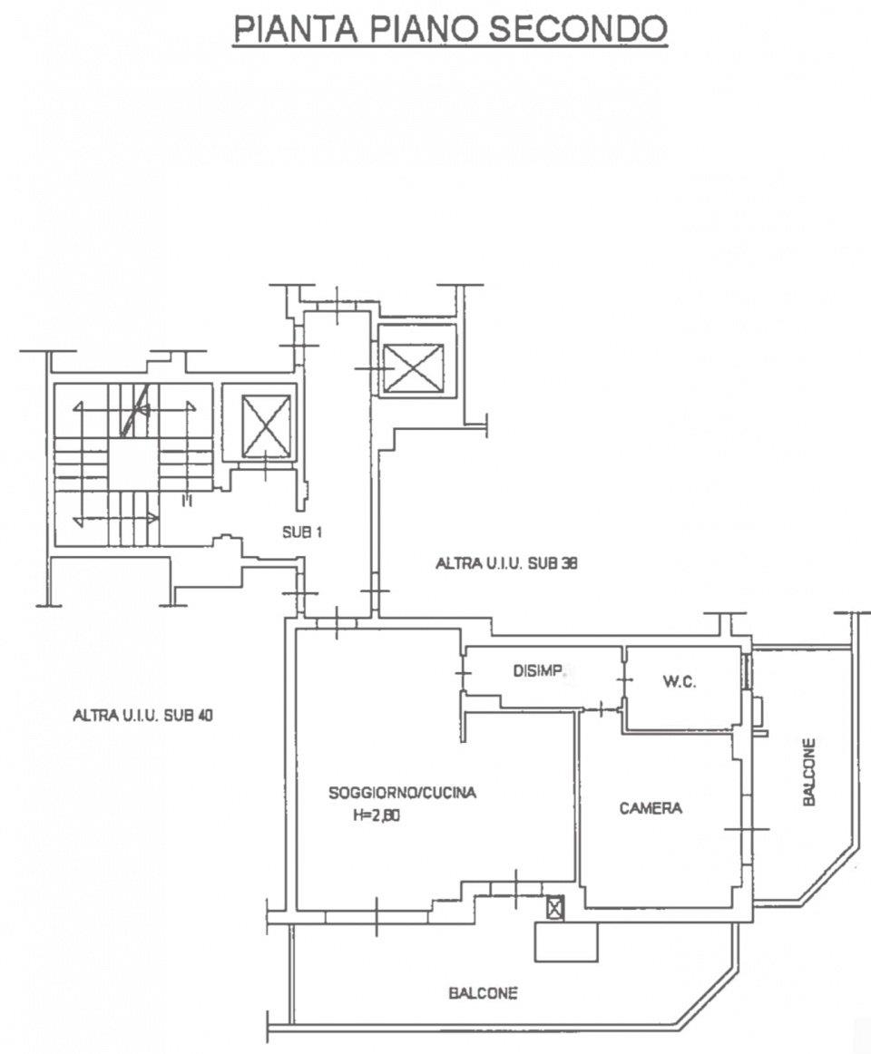
SESTO SAN GIOVANNI nel cuore del quartiere Rondinella, a pochi passi dalla linea rossa della metropolitana FS; proponiamo ampio BILOCALE di mq. 77 composto da ingresso, soggiorno con angolo cottura con pavimentato in laminato di alta qualità, camera matrimoniale con pavimentazione in parquet originale, due ampi balconi, bagno e cantina. L'appartamento è stato oggetto di una ristrutturazione interna nel 2024 con spazi interni ben divisi e ben distribuiti. âeuro‹L'immobile viene venduto parzialmente ammobiliato, includendo la cucina e l'armadiatura della camera.
L'appartamento vanta dotazioni tecnologiche di alto livello per il massimo risparmio energetico: âeuro‹Classe Energetica D,
âeuro‹Infissi a taglio termico, porta blindata, âeuro‹Climatizzatori di ultima generazione sostituiti nel 2025, âeuro‹Riscaldamento autonomo con caldaia a gas, âeuro‹Sistema di allarme già installato.
L'edificio si presenta in condizioni impeccabili grazie ai lavori di rifacimento facciata appena ultimati. Completa la proprietà una comoda cantina al piano -1.
La zona è servita da tutte le attività essenziali e vicina a tutti i collegamenti di trasporto (metropolitana, autobus e treno).
EURO 290.000,00.
RIF. 8621

LEGGI TUTTO

CONDIVIDI SUI SOCIAL

DATI PRINCIPALI

Riferimento
131215
Contratto
Vendita
Tipologia
Appartamento
Superficie
77 mq
Locali
2
Camere da letto
1
Cucina
Angolo cottura
Bagni
1
Piano
2 °
Totale piani
12

CARATTERISTICHE

Ascensore

COSTI

Prezzo
€ 290.000,00
Spese condominiali
€ 100,00 / mese

EFFICIENZA ENERGETICA

Stato
Ristrutturato
Anno costruzione
2002
Riscaldamento
Autonomo
Classe energetica
D
IPE
137,00 kWh/m²a

A+

A

B

C

137,00 kWh/m²a | Classe energetica D

D

E

F

G

MAPPA

Sesto San Giovanni comune della Brianza Milanese

ANNUNCI SIMILI

VENDITA 20
€ 187.000
Appartamento in Vendita a Sesto San Giovanni (Milano)
  • Bilocale
  • 66 mq
  • 1 bagno
VENDITA 13
€ 185.000
Appartamento in Vendita a Sesto San Giovanni (Milano)
  • Bilocale
  • 60 mq
  • 1 bagno