• Bilocale
  • 98 mq
  • 1 bagno

Appartamento in Vendita a Veduggio con Colzano

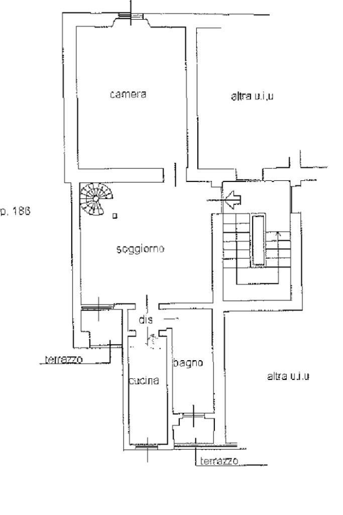
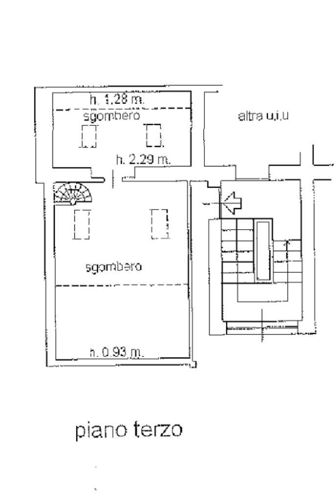
Veduggio in contesto di corte, ABITAZIONE al piano primo di 70mq. composta da: soggiorno con balconcino, cucinotto, camera, bagno con balconcino e scala a chiocciola per accedere al SOTTOTETTO con lucernario. Il sottotetto ha anche ingresso indipendente dal vano scala comune. Pavimenti in ceramica, serramenti con doppio vetro, riscaldamento autonomo. box compreso nel prezzo. Parzialmente ristrutturato nel 2010. Nelle immediate vicinanze di Renate, Besana in Brianza, Cassago, Barzanò, Nibionno. La presenza della Stazione Ferroviaria e la breve distanza dall'imbocco della SS36 garantiscono collegamenti rapidi verso Milano e Lecco.

LEGGI TUTTO

CONDIVIDI SUI SOCIAL

DATI PRINCIPALI

Riferimento
127317
Contratto
Vendita
Tipologia
Appartamento
Superficie
98 mq
Locali
2
Camere da letto
1
Cucina
Cucinotto
Bagni
1
Piano
2 °
Totale piani
2
Box/Posto auto
Singolo

CARATTERISTICHE

Ascensore

COSTI

Prezzo
€ 72.000,00
Spese condominiali
€ 100,00 / mese

EFFICIENZA ENERGETICA

Stato
Abitabile
Anno costruzione
1940
Riscaldamento
Autonomo
Classe energetica
G
IPE
576,20 kWh/m²a

A+

A

B

C

D

E

F

576,20 kWh/m²a | Classe energetica G

G

MAPPA

Veduggio con Colzano comune della Bassa Brianza Centrale Nord

ANNUNCI SIMILI

VENDITA 20
€ 118.000
  • Quadrilocale
  • 107 mq
  • 1 bagno
VENDITA 20
€ 188.000
  • Trilocale
  • 162 mq
  • 1 bagno