BILOCALE DI NUOVA REALIZZAZIONE VENDITA

Via 20 Settembre - Nova Milanese (Monza e Brianza)
€ 159.000
  • Bilocale
  • 70 mq
  • 1 bagno

Appartamento in Vendita a Nova Milanese

NOVA MILANESE - ZONA CENTRO
BILOCALE DI NUOVA REALIZZAZIONE

CONSEGNA NOVEMBRE 2026!

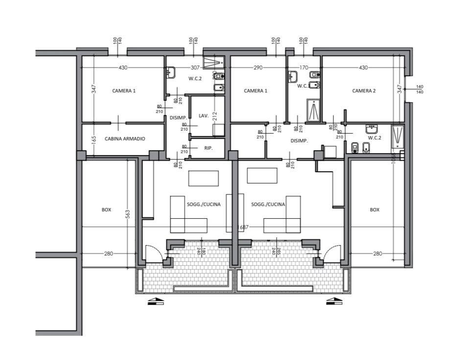
In prossima realizzazione all'interno di una corte in cambio di destinazione d'uso, AMPIO BILOCALE di mq. 70 composto dal soggiorno con cucina a vista, verandina, camera da letto, cabina armadio, ripostiglio ed un bagno finestrato.
Oltre ad un box singolo incluso nel prezzo.
L'appartamento sarà realizzato in classe "A" con pompa di calore alimentata da pannelli fotovoltaici con batteria di accumulo, riscaldamento a pavimento, raffrescamento (GAS FREE) .
Pavimentazione in GRES, saninari filo muro d'appoggio, infissi pvc doppio vetro con argon oltre a tapparelle elettriche e zanzariere.
Possibilità di modificare l'abitazione in base alle proprie esigenze e preferenze oltre ad avere la possibilità di scegliere le finiture.
Facciata nuova con cappotto.
Zero spese condominiali.
CONSEGNA NOVEMBRE 2026

Per INFO:
Edilproposte Nova Milanese
Tel. 0362/1793226
Cel. /Whatsapp 392/6479663

La presente scheda non costituisce forma di contratto, le informazioni qui contenute sono da ritenersi del tutto indicative e non potranno essere utilizzate come parte integrante in un eventuale contratto di vendita o locazione della proprietà. La presente non vincola in alcun modo la società.

LEGGI TUTTO

CONDIVIDI SUI SOCIAL

DATI PRINCIPALI

Riferimento
127017
Contratto
Vendita
Tipologia
Appartamento
Superficie
70 mq
Locali
2
Camere da letto
1
Cucina
A vista
Bagni
1
Piano
Piano terra
Totale piani
1
Box/Posto auto
Singolo

CARATTERISTICHE

Ascensore

COSTI

Prezzo
€ 159.000,00

EFFICIENZA ENERGETICA

Stato
Nuovo/In costruzione
Anno costruzione
2026
Riscaldamento
Autonomo
Climatizzazione
Si
Classe energetica
A1
IPE
351,00 kWh/m²a

A4

A3

A2

351,00 kWh/m²a | Classe energetica A1

A1

B

C

D

E

F

G

MAPPA

Nova Milanese comune della Bassa Brianza Centrale Sud

ANNUNCI SIMILI

VENDITA 20
€ 259.000
Appartamento in Vendita a Nova Milanese (Monza e Brianza)
  • Più di 5 locali
  • 160 mq
  • 2 bagni