Bilocale con posto auto coperto VENDITA

Via 20 Settembre - Mariano Comense (Como)
€ 127.000
  • Bilocale
  • 62 mq
  • 1 bagno

Appartamento in Vendita a Mariano Comense

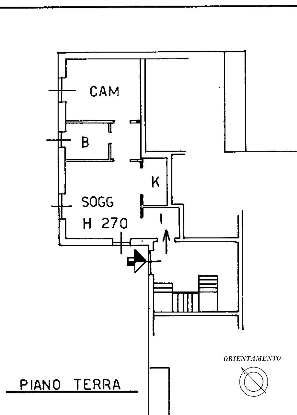
In posizione comoda e ben servita, a pochi passi dal centro storico di Mariano Comense e a soli 200 metri dalla stazione ferroviaria, proponiamo in vendita un bilocale in buone condizioni, situato al piano terra di una palazzina all’interno di un curato complesso residenziale composto da tre edifici e dotato di ampio parco condominiale.
L’appartamento si compone di: ingresso che conduce alla zona giorno con angolo cottura, disimpegno, camera da letto matrimoniale e bagno finestrato.
A completare la proprietà: una cantina e un posto auto coperto in autorimessa al piano interrato. Ulteriore posto auto non di proprietà disponibile nel cortile comune (ad esaurimento posti).
Dotazioni: serramenti in alluminio con doppi vetri, porta blindata, riscaldamento autonomo con caldaia a condensazione.
Spese condominiali contenute: circa €1.000/anno.

LEGGI TUTTO

CONDIVIDI SUI SOCIAL

DATI PRINCIPALI

Riferimento
130110
Contratto
Vendita
Tipologia
Appartamento
Superficie
62 mq
Locali
2
Camere da letto
1
Cucina
Angolo cottura
Bagni
1
Piano
Piano terra
Totale piani
2
Box/Posto auto
Singolo

CARATTERISTICHE

Ascensore

COSTI

Prezzo
€ 127.000,00
Spese condominiali
€ 83,00 / mese

EFFICIENZA ENERGETICA

Stato
Abitabile
Anno costruzione
1985
Riscaldamento
Autonomo
Classe energetica
C
IPE
175,00 kWh/m²a

A+

A

B

175,00 kWh/m²a | Classe energetica C

C

D

E

F

G

MAPPA

Mariano Comense comune della Bassa Brianza Comasca

ANNUNCI SIMILI

VENDITA 20
€ 219.000
Appartamento in Vendita a Mariano Comense (Como)
  • Trilocale
  • 90 mq
  • 2 bagni