Bilocale arredato con terrazzo e box – Lazzate VENDITA

Via Monte Grappa - Lazzate (Monza e Brianza)
€ 108.000
  • Bilocale
  • 60 mq
  • 1 bagno

Appartamento in Vendita a Lazzate

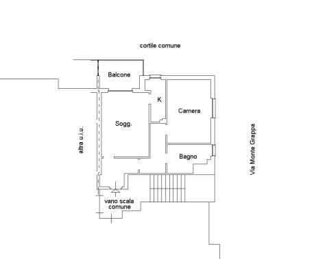
A pochi passi dal cuore di Lazzate, in una zona tranquilla ma comoda per raggiungere ogni servizio, vi presentiamo un bilocale ampio, luminoso e dal carattere moderno, completamente ristrutturato nel 2023.

Salendo al terzo piano di una curata palazzina con ascensore, verrete accolti da un ambiente caldo e accogliente, dove ogni dettaglio è stato pensato per offrire comfort e funzionalità.
L’ingresso si apre su un disimpegno elegante, che conduce all’ampio soggiorno, un vero e proprio spazio da vivere: qui potrete rilassarvi sul vostro divano preferito o condividere momenti conviviali attorno al tavolo da pranzo.

Il cucinotto separato vi permetterà di cucinare in tranquillità, mantenendo la zona giorno sempre ordinata e profumata.
Da questo ambiente si accede al terrazzo, perfetto per godersi un caffè al mattino o un aperitivo al tramonto, immersi nella quiete del quartiere.

La zona notte è pensata per il riposo e l’intimità: una camera matrimoniale accogliente e un bagno finestrato, ristrutturato nel 2017, dotato di vasca, ideale per concedersi un momento di relax a fine giornata.

A completare questa splendida soluzione troviamo un box singolo e una cantina, entrambi inclusi nel prezzo.
Le finiture moderne, come il parquet laminato che dona calore agli ambienti, rendono questo appartamento pronto per essere vissuto da subito — senza bisogno di alcun intervento.

La posizione è perfetta: a due passi dal centro, vicina ai negozi, ai mezzi e ai principali collegamenti, con Pedemontana e Superstrada Milano–Meda facilmente raggiungibili in pochi minuti.

LEGGI TUTTO

CONDIVIDI SUI SOCIAL

DATI PRINCIPALI

Riferimento
131782
Contratto
Vendita
Tipologia
Appartamento
Superficie
60 mq
Locali
2
Camere da letto
1
Cucina
Cucinotto
Bagni
1
Piano
3 °
Totale piani
6
Box/Posto auto
Singolo

CARATTERISTICHE

Ascensore

COSTI

Prezzo
€ 108.000,00
Spese condominiali
€ 100,00 / mese

EFFICIENZA ENERGETICA

Stato
Ristrutturato
Anno costruzione
1964
Riscaldamento
Centralizzato
Classe energetica
G
IPE
260,90 kWh/m²a

A+

A

B

C

D

E

F

260,90 kWh/m²a | Classe energetica G

G

MAPPA

Lazzate comune della Bassa Brianza Occidentale

ANNUNCI SIMILI

VENDITA 20
€ 370.000
Appartamento in Vendita a Lazzate (Monza e Brianza)
  • Più di 5 locali
  • 236 mq
  • 3 bagni