BIASSONO: ottimo trilocale con BOX doppio VENDITA

Via Libertà 15 - Biassono (Monza e Brianza)
€ 180.000
  • Trilocale
  • 70 mq
  • 1 bagno

Appartamento in Vendita a Biassono

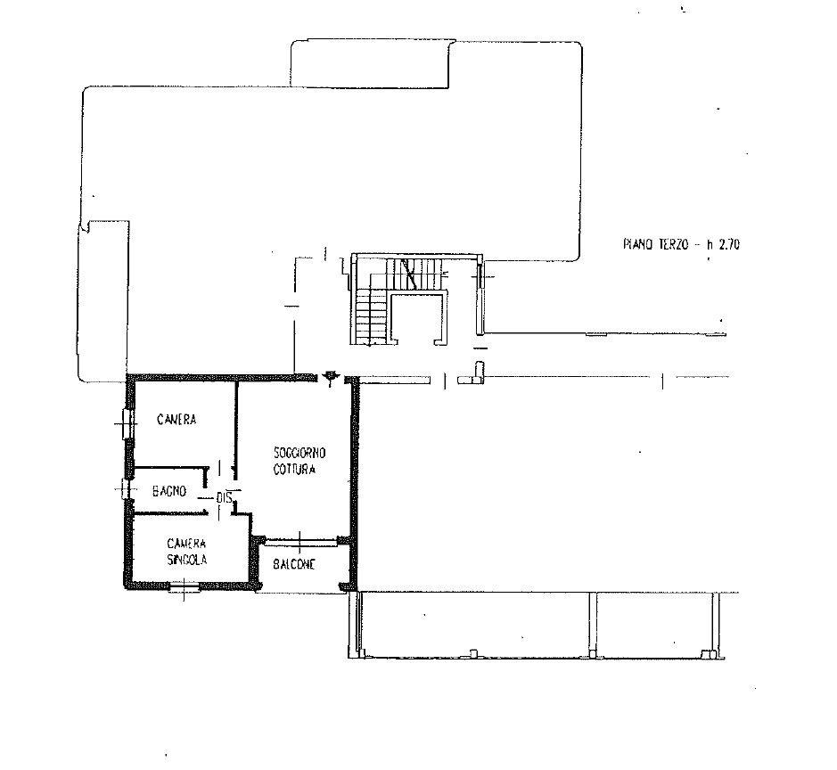
BIASSONO: in contesto condominiale medio signorile del 1998, ROYAL IMMOBILI & INVESTIMENTI, propone in vendita un ottimo trilocale di 70 mq.
L'immobile è inserito al terzo piano di un condominio dotato di ascensore.
Si compone di ingresso diretto su zona living con cucina a vista ed affaccio su comodo terrazzino, disimpegno notte con camera matrimoniale, camera singola ampia ed un bagno finestrato con vasca.
Internamente si presenta in OTTIMO STATO di manutenzione, con dotazioni interessanti come serramenti in alluminio con vetrocamera e tapparelle a protezione, impianto di aria condizionata.
Completa la proprietà un BOX DOPPIO in larghezza di 28 mq al prezzo di €19.000.
Rappresenta la soluzione ideale per coloro che vogliono vivere in bel contesto condominiale, vicino ai principali servizi e a 300 mt dal centro di Biassono.
LIBERO AL ROGITO (5 MESI).

LEGGI TUTTO

CONDIVIDI SUI SOCIAL

DATI PRINCIPALI

Riferimento
131962
Contratto
Vendita
Tipologia
Appartamento
Superficie
70 mq
Locali
3
Camere da letto
2
Cucina
A vista
Bagni
1
Piano
3 °
Totale piani
4
Box/Posto auto
Doppio

CARATTERISTICHE

Ascensore

COSTI

Prezzo
€ 180.000,00
Spese condominiali
€ 125,00 / mese

EFFICIENZA ENERGETICA

Stato
Ristrutturato
Anno costruzione
1998
Riscaldamento
Autonomo
Climatizzazione
Si
Classe energetica
F
IPE
156,30 kWh/m²a

A+

A

B

C

D

E

156,30 kWh/m²a | Classe energetica F

F

G

MAPPA

Biassono comune della Bassa Brianza Centrale Sud

ANNUNCI SIMILI