€ 245.000
  • Trilocale
  • 75 mq
  • 2 bagni

Appartamento in Vendita a Monza

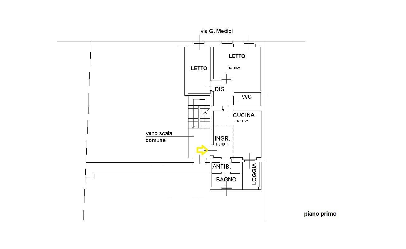
MONZA/S. BIAGIO: Grazioso TRILOCALE di circa 75 mq di superficie molto ben ottimizzata, dall’eccellente ORIENTAMENTO (sud zona giorno, nord zona notte), attualmente interessato da una RADICALE RISTRUTTURAZIONE e così disposto: ingresso living sulla zona giorno con cucina a vista e piccola loggia in aggetto sulla corte; antibagno (lavanderia) e bagno finestrato con doccia, disimpegno di accesso alla zona notte costituita da camera matrimoniale, studio, secondo bagno. La ristrutturazione è in fase di ultimazione (serramenti esterni in consegna a gennaio 2026). Termoautonomo.
IL CONTESTO: Si tratta di una casa d’epoca stile “vecchia Monza”, su due piani, di sole 6 unità immobiliari. Spese condominiali esigue, no ascensore.
LA ZONA: L’immobile è situato in una via tranquilla, seppur nel CENTRALE E SERVITISSIMO quartiere San Biagio, una zona residenziale a breve distanza dal centro di Monza, apprezzata per la presenza di numerosi servizi di prossimità: supermercati, farmacia, panifici, scuole, asili nido, bar, fermate autobus e attività di vicinato, tutti raggiungibili a piedi. Nelle vicinanze si trovano anche strutture sanitarie, aree verdi e centri sportivi. La zona è ideale per chi cerca comodità quotidiana senza rinunciare alla tranquillità. I collegamenti con il centro di Monza sono buoni grazie alla rete di autobus urbani, mentre per raggiungere Milano è necessario l'utilizzo dell’auto o l’accesso alla stazione ferroviaria, situata a circa 2 km di distanza.
Una soluzione ideale per chi desidera vivere in un contesto pratico e ben organizzato, dall’inconfondibile allure bohemienne e dai contenuti costi di gestione.

LEGGI TUTTO

CONDIVIDI SUI SOCIAL

DATI PRINCIPALI

Riferimento
127216
Contratto
Vendita
Tipologia
Appartamento
Superficie
75 mq
Locali
3
Camere da letto
2
Cucina
A vista
Bagni
2
Piano
1 °
Totale piani
2

CARATTERISTICHE

Ascensore

COSTI

Prezzo
€ 245.000,00
Spese condominiali
€ 100,00 / mese

EFFICIENZA ENERGETICA

Stato
Ristrutturato
Anno costruzione
1900
Riscaldamento
Autonomo
Climatizzazione
Si
Classe energetica
F
IPE
198,84 kWh/m²a

A+

A

B

C

D

E

198,84 kWh/m²a | Classe energetica F

F

G

MAPPA

Monza comune della Bassa Brianza Centrale Sud

ANNUNCI SIMILI

VENDITA 20
€ 251.000
Appartamento in Vendita a Monza, Zona San Biagio
  • Trilocale
  • 124 mq
  • 1 bagno
VENDITA 20
€ 730.000
Appartamento in Vendita a Monza, Zona San Biagio
  • Quadrilocale
  • 185 mq
  • 3 bagni
VENDITA 20
€ 420.000
Appartamento in Vendita a Monza, Zona San Biagio
  • Trilocale
  • 119 mq
  • 2 bagni
VENDITA 20
€ 455.000
Appartamento in Vendita a Monza, Zona San Biagio
  • Trilocale
  • 113 mq
  • 2 bagni