€ 369.000
  • Più di 5 locali
  • 200 mq
  • 3 bagni

Appartamento in Vendita a Seregno

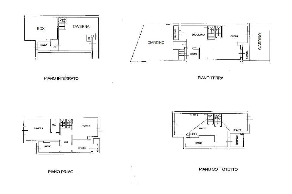
In zona Ceredo, comoda a tutti i principali servizi e al tempo stesso immersa nella tranquillità, proponiamo in vendita una prestigiosa villa a schiera disposta su tre livelli abitativi, oltre a un’ampia taverna e box auto.
L’abitazione, curata nei dettagli e caratterizzata da spazi generosi, si apre al piano terra con un’accogliente zona giorno, composta da un luminoso soggiorno e una cucina abitabile, entrambi con accesso diretto al giardino privato, ideale per momenti di relax o per vivere appieno lo spazio esterno nelle stagioni più calde. Sempre al piano terra è presente un bagno di servizio, funzionale e ben rifinito.
Al primo piano, si sviluppa la zona notte, composta da tre camere da letto di cui una matrimoniale con cabina armadio e due singole, tutte ben dimensionate, oltre a un secondo bagno finestrato, elegante e comodo per l’intera famiglia.
Salendo al terzo piano, perfettamente abitabile, troviamo una quarta e ampia camera da letto, uno studio ideale per chi lavora da casa o necessita di uno spazio riservato, un terzo bagno e un terrazzo, perfetto per godere di una vista aperta e riservata.
A completamento della proprietà, al piano seminterrato troviamo una taverna open space di ampie dimensioni, dotata di camino e finestre, che la rendono ariosa e vivibile, ideale per momenti conviviali o come ulteriore zona living. Sempre al piano è presente una comoda lavanderia e l’accesso diretto al box auto.
L’immobile è dotato di impianto fotovoltaico, dispositivo progettato per consentire la ricarica dell'auto, impianto di riscaldamento di nuova generazione e caldaia a condensazione, soluzioni che garantiscono alte prestazioni energetiche, ridotti costi di gestione e attenzione all’ambiente.
Questa villa rappresenta la soluzione ideale per chi è alla ricerca di una residenza spaziosa, moderna, funzionale e pronta da abitare, senza rinunciare alla tranquillità e alla vicinanza ai servizi.

LEGGI TUTTO

CONDIVIDI SUI SOCIAL

DATI PRINCIPALI

Riferimento
126368
Contratto
Vendita
Tipologia
Appartamento
Superficie
200 mq
Locali
5
Camere da letto
4
Cucina
Abitabile
Bagni
3
Piano
Piano terra
Totale piani
2
Box/Posto auto
Singolo

CARATTERISTICHE

Ascensore

COSTI

Prezzo
€ 369.000,00

EFFICIENZA ENERGETICA

Stato
Abitabile
Anno costruzione
1990
Riscaldamento
Autonomo
Climatizzazione
Si
Classe energetica
B
IPE
86,15 kWh/m²a

A+

A

86,15 kWh/m²a | Classe energetica B

B

C

D

E

F

G

MAPPA

Seregno comune della Bassa Brianza Centrale Sud

ANNUNCI SIMILI

VENDITA 20
€ 299.000
Appartamento in Vendita a Seregno (Monza e Brianza)
  • Più di 5 locali
  • 143 mq
  • 2 bagni
VENDITA 20
€ 550.000
Appartamento in Vendita a Seregno (Monza e Brianza)
  • Più di 5 locali
  • 194 mq
  • 2 bagni
VENDITA 20
€ 380.000
Appartamento in Vendita a Seregno (Monza e Brianza)
  • Più di 5 locali
  • 235 mq
  • 3 bagni
VENDITA 20
€ 380.000
Appartamento in Vendita a Seregno (Monza e Brianza)
  • Più di 5 locali
  • 211 mq
  • 3 bagni
VENDITA 10
€ 590.000
Appartamento in Vendita a Seregno (Monza e Brianza)
  • Più di 5 locali
  • 183 mq
  • 3 bagni
VENDITA 20
€ 370.000
Appartamento in Vendita a Cesano Maderno (Monza e Brianza)
  • Più di 5 locali
  • 240 mq
  • 3 bagni