APPARTAMENTO LUMINOSO E PANORAMICO IN PICCOLA PALAZZINA VENDITA

via Como - Cantù (Como)
€ 205.000
  • Trilocale
  • 123 mq
  • 1 bagno

Appartamento in Vendita a Cantù

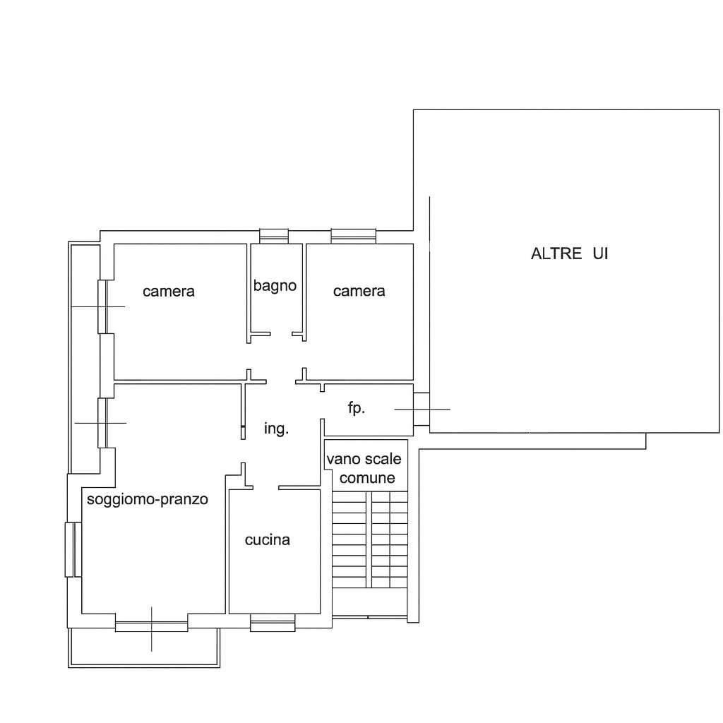
In un tranquillo contesto residenziale, all'interno di una piccola palazzina con poche unità abitative, proponiamo in vendita un appartamento di generosa metratura, posto al secondo piano e in perfette condizioni interne.
L'immobile si distingue per la qualità delle finiture: serramenti nuovi ad alte prestazioni, caldaia a condensazione di recente installazione e facciata completamente rifatta. Spazi ampi e ben distribuiti rendono l'appartamento ideale per chi cerca comfort e funzionalità.
L'abitazione è composta da:
* Accogliente ingresso con disimpegno;
* Cucina separata e abitabile;
* Soggiorno doppio, luminoso e con vista panoramica;
* Due camere matrimoniali;
* Bagno finestrato;
* Comodo ripostiglio.
La luminosità e la vista aperta rendono ogni ambiente piacevole e vivibile in ogni momento della giornata.
Completa la proprietà un box doppio, perfetto per due utilitarie o per chi necessita di ulteriore spazio di deposito.
Un’opportunità ideale per chi desidera vivere in un ambiente sereno, ben curato e pronto da abitare. Classe in fase di rilascio Per maggiori informazioni Monica Bidoggia 3484205749 richiesta Euro 205.000,00
Il presente annuncio non costituisce alcun vincolo contrattuale e tutte le caratteristiche inerenti gli immobili pubblicati e le misure eventualmente rilevate o indicate devono considerarsi indicative.

LEGGI TUTTO

CONDIVIDI SUI SOCIAL

DATI PRINCIPALI

Riferimento
129429
Contratto
Vendita
Tipologia
Appartamento
Superficie
123 mq
Locali
3
Camere da letto
2
Cucina
Abitabile
Bagni
1
Box/Posto auto
Singolo

CARATTERISTICHE

Ascensore

COSTI

Prezzo
€ 205.000,00

EFFICIENZA ENERGETICA

Stato
Ristrutturato
Riscaldamento
Autonomo
Classe energetica
C
IPE
144,61 kWh/m²a

A+

A

B

144,61 kWh/m²a | Classe energetica C

C

D

E

F

G

MAPPA

Cantù comune della Bassa Brianza Comasca

ANNUNCI SIMILI

VENDITA 17
€ 135.000
Appartamento in Vendita a Cantù (Como)
  • Trilocale
  • 80 mq
  • 1 bagno
VENDITA 20
€ 109.000
Appartamento in Vendita a Cantù (Como)
  • Trilocale
  • 80 mq
  • 1 bagno
VENDITA 20
€ 199.000
Appartamento in Vendita a Cantù (Como)
  • Trilocale
  • 100 mq
  • 2 bagni
VENDITA 20
€ 155.000
Appartamento in Vendita a Cantù (Como)
  • Trilocale
  • 104 mq
  • 1 bagno
VENDITA 15
€ 186.000
Appartamento in Vendita a Cantù (Como)
  • Trilocale
  • 113 mq
  • 2 bagni
VENDITA 20
€ 219.000
Appartamento in Vendita a Cantù (Como)
  • Quadrilocale
  • 130 mq
  • 2 bagni