APPARTAMENTO Lissone (MB) - Centro/stazione VENDITA

Via Cappuccina - Lissone (Monza e Brianza)
€ 232.000
  • Trilocale
  • 90 mq
  • 2 bagni

Appartamento in Vendita a Lissone

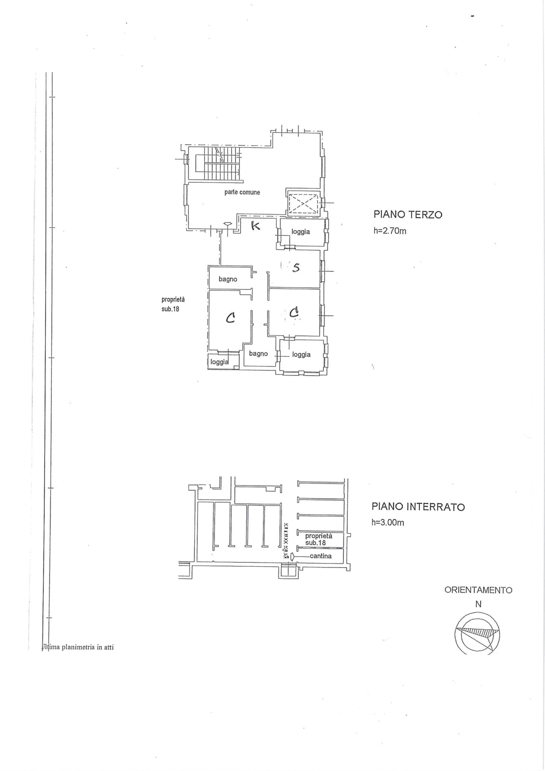
LISSONE ad.ze Centro, in zona servitissima da mezzi pubblici, a 5 minuti dalla stazione F.S, proponiamo in palazzina servita da ascensore, appartamento di circa 90 mq. posto al 3° piano e così composto: ingresso, soggiorno con angolo cottura ed accesso a loggia coperta, ideale per pranzi e cene, 2 camere da letto, di cui la matrimoniale con accesso ad ulteriore loggia, doppi servizi ed ulteriore balcone sulla 2° camera. Riscaldamento autonomo a metano e doppi vetri. Completa la proprietà la cantina ed il Box/singolo ad €.18.000,00.Immobile sito in Lissone Via Cappuccina 85.

CONDIVIDI SUI SOCIAL

DATI PRINCIPALI

Riferimento
128997
Contratto
Vendita
Tipologia
Appartamento
Superficie
90 mq
Locali
3
Camere da letto
2
Cucina
Angolo cottura
Bagni
2
Piano
3 °
Totale piani
4
Box/Posto auto
Singolo

CARATTERISTICHE

Ascensore

COSTI

Prezzo
€ 232.000,00
Spese condominiali
€ 133,00 / mese

EFFICIENZA ENERGETICA

Stato
Abitabile
Anno costruzione
2002
Riscaldamento
Autonomo
Climatizzazione
Si
Classe energetica
D
IPE
159,33 kWh/m²a

A+

A

B

C

159,33 kWh/m²a | Classe energetica D

D

E

F

G

MAPPA

Lissone comune della Bassa Brianza Centrale Sud

ANNUNCI SIMILI