Appartamento in vendita a Merate VENDITA

Viale Lombardia 18 - Merate (Lecco)
€ 170.000
  • Trilocale
  • 94 mq
  • 1 bagno

Appartamento in Vendita a Merate

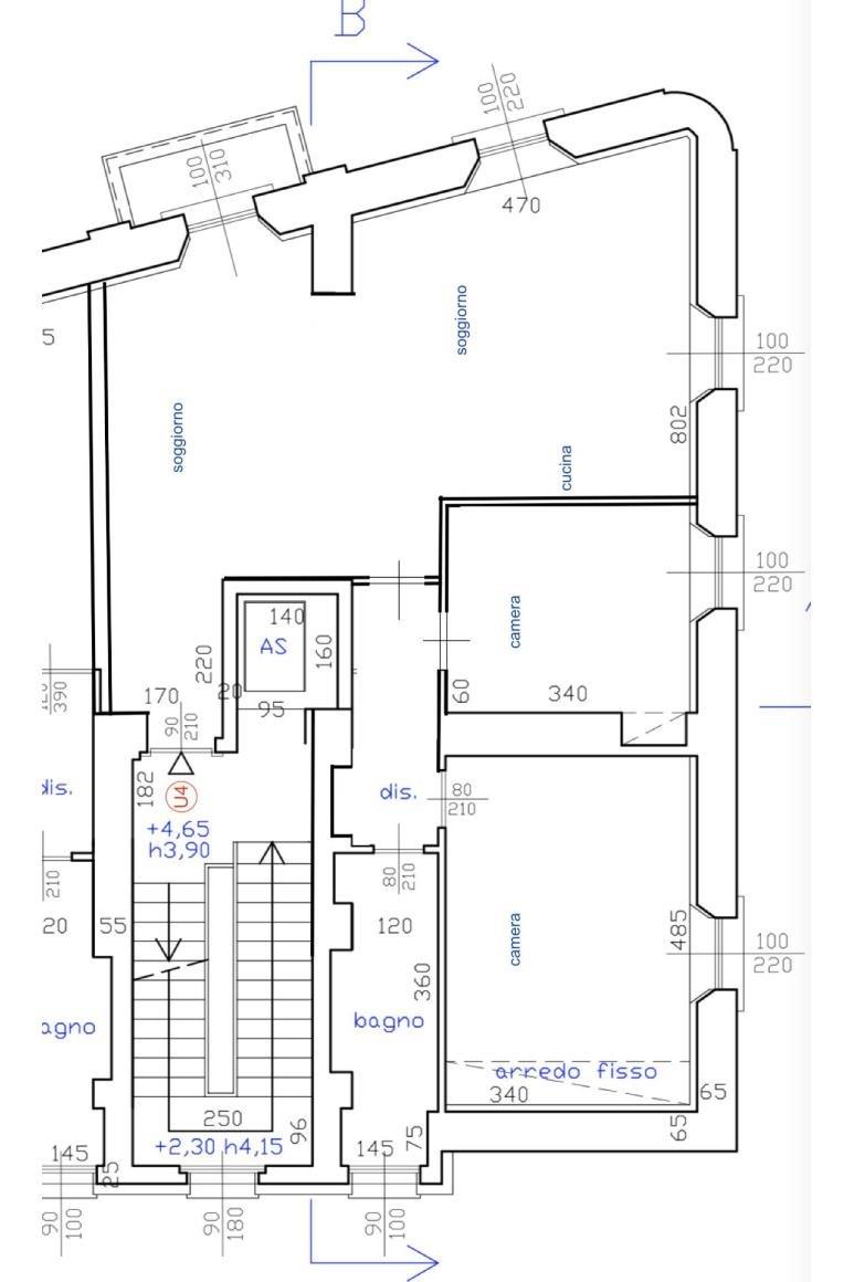
Merate - Centro in preziosa villa d'epoca disponiamo di un elegante appartamento al piano primo con balcone panoramico esposto a sud. Internamente è composto da un luminoso soggiorno, una cucina a vista, due camere da letto e un bagno.
L'impianto di riscaldamento, autonomo a metano, è dotato di radiatori per un comfort ottimale. L'appartamento necessita di una ristrutturazione per essere reso ancora più moderno e funzionale.
Gli infissi, attualmente con singolo vetro, possono essere facilmente sostituiti per garantire un miglior isolamento termico e acustico. La soluzione è proposta non arredata, lasciando ampia libertà di personalizzazione agli acquirenti.
L'esposizione sud-ovest-nord garantisce un'ottima luminosità naturale durante tutto il giorno. Completa la proprietà un posto auto scoperto e una cantina, ideale per riporre oggetti e attrezzi.
Le spese condominiali ammontano a soli 30 euro al mese, rendendo l'immobile ancora più conveniente e interessante. La villa è stata recentemente portata allo splendore originario rifacendo integralmente le facciate e il tetto.
L'ubicazione strategica, la presenza di un'ampia selezione di servizi e la facilità di accesso ai principali mezzi di trasporto rendono questo appartamento ideale per coloro che desiderano vivere in una zona tranquilla senza rinunciare alla comodità.
L'immobile si estende su tre piani in totale, garantendo privacy e una buona distribuzione degli spazi interni. Solo € 170.000,00.

LEGGI TUTTO

CONDIVIDI SUI SOCIAL

DATI PRINCIPALI

Riferimento
122945
Contratto
Vendita
Tipologia
Appartamento
Superficie
94 mq
Locali
3
Camere da letto
2
Cucina
A vista
Bagni
1
Piano
1 °
Totale piani
3
Box/Posto auto
Singolo

CARATTERISTICHE

Ascensore

COSTI

Prezzo
€ 170.000,00
Spese condominiali
€ 30,00 / mese

EFFICIENZA ENERGETICA

Stato
Da ristrutturare
Anno costruzione
1930
Riscaldamento
Autonomo
Classe energetica
G
IPE
190,00 kWh/m²a

A+

A

B

C

D

E

F

190,00 kWh/m²a | Classe energetica G

G

MAPPA

Merate comune della Brianza Meratese

ANNUNCI SIMILI

VENDITA 20
€ 109.000
Appartamento in Vendita a Merate (Lecco)
  • Trilocale
  • 79 mq
  • 1 bagno
VENDITA 10
€ 98.000
Appartamento in Vendita a Merate (Lecco)
  • Trilocale
  • 85 mq
  • 1 bagno
VENDITA 20
€ 135.000
Appartamento in Vendita a Merate (Lecco)
  • Trilocale
  • 90 mq
  • 1 bagno
VENDITA 8
€ 170.000
Appartamento in Vendita a Merate (Lecco)
  • Trilocale
  • 103 mq
  • 1 bagno
VENDITA 20
€ 178.000
Appartamento in Vendita a Merate (Lecco)
  • Trilocale
  • 113 mq
  • 2 bagni
VENDITA 20
€ 350.000
Appartamento in Vendita a Merate (Lecco)
  • Più di 5 locali
  • 180 mq
  • 2 bagni
VENDITA 16
€ 193.000
Appartamento in Vendita a Merate (Lecco)
  • Trilocale
  • 111 mq
  • 2 bagni
VENDITA 20
€ 100.000
Appartamento in Vendita a Merate (Lecco)
  • Trilocale
  • 117 mq
  • 1 bagno
VENDITA 17
€ 135.000
Appartamento in Vendita a Merate (Lecco)
  • Trilocale
  • 87 mq
  • 1 bagno