Appartamento in vendita a Limbiate, Villaggio dei Giovi VENDITA

Via Mascheroni 23 - Limbiate (Monza e Brianza)
€ 98.000
  • Bilocale
  • 51 mq
  • 1 bagno

Appartamento in Vendita a Limbiate

Bilocale mansardato - Villaggio Giovi, Limbiate.

Bilocale ristrutturato con balcone panoramico e vista aperta, all'ultimo piano in zona ben servita.
In zona Villaggio Giovi, tranquilla ma comodissima ai servizi e collegata bene con Milano e la Brianza.
Nelle vicinanze: fermate dei mezzi pubblici, RSA, scuole, negozi e aree verdi. Contesto residenziale con basse spese condominiali.
L'appartamento si trova al terzo ed ultimo piano senza ascensore, in palazzina recente. La casa è stata realizzata nel 2010.

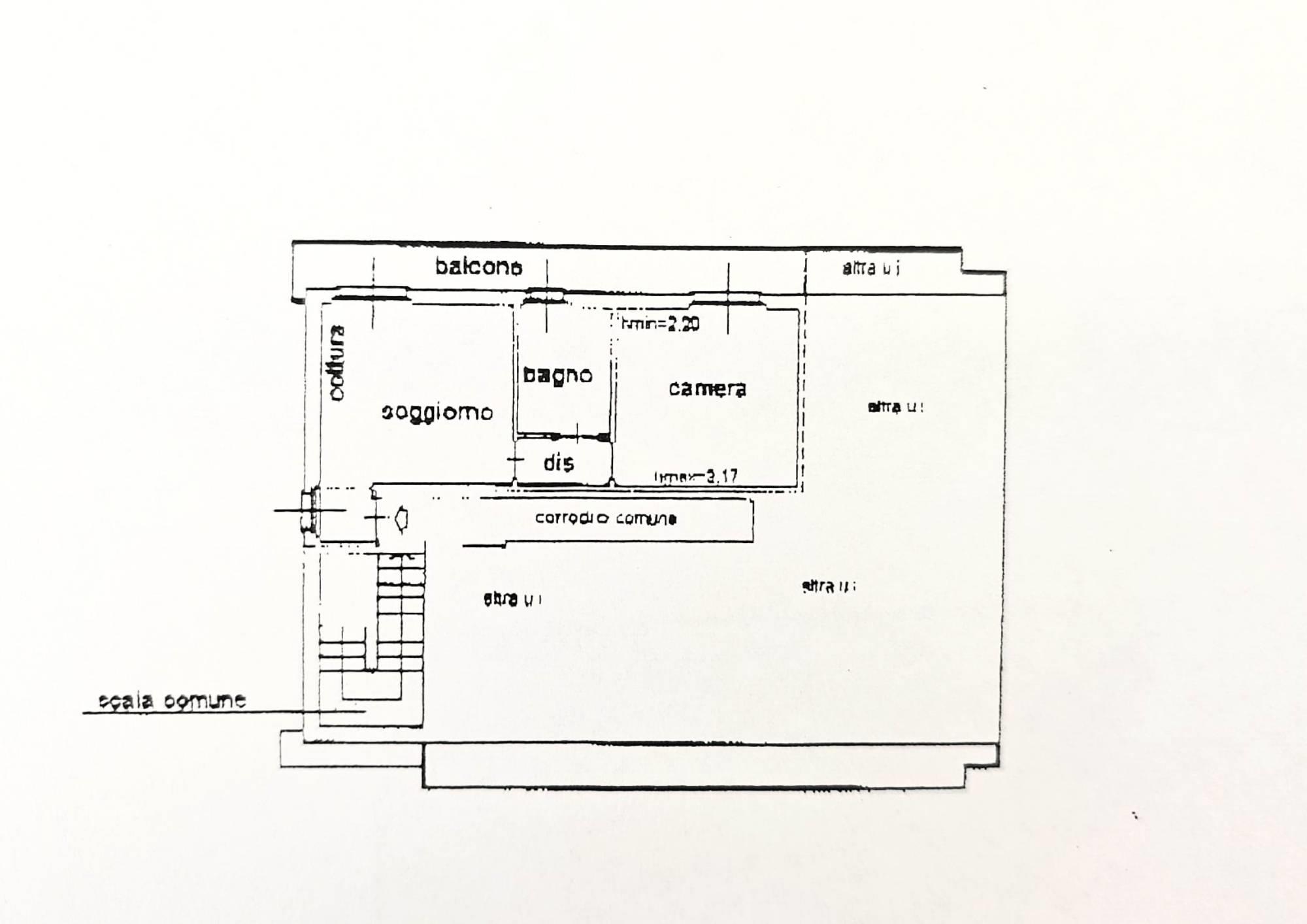
Ingresso diretto sulla zona giorno con cucina a vista, soggiorno ben organizzato e molto luminoso.
Ampio balcone con splendida vista aperta verso ovest. Bagno finestrato con doccia, camera matrimoniale di generose dimensioni.
Ambienti mansardati con travi a vista e finiture recenti. Libero subito.

Superficie: circa 50 mq - Piano: 3° senza ascensore
Layout: ingresso su soggiorno con cucina a vista, balcone, bagno finestrato, camera matrimoniale
Esposizione: ovest
Riscaldamento autonomo
Stato: realizzato nel 2010
Classe energetica: E

Contattaci subito per info, planimetria o visita.
Richiedi una valutazione gratuita e senza impegno: il nostro team ti seguirà passo dopo passo per ottenere il massimo valore dalla tua casa.

Edilproposte Limbiate - CERCO, VENDO, AFFITTO CASA
Email: Arena@edilproposte.it
WhatsApp diretto: 393.9558969

LEGGI TUTTO

CONDIVIDI SUI SOCIAL

DATI PRINCIPALI

Riferimento
127282
Contratto
Vendita
Tipologia
Appartamento
Superficie
51 mq
Locali
2
Camere da letto
1
Cucina
A vista
Bagni
1
Piano
3 °

CARATTERISTICHE

Ascensore

COSTI

Prezzo
€ 98.000,00
Spese condominiali
€ 80,00 / mese

EFFICIENZA ENERGETICA

Stato
Ristrutturato
Anno costruzione
1980
Riscaldamento
Autonomo
Climatizzazione
Si
Classe energetica
F
IPE
143,50 kWh/m²a

A+

A

B

C

D

E

143,50 kWh/m²a | Classe energetica F

F

G

MAPPA

Limbiate comune della Bassa Brianza Occidentale

ANNUNCI SIMILI

VENDITA 20
€ 79.000
Appartamento in Vendita a Limbiate (Monza e Brianza)
  • Bilocale
  • 40 mq
  • 1 bagno