Appartamento in vendita a Limbiate VENDITA

Via Trieste 70 - Limbiate (Monza e Brianza)
€ 175.000
  • Bilocale
  • 94 mq
  • 1 bagno

Appartamento in Vendita a Limbiate

Bilocale con taverna senza spese condominiali - Limbiate, Via Trieste 70

In via Trieste 70, a Limbiate, in contesto tranquillo e ben servito. La zona è comoda per scuole, negozi di prima necessità e collegamenti verso Monza e Milano, ideale per chi cerca praticità quotidiana senza rinunciare alla riservatezza.

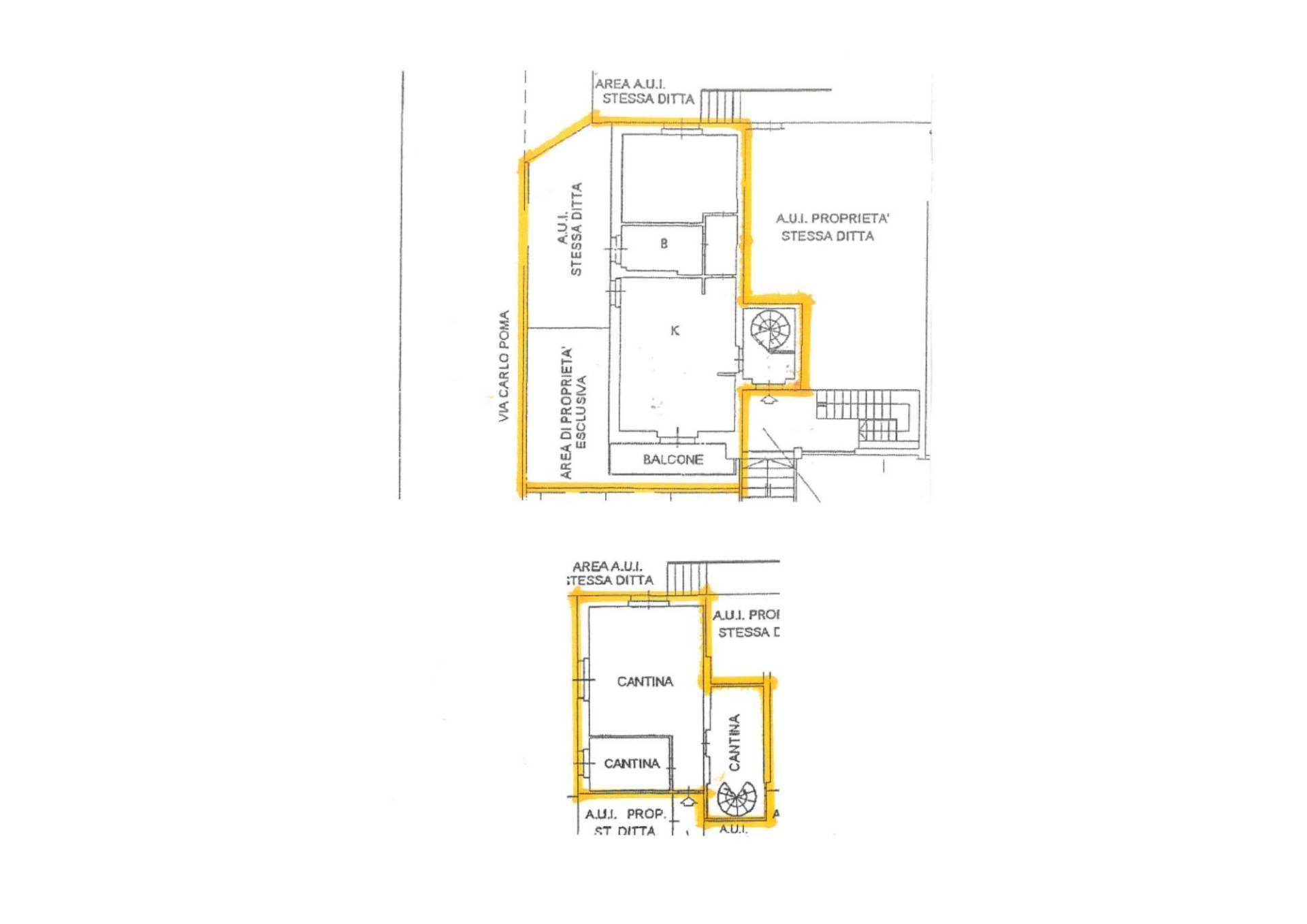
Dal piano terra si accede all'abitazione, accolta da una luminosa zona giorno con cucina a vista, ambiente funzionale e conviviale, con affaccio sul balcone. Il disimpegno conduce alla camera e al bagno finestrato. Una scala interna collega al piano interrato dove si sviluppa un'ampia taverna, versatile come zona relax o studio, servita da un locale lavanderia. Completano la proprietà un'area esterna esclusiva, al piano terra, adibita come posto auto scoperto.

Località: Limbiate, via Trieste n°70
Superficie: 94 mq
Piano: Terra + interrato collegati internamente
Composizione: soggiorno/cucina, camera, bagno, taverna composta da locale lavanderia
Dotazioni: Area di proprietà esclusiva, balcone, aria condizionata, tapparelle
Prezzo: €175.000
Spese condominiali: €0

Contattaci ora per dettagli e visite:
Edilproposte - Limbiate, Corso Milano 14
Cell: Ragusa - 3921002199
Email: info@edilproposte.it
Tel.: 02 9905 1345
Sito web: www.edilproposte.it

LEGGI TUTTO

CONDIVIDI SUI SOCIAL

DATI PRINCIPALI

Riferimento
127327
Contratto
Vendita
Tipologia
Appartamento
Superficie
94 mq
Locali
2
Camere da letto
1
Cucina
A vista
Bagni
1
Piano
Su più livelli
Box/Posto auto
Singolo

CARATTERISTICHE

Ascensore

COSTI

Prezzo
€ 175.000,00

EFFICIENZA ENERGETICA

Stato
Abitabile
Riscaldamento
Autonomo
Climatizzazione
Si
Classe energetica
E
IPE
268,39 kWh/m²a

A+

A

B

C

D

268,39 kWh/m²a | Classe energetica E

E

F

G

MAPPA

Limbiate comune della Bassa Brianza Occidentale

ANNUNCI SIMILI

VENDITA 20
€ 311.000
Appartamento in Vendita a Limbiate (Monza e Brianza)
  • Trilocale
  • 120 mq
  • 2 bagni
VENDITA 20
€ 328.000
Appartamento in Vendita a Limbiate (Monza e Brianza)
  • Trilocale
  • 130 mq
  • 2 bagni
VENDITA 20
€ 170.000
Appartamento in Vendita a Limbiate (Monza e Brianza)
  • Trilocale
  • 70 mq
  • 1 bagno